Все о ремонте

Как правильно сделать ремонт дома или квартиры. Всё что необходимо знать о ремонте, а также море полезной информации.

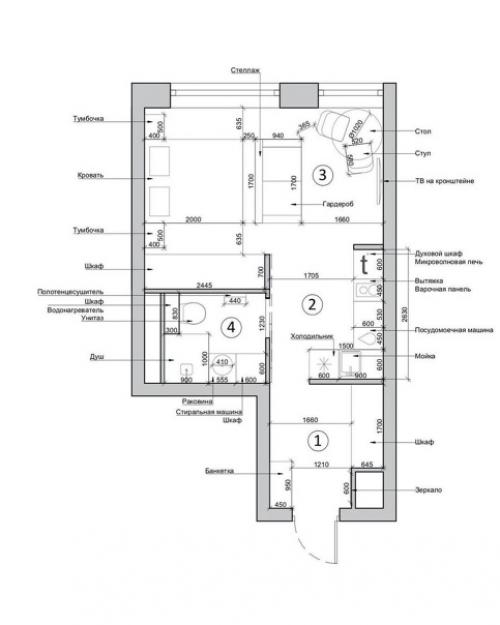
Светло, уютно, легко и воздушно.

06.03.2021 в 00:59

Шикарный дизайн - проект небольшой квартиры. Даже докопаться не к чему
Светло, уютно, легко и воздушно..

Светло, уютно, легко и воздушно. 01
Светло, уютно, легко и воздушно. 02
Светло, уютно, легко и воздушно. 03
Светло, уютно, легко и воздушно. 04
Светло, уютно, легко и воздушно. 05
Светло, уютно, легко и воздушно. 06
Светло, уютно, легко и воздушно. 07
Светло, уютно, легко и воздушно. 08
Светло, уютно, легко и воздушно. 09

Категории: дизайн спальни