Все о ремонте

Как правильно сделать ремонт дома или квартиры. Всё что необходимо знать о ремонте, а также море полезной информации.

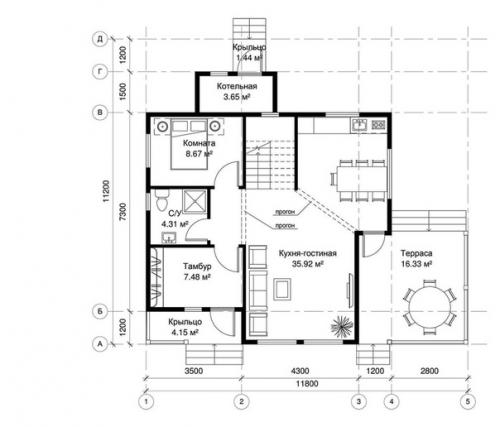
Неплохие по размерам комнаты, но планировка 1 этажа на мой взгляд не совсем удачная.

21.10.2019 в 07:59

В целом смотрится дом довольно неплохо.
Напишите и ваше мнение!

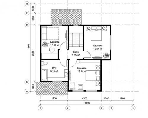
Размеры: 11. 8 х 11. 2, . Общая площадь - 121 кв. м
Неплохие по размерам комнаты, но планировка 1 этажа на мой взгляд не совсем удачная..

Неплохие по размерам комнаты, но планировка 1 этажа на мой взгляд не совсем удачная. 01
Неплохие по размерам комнаты, но планировка 1 этажа на мой взгляд не совсем удачная. 02
Неплохие по размерам комнаты, но планировка 1 этажа на мой взгляд не совсем удачная. 03

Категории: ремонт комнаты