Однокомнатная квартира в панельном доме.
Серия панельных домов II - 49 (также распространено обозначение П - 49) была спроектирована в середине 60-х для замены хрущевок к - 7 и строилась до середины 80-х годов. Эти многосекционные дома из рядовых и торцевых типовых секций состоят. Причем торцовые секции балконы или лоджии имеют. Дома II - 49 девятиэтажные, однако в Москве есть несколько экспериментальных 12-этажек этой серии, которые широкого распространения не получили.

Специально для Inmyroom дизайнер интерьеров Ольга бондарь наглядно показала, как обустроить однушку в доме серии II - 49 для разных типов жильцов.

Сегодня мы рассмотрим три варианта перепланировки однокомнатной квартиры, общая площадь которой составляет 32, 60 квадратных метра, а жилая - 18, 74.

Вариант номер 1: квартира для холостяка.

Основными задачами планировки были: отделить спальное место, предусмотреть возможность просмотра тв и работы в этой зоне, организовать достаточное количество мест для хранения и пространство для приема гостей.

Плюсы планировки: удачное зонирование спальни и гостевой зоны, достаточное количество мест для хранения, а также отсутствие узкого коридора, который визуально "Съедал" и так небольшую площадь.

Минусы: все зоны получились достаточно компактными; отсутствие окна в спальне и как следствие - небольшое количество естественного освещения.

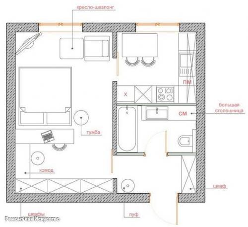
Вариант номер 2: квартира для пары, которая много времени проводит дома.
Основными задачами этой планировки были предусмотреть много мест для хранения, организовать просторную спальню с туалетным столиком, рабочим местом, большим тв; объединить санузел с ванной; сделать просторную кухню с достаточной рабочей поверхностью.
Плюсы планировки: просторная спальня и кухня, значительное увеличение санузла за счет коридора, наличие мест для хранения.
Минусы: комната получилась проходной, шкафы находятся в спальне, единственное место для приема гостей - кухня.
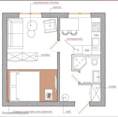
Вариант номер 3: квартира для пары. Минимальная перепланировка.
Основные задачи планировки - отделить зону спальни с туалетным столиком, организовать небольшую зону гостиной и мобильное рабочее место, прибегнуть к минимальной перепланировке квартиры. Также необходимо найти место для всех необходимых элементов на кухне и в санузле, продумать достаточное количество мест для хранения, не забыть про установку телевизора в спальной зоне и в зоне гостиной.
Плюсы планировки: предусмотрены зона спальни и гостиной; места для хранения есть в каждой зоне; предусмотрено все необходимое на кухне (со значительной рабочей поверхностью) и в санузле; наличие одного телевизора на две зоны (экономия средств.
Минусы: шкафы расположены в комнате; в зоне гостиной не хватает естественного освещения.