Планировка ванной комнаты 5 кв м.
Вариант планировки, который позволяет успешно решить проблему больших коробов, под стенками которых скрываются трубы коммуникаций и система вентиляции.
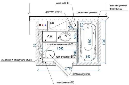
Планировочное решение интересно тем, что простенок, за которым скрывается коммуникационная разводка, предлагается продлить до самой ванной.
Оставшееся свободное место в обустроенном простенке со стороны ванны удобно использовать под размещение ниш для хранения косметики и прочих принадлежностей для купания.

Переступая порог ванны, вы оказываетесь напротив длинной столешницы, выполненной из искусственного камня.

При глубине столешницы в 40 см размеры стиральной машины должны быть в пределах 60 х 40 см. Вместительность таких моделей машин в среднем составляет 4, 5 кг белья.

Под столешницей удачно помещается вместительная подвесная тумба с двумя глубокими ящиками и полноразмерная стиральная машинка.

Единственным недостатком планировки можно считать тот момент, что оставшееся после монтажа унитаза и столешницы свободным расстояние - это небольшой "Пятачок" всего метр на метр.

Метра площади будет достаточно, чтобы выгрузить постиранное белье, но в случае ремонта бытовой техники на время проведения работ придется демонтировать подвесной "Белый Трон".
Поскольку внешняя сторона ванной частично скрыта нишей, чтобы упростить процесс управления напором и температурой воды во время купания, смеситель разместили вдоль широкого борта чаши.
Больше информационных статей о квартире после ремонта тут http://remont.ru-best.com/remont-kvartir/kvartira-posle-remonta