Проект двухэтажного жилого дома "Бюджетный-2" - Загородный дом с"растущими" возможностями.
Двухэтажный загородный жилой дом "бюджетный 2" мы старались сделать вместительным и удобным для проживающих, поэтому дом подойдет людям, которые по достоинству оценят эти качества.
Дом при минимальных габаритах имеет шесть жилых комнат, включая гостиную. Такой дом наилучшим образом подойдет для проживания семьи от 4 до 8 человек. Даже при максимальном количестве (8 человек) в нем можно разместить на ночлег еще 2-3-х гостей, койко - мест хватит всем!

Возведение данного строения может быть осуществлено на участке площадью от 5-6 соток, дом занимает всего одну сотку, а, с учетом террасы и летней веранды, - 1, 35 соток.

Фасады данного жилища выполнены в ярких, преимущественно теплых тонах. Хотя это далеко не единственное декоративное решение для этого проекта. Благодаря таким элементам, как летняя терраса и веранда, в виде многогранного эркера, а также, благодаря неординарной форме подшивки свесов кровли, дом имеет характерную выразительность и индивидуальность.

Дом относится к классу бюджетных, поэтому при проектировании мы уделили особое внимание экономичности решений (нет сложной кровли, мансардных окон и пр. ) и потенциальной возможности поэтапной реализации проекта: возведение дома, а затем, по необходимости, - пристройка летней веранды и террасы.

Также дом пригоден для поэтапного ввода помещений в эксплуатацию: введение в эксплуатацию помещений первого этажа, а затем, по мере необходимости, - ввод в эксплуатацию 2-го этажа (назовем этот принцип: "Растущим Домом".

На первом этаже дома находится кухня - студия, то есть кухня и столовая расположены в едином объеме с гостиной. Хотя, по желанию, можно легко это большое помещение разделить на два с различным назначением.

В доме предусмотрен холодный тамбур, что для наших широт очень важно и необходимо. Прихожая с тамбуром образуют центральную входную зону, которая открыта для входа во все помещения первого этажа, а также через входную зону обеспечен быстрый доступ посредством удобной трехмаршевой лестницы ко всем помещениям второго этажа. Совмещенный санузел первого этажа расположен близко к центру дома. Водонесущие коммуникации санузлов и кухни выполнены компактно. При проживании большой семьи санузел первого этажа возможно разделить на туалет и ванную комнату.

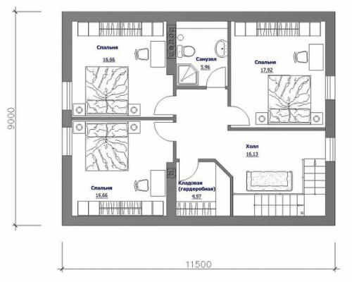
На втором этаже дома удобный холл совмещен с коридором, который функционально объединяет три просторные спальни. Здесь также предусмотрены совмещенный санузел и кладовая, которую можно еще использовать в качестве гардеробной.
Особого внимания заслуживает летняя веранда. В теплое время года на ней может быть организована столовая с видовыми окнами, обращенными на приусадебный участок. Также для посиделок предусмотрена открытая летняя терраса, которая совмещена с крыльцом жилого дома.
Отопление и горячее водоснабжение в доме предусмотрено посредством турбированного двухконтурного газового котла, устанавливаемого в кухне. При желании, установка газового котельного оборудования или твердотопливного котла может быть выполнена в отдельном помещении. Для этого достаточно сделать несложную замену назначения помещений: кабинет станет котельной.
Дополнительным источником тепла и уюта в этом доме является камин, расположенный на первом этаже в зоне гостиной.
Проект энергосберегающие технологии учитывает. Срок строительства дома 6-8 месяцев.
Технические характеристики.
Площадь застройки дома (с верандой и террасой) - 135. 0 м?
Строительный объем - 961. 35 м?
Общая площадь помещений - 165. 14 м?
Площадь жилых помещений - 95. 08 м?
Высота этажей (от пола до потолка) - 1-й этаж - 2. 700 м; 2-й этаж - от 1. 500 до 2. 700 м.
Количество этажей - 2.
Наличие подвала - отсутствует.
Конструктивное исполнение.
Кровля - двускатная, чердачная.
Стропильная система - деревянная.
Чердачное перекрытие - деревянное.
Перекрытие - сборное ж/б с монолитным участком.
Стены - газобетонные блоки перегородки - кирпич лестница - металлическая, обшитая древесиной фундаменты - монолитные ж/б.