Диммер для светодиодных ламп 220 в.
Диммер - многофункциональный выключатель, предназначенный для управления интенсивностью светового потока ламп накаливания, люминесцентных источников света и светодиодных светильников. Изначально такие устройства управлялись механически, и в их функции входило лишь изменение яркости различных источников света. Современные диммеры наделены микросхемами (микроконтроллерами), предназначенными для выполнения целого ряда функций:
Изменение уровня свечения;.
Плавное отключение и включение источника света;.
Эффект присутствия в доме (такая функция позволяет поддерживать сценарий имитации присутствия в жилище хозяев, периодически включая и выключая свет);.
Пример устройства светорегулятора поворотного типа.
Автоматическое отключение от сети;.
Поддержка серии режимов мигания и затемнения;.
Возможность электронного, дистанционного и акустического управления.
Диммеры могут устанавливаться по отдельности или группой, управляя работой одного или нескольких светильников соответственно. В случае если для освещения какой-то зоной объединены несколько источников света, их можно подключить к одному светорегулятору. С его помощью можно будет изменять яркость свечения, используя специальную панель дистанционного управления.
В основе устройства диммера лежит принцип реостата. Меняя сопротивление цепи, можно изменить значение напряжения или тока. Чем выше показатель сопротивления, тем ниже напряжение электротока. В устройстве светорегулятора есть набор резисторов, посредством которых и регулируется интенсивность свечения. Используя диммер, можно настроить комфортный уровень освещения, беря во внимание то, что в разное время требования к освещенности помещений могут быть различными.
Принцип подключения светорегулятора для светодиодных ламп.
Таким образом, применение таких устройств позволяет реализовать не только разнообразные дизайнерские решения, но и значительно снизить расходы на энергопотребление.
Обратите внимание! Функционируя в мягком приглушенном режиме, лампы накаливания и светодиодные светильники способны работать в 5-10 раз дольше.
Диммер для светодиодных ламп.
В зависимости от того, для каких источников света применяются светорегуляторы, они классифицируются на:
Диммер - управление для ламп накаливания;.
Диммеры для светодиодов;.
Светорегуляторы для светодиодных ламп 220 в;.
Диммеры для энергосберегающих ламп (люминесцентных.
По сравнению с лампами накаливания светодиодные значительными преимуществами обладают.
Следует отметить, что в отличие от светодиодных лент и конструкций, полупроводниковые лампы могут подключаться к бытовой сети 220 в без использования преобразователей напряжения. Мощность их составляет до 40 вт. При замене обычных ламп накаливания на светодиодные источники света, необходимо ознакомиться с техническими характеристиками последних: напряжение, мощность, цветовая температура, тип цоколя, срок эксплуатации. Все эти данные имеются на упаковке изделия.
Светодиодные лампы оснащены цоколем, адаптированным под стандартный ламповый патрон. Они выпускаются с цоколями типа Е, MR и G (штырьковый. Наличие резьбовых цоколей диммируемых светодиодных ламп Е 14, Е 27, делает их удобным для подключения к бытовой системе освещения 220 в и позволяет использовать для них стандартные светорегуляторы.
Не все устройства управления совместимы со светодиодными лампами. Чтобы покупатель мог понять, возможна ли регулировка яркости свечения приобретаемой продукции, производители наносят на упаковку и в паспорт светодиодной лампы указание о такой возможности. Это может быть либо соответствующая надпись, либо условное обозначение.
Диммер для светодиодных ламп в интерьере.
Купив диммированную светодиодную лампу, можно сэкономить на приобретении специального светорегулятора. Для ламп, в устройство которых не заложена функция диммирования, используют диммеры для светодиодных светильников, работающие по принципу широтно - полюсной модуляции (ШИМ), которые отличаются довольно высокой стоимостью.
Подключение стандартного диммера под светодиодные лампы нерегулируемого исполнения требует определенного количества мощности в пределах до 45 вт. Так, мощность одной лампы накаливания могут выдавать две, а то и три полупроводниковые лампы 220 в. если же нагрузки будет недостаточно, светодиодные светильники будут работать некорректно и быстро выйдут из строя без возможности гарантийной замены.
Классификация светорегуляторов.
Выбрать модель светорегулятора, которая бы максимально способствовала энергосбережению и увеличению срока эксплуатации светодиодных ламп, можно при ознакомлении с классификацией и техническими параметрами диммеров. Они различаются по конструкции, величине токовой нагрузки, принципу управления, способу монтажа и другим характеристикам.
Дистанционный тип светорегулятора является самым удобным.
По способу управления светорегуляторы классифицируют на:
Сенсорные (контактные) - управление такими устройствами происходит посредством контакта с сенсорной панелью;.
Поворотно - нажимные - пуск происходит вследствие нажатия ручки (большой круглой кнопки), а управление яркостью - путем поворота. Основной особенностью таких устройств является то, что отключить освещение можно в выбранном режиме, не приводя ручку в первоначальное положение;.
Клавишные - модели с кнопками или клавишами, которые регулируют уровень освещенности. Обычно в таких диммерах присутствует клавиша отключения от сети, как у обычного выключателя;.
Дистанционные - регулировка светового потока происходит при помощи пульта ДУ или по беспроводному каналу (Wi - Fi.
Обратите внимание! Благодаря отсутствию в конструкции движущихся элементов, сенсорные светорегуляторы являются наиболее надежными и качественными относительно других моделей.
Различные виды диммеров для светодиодных ламп.
В зависимости от места установки, диммеры делятся на такие типы:
Настенные - монтируются на месте расположения выключателя в комнатах, где планируется управление световым потоком;.
Выносные - имеют вид небольшого блока, установленного рядом со светильником;.
Модульные - устанавливаются в распределительном щитке на DIN - рейку, к которой крепятся узо, выключатели автоматической защиты и другие устройства.
По способу электромонтажной установки, диммеры делятся на устройства для наружной и скрытой проводки.
Первые простейшие светорегуляторы лишь для изменения яркости использовались. В их устройство входила поворотная ручка и вывод для подключения. Такие приборы работали не экономя электроэнергию, так как высвободившаяся мощность просто исчезала в виде ненужного тепла. С появлением полупроводниковых электронных приборов (динисторов и симисторов) функции диммеров заметно расширились.
Принцип действия схемы диммера на симисторе заключается в пропускании через него тока. В таких светорегуляторах основным регулируемым элементом является симистор. От его параметра зависит мощность нагрузки, подключаемой к такой схеме. Благодаря появлению напряжения между электродами симистора а 1 и G лампочка загорается.
Скорость заряда зависит от значения потенциометра R, который заряжается при начале положительной полуволны. Когда показатель сопротивления на симисторе достигает минимального значения, он открывается и лампа светится до конца полуволны. Такая же картина наблюдается и в случае с отрицательной полуволной, так как ток в симисторе предается в обоих направлениях.
Таким образом, напряжение на активной нагрузке являет собой участки отрицательных и положительных полуволн, идущих одна за другой с частотой 100 гц. При совсем слабой яркости свечения лампочки может наблюдаться ее мерцание. Это происходит ввиду того, что питание лампы составляют очень короткие отрезки.
Процесс монтажа диммера электриком.
Схема различных симисторных светорегуляторов для светодиодных ламп почти везде идентична, и может отличаться дополнительными элементами для устойчивого функционирования на "Выходах" с низким напряжением. В некоторых случаях в схему добавляют детали для более плавного управления световым потоком и элементы, снижающие уровень помех в сети.
Как подключить диммер.
В последнее время для управления освещением многие заменяют обычные выключатели на светорегулирующие устройства. Диммер, как и выключатель, имеет два зажима и монтируется на место монтажной коробки с применением тех же проводов, что использовались для бытового выключателя. С помощью достаточно простой схемы подключения диммера, установить светорегулятор под силу любому.
Обратите внимание! Монтаж диммера необходимо производить, придерживаясь правил техники безопасности при электромонтажных работах.
Порядок подключения диммера для светодиодных ламп 220 в своими руками:
С помощью отвертки - индикатора необходимо определить фазу;.
Произвести обесточивание бытовой электросети;.
Руководствуясь схемой диммера для светодиодных ламп, провод с фазой следует подключить к выводу светорегулятора с обозначением "L", второй провод - к разъему с обозначением "N";.
Для получения надежного соединения провода нужно хорошо зажать;.
После сборки всей схемы, с помощью регулировочных болтов следует откорректировать положение корпуса устройства;.
Установить декоративную крышку;.
Подключить питание. В случае если система функционирует, значит, подключение выполнено правильно.
Процесс подключения диммера с выключателем производится последовательно. Некоторые светорегуляторы наделены функцией "Пуск/Отключение". Внимание! Только в том случае, если вы приобрели именно такую модель, то при установке диммера включатель полностью заменяется этим устройством.
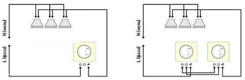
Схема подключения диммера для светильника со светодиодной лампой.
Регулировка света с нескольких мест: принцип работы проходного диммера.
Довольно часто возникают ситуации, когда необходимо организовать систему освещения в большом доме или габаритной квартире. Может понадобиться, например, включить свет в длинной и узкой прихожей и, пройдя по ней, отключить освещение. Потребность приглушить яркость света может возникнуть, если вы уже легли отдыхать или смотреть телевизор, а вставать с кровати совсем не хочется.
Проблему включения освещения с нескольких точек помогут решить проходные выключатели.
А вот регулировать световой поток с нескольких мест можно, установив в одной точке проходной выключатель, а в другой - поворотный диммер. Такое расположение устройств позволит в одном месте только включать освещение, в другом - только регулировать яркость.
Однако есть модели светорегуляторов, обеспечивающих проходное диммирование. К ним относятся сенсорные приборы, которые, благодаря электронике, могут синхронизироваться между собой. Для проходного диммирования к светорегулятору подключают спутниковые устройства. В зависимости от типа диммера, к нему можно подключить от 5 до 10 спутников. Использование спутникового устройства, как самостоятельного прибора невозможно.
Обратите внимание! Для установки светорегуляторов со спутниками, обеспечивающими проходное диммирование, потребуется помощь квалифицированных специалистов.
Производители светорегуляторов: где купить диммеры для светодиодных ламп 220 в.
Руководствуясь мнениями специалистов, купить диммеры для светодиодных ламп лучше у зарекомендовавших себя производителей электроустановочных приборов. Ведущие компании - производители диммеров для светодиодных ламп: Legrand, Schneider, Makel. Они предлагают полный комплекс оборудования: от бытовых выключателей до систем управления освещением.
Изготовление диммера своими руками.
Изготовить светорегулятор самостоятельно можно любому, кто причисляет себя к радиолюбителям и обладает хоть небольшими навыками в этом деле. Так как схема диммера для светодиодных ламп очень простая, разобраться с устройством не составит большого труда, при условии, что у вас есть паяльник и электронные компоненты. Радиодетали можно купить по отдельности или приобрести готовый комплект - конструктор для сборки.
Для изготовления прибора своими руками понадобятся следующие детали и инструменты:
Медная проволока;.
Симистор (триак);.
Конденсаторы - 2 шт;.
Динистор;.
Изготовление диммера для светодиодных ламп под Силу даже начинающему радиолюбителю.
Постоянный и переменный резисторы;.
Паяльник, припой.
Электронные компоненты располагают на печатной плате и с помощью провода соединяют их между собой, используя пайку. При соединении радиодеталей руководствуются схемой светорегулятора. Работа собранной схемы будет заключаться в том, что на неполярный конденсатор будет подаваться переменный ток резистора. А конденсатор, заряжаясь, будет передавать питание лампе.
После того как самодельное устройству будет собрано, его необходимо протестировать. Для этого можно использовать ламповый патрон с лампой. Нужно подсоединить устройство к патрону с помощью проводов и подключить к сети. Так как в цепи присутствует напряжение, опасное для жизни, все места соединений следует тщательно изолировать. Кроме того, нельзя прикасаться к оголенным участкам печатной платы, где находятся проводники.
Диммеры не только управляют световым потоком, но и способствуют энергосбережению и более длительной эксплуатации светодиодных ламп.
В случае если все собрано верно, и все радиодетали исправны, светорегулятор будет работать: при повороте управляющего элемента устройства в одну сторону - лампочка загорится ярче, а при повороте в обратную - интенсивность свечения уменьшится, вплоть до выключения. Диммеры с успехом дизайнерами для светового оформления интерьеров используются. Ведь экспериментируя с освещением, можно придавать помещению различные оттенки: от приглушенного и таинственного до яркого и бодрящего. С помощью светорегуляторов можно задавать удобные сценарии освещенности и изменять привычную обстановку, получая совершенно неожиданные эффекты.






