Все о ремонте

Как правильно сделать ремонт дома или квартиры. Всё что необходимо знать о ремонте, а также море полезной информации.

Двухкомнатную студию? Креативный вариант.

02.03.2017 в 14:30

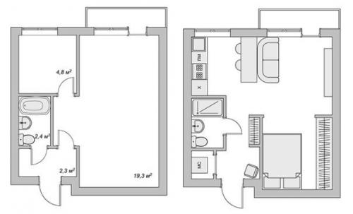
В однокомнатной московской квартире площадью 29 кв. м. дизайнеры правильно использовали каждый сантиметр пространства и нашли место для гостиной, спальни, гардероба и кухни. Изначально квартира была поделена на маленькую кухню (4, 8 кв. м. ), проходную жилую комнату (19, 3 кв. м. ) и крошечный санузел (2, 4 кв. м. ), дверь которого открывалась в прихожую (2, 3 кв. м. ), не давая разместить в ней даже небольшой шкаф для одежды. Впечатляет
Двухкомнатную студию?  Креативный вариант..

Двухкомнатную студию?  Креативный вариант. 01
Двухкомнатную студию?  Креативный вариант. 02
Двухкомнатную студию?  Креативный вариант. 03
Двухкомнатную студию?  Креативный вариант. 04
Двухкомнатную студию?  Креативный вариант. 05
Двухкомнатную студию?  Креативный вариант. 06
Двухкомнатную студию?  Креативный вариант. 07
Двухкомнатную студию?  Креативный вариант. 08