Все о ремонте

Как правильно сделать ремонт дома или квартиры. Всё что необходимо знать о ремонте, а также море полезной информации.

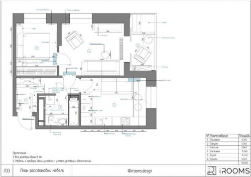
Интерьер двухкомнатной квартиры общей площадью 56, 5 м.

29.01.2024 в 12:30

На фото кухня - 14, 4 м и прихожая - 6, 3 м.

Заказчики стильный современный функциональный интерьер с элементами минимализма хотели.
Дизайн студии "Iroom"
Интерьер двухкомнатной квартиры общей площадью 56, 5 м..

Интерьер двухкомнатной квартиры общей площадью 56, 5 м. 01
Интерьер двухкомнатной квартиры общей площадью 56, 5 м. 02
Интерьер двухкомнатной квартиры общей площадью 56, 5 м. 03
Интерьер двухкомнатной квартиры общей площадью 56, 5 м. 04
Интерьер двухкомнатной квартиры общей площадью 56, 5 м. 05
Интерьер двухкомнатной квартиры общей площадью 56, 5 м. 06
Интерьер двухкомнатной квартиры общей площадью 56, 5 м. 07
Интерьер двухкомнатной квартиры общей площадью 56, 5 м. 08
Интерьер двухкомнатной квартиры общей площадью 56, 5 м. 09

Категории: дизайн спальни