Все о ремонте

Как правильно сделать ремонт дома или квартиры. Всё что необходимо знать о ремонте, а также море полезной информации.

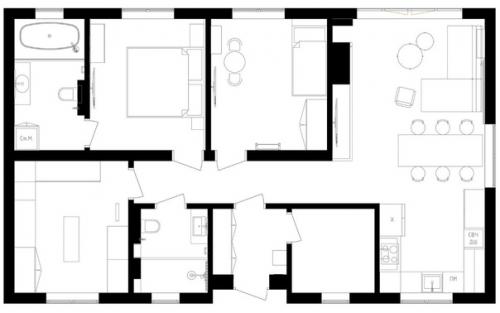
Проект небольшого загородного дома площадью 96 кв.

02.12.2022 в 00:56

м. дизайнеры пространство загородного дома в стиле минимализм оформили
Проект небольшого загородного дома площадью 96 кв..

Проект небольшого загородного дома площадью 96 кв. 01
Проект небольшого загородного дома площадью 96 кв. 02
Проект небольшого загородного дома площадью 96 кв. 03
Проект небольшого загородного дома площадью 96 кв. 04
Проект небольшого загородного дома площадью 96 кв. 05
Проект небольшого загородного дома площадью 96 кв. 06
Проект небольшого загородного дома площадью 96 кв. 07
Проект небольшого загородного дома площадью 96 кв. 08

Категории: дизайн спальни