Все о ремонте

Как правильно сделать ремонт дома или квартиры. Всё что необходимо знать о ремонте, а также море полезной информации.

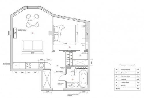
Шикарные апартаменты небольшой площадью всего 42 кв.

19.08.2015 в 00:30

м. ( схема планировки и раскладка с мебелью).
Дизайнер Ирина фефелова, г. Сочи
Шикарные апартаменты небольшой площадью всего 42 кв..

Шикарные апартаменты небольшой площадью всего 42 кв. 01
Шикарные апартаменты небольшой площадью всего 42 кв. 02
Шикарные апартаменты небольшой площадью всего 42 кв. 03
Шикарные апартаменты небольшой площадью всего 42 кв. 04
Шикарные апартаменты небольшой площадью всего 42 кв. 05
Шикарные апартаменты небольшой площадью всего 42 кв. 06
Шикарные апартаменты небольшой площадью всего 42 кв. 07
Шикарные апартаменты небольшой площадью всего 42 кв. 08