Все о ремонте

Как правильно сделать ремонт дома или квартиры. Всё что необходимо знать о ремонте, а также море полезной информации.

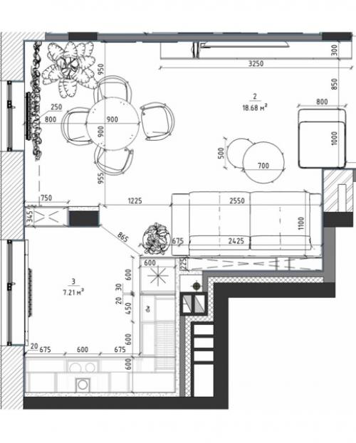
Стильный дизайн - проект кухни и прихожей.

25.12.2021 в 21:38

Минималистичный стиль с нотками современного. Круто выполнили такое непринужденное зонирование небольшой перегородкой
Стильный дизайн - проект кухни и прихожей..

Стильный дизайн - проект кухни и прихожей. 01
Стильный дизайн - проект кухни и прихожей. 02
Стильный дизайн - проект кухни и прихожей. 03
Стильный дизайн - проект кухни и прихожей. 04
Стильный дизайн - проект кухни и прихожей. 05
Стильный дизайн - проект кухни и прихожей. 06
Стильный дизайн - проект кухни и прихожей. 07

Категории: дизайн спальни