Все о ремонте

Как правильно сделать ремонт дома или квартиры. Всё что необходимо знать о ремонте, а также море полезной информации.

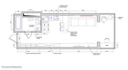
Студия площадью 40 кв.

18.09.2017 в 20:55

м.
Проект от дизайн - студии "GM - Interior"
Студия площадью 40 кв..

Студия площадью 40 кв. 01
Студия площадью 40 кв. 02
Студия площадью 40 кв. 03
Студия площадью 40 кв. 04
Студия площадью 40 кв. 05
Студия площадью 40 кв. 06
Студия площадью 40 кв. 07
Студия площадью 40 кв. 08
Студия площадью 40 кв. 09

Категории: дизайн спальни