Все о ремонте

Как правильно сделать ремонт дома или квартиры. Всё что необходимо знать о ремонте, а также море полезной информации.

Все о дизайне интерьера.

16.05.2021 в 12:30

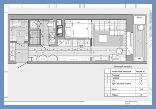
А выжать ма симум из 30 вадратных метров: прое т в питере.
В малень ой прямоугольной вартире дизайнеры разместили уб со спальней внутри и ухней снаружи. Гениально? Не то слово: теперь 30 вадратных метров вмещают больше, чем вы думаете
Все о дизайне интерьера..

Все о дизайне интерьера. 01
Все о дизайне интерьера. 02
Все о дизайне интерьера. 03
Все о дизайне интерьера. 04
Все о дизайне интерьера. 05
Все о дизайне интерьера. 06
Все о дизайне интерьера. 07
Все о дизайне интерьера. 08
Все о дизайне интерьера. 09

Категории: дизайн спальни