Это прекрасное сочетание практичности и эстетики.
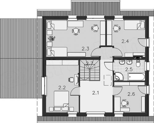
Такой дом идеально подходит для тех, кто ценит пространство и комфорт, но при этом хочет сохранить уют и тепло загородного жилья. Мансардный этаж позволяет использовать пространство под крышей максимально эффективно, превращая его в дополнительные жилые площади, которые могут быть использованы как спальни, рабочие кабинеты или даже комнаты для отдыха.
Этот тип домов часто привлекает внимание своим привлекательным внешним видом, где мансарда придаёт строению особый шарм, а угловые окна и крыша с высокими скатами создают выразительный и необычный облик. Внутри мансардные комнаты дают ощущение простора и света, особенно если окна расположены так, чтобы впускать максимальное количество солнечного света.
Проект такого дома предлагает оптимальное решение для загородного строительства, где каждый квадратный метр используется с умом, а планировка учитывает как функциональность, так и комфорт жителей.

