Все о ремонте

Как правильно сделать ремонт дома или квартиры. Всё что необходимо знать о ремонте, а также море полезной информации.

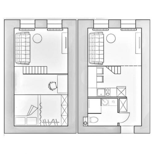
Несмотря на небольшую площадь квартиры в 24 квадратных метра, потолки достаточно высокие - 3, 8 метра.

25.04.2023 в 15:30

Это позволило сделать из квартиры студии лофт со спальней, гардеробом и небольшим домашним офисом на втором уровне.
Таким образом удалось увеличить жилую площадь и получить полноценную квартиру.

Несмотря на небольшую площадь квартиры в 24 квадратных метра, потолки достаточно высокие - 3, 8 метра.
Идеи для дома.

Несмотря на небольшую площадь квартиры в 24 квадратных метра, потолки достаточно высокие - 3, 8 метра. 01
Несмотря на небольшую площадь квартиры в 24 квадратных метра, потолки достаточно высокие - 3, 8 метра. 02
Несмотря на небольшую площадь квартиры в 24 квадратных метра, потолки достаточно высокие - 3, 8 метра. 03
Несмотря на небольшую площадь квартиры в 24 квадратных метра, потолки достаточно высокие - 3, 8 метра. 04
Несмотря на небольшую площадь квартиры в 24 квадратных метра, потолки достаточно высокие - 3, 8 метра. 05
Несмотря на небольшую площадь квартиры в 24 квадратных метра, потолки достаточно высокие - 3, 8 метра. 06
Несмотря на небольшую площадь квартиры в 24 квадратных метра, потолки достаточно высокие - 3, 8 метра. 07
Несмотря на небольшую площадь квартиры в 24 квадратных метра, потолки достаточно высокие - 3, 8 метра. 08

Категории: ремонт офисов