Проект загородного дома "Фахверк" - немецкая изысканность.
Загородный дом "Фахверк" отличается особой атмосферой единения всех функциональных зон внутреннего пространства. Открытая кухня гармонично связана с гостиной и одновременно выделена в отдельную зону особым конструктивным решением междуэтажного перекрытия, деревянные балки которого украшают и дополняют интерьер.

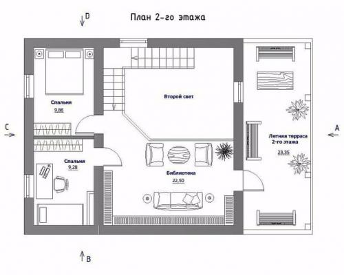
Второй свет, а также компактная "Парящая", двухмаршевая лестница объединяют пространства первого и полумансардного этажей. Такое планировочное решение позволило придать гостиной воздушный объем.

Библиотека, находящаяся на внутреннем балконе мансардного этажа, создает особый уют и атмосферу. Здесь расположена зона тихого отдыха, имеющая непосредственный выход на крытую летнюю террасу второго этажа.
В нашем проекте мы кроме гостиной предусмотрели три жилые комнаты: одну на первом этаже и две - на втором. Они могут использоваться в качестве спальных комнат для всех членов семьи, а также в качестве гостевых, детских или кабинета.

Функциональность дома дополняет удобный вход в подвальное помещение, расположенное под частью дома.
Решение фасада принято в стиле фахверкового дома. Особым акцентом экстерьера является двухэтажная деревянная дубовая терраса, первый этаж которой кроме выполнения функции зоны отдыха является также входной зоной в дом.
Немаловажным фактором является экономичность, в том числе и при эксплуатации, и быстровозводимость данного объекта.

Этот уютный загородный дом не имеет коридоров, но в нем нет недостатков планировочного решения с проходными помещениями. Он станет идеальным местом для постоянного проживания или загородного отдыха вашей семьи.
Технические характеристики.
Площадь застройки - 104. 5 м?
Строительный объем - 551. 0 м?
Общая площадь помещений - 100. 4 м?
Площадь жилых помещений - 66. 9 м?
Высота этажей (от пола до потолка) - 2. 680 м.
Количество этажей - 2.
Наличие подвала - присутствует.
Конструктивное исполнение.
Кровля - двускатная, чердачная.
Стропильная система - деревянная.
Междуэтажное перекрытие - деревянное.
Стены - газобетон перегородки - кирпич, газобетон фундаменты - монолитные ж/б.




