Все о ремонте

Как правильно сделать ремонт дома или квартиры. Всё что необходимо знать о ремонте, а также море полезной информации.

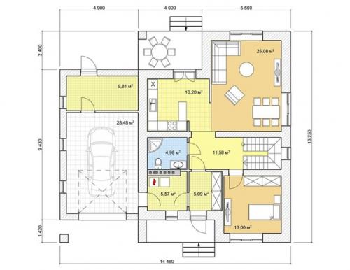
Просторный респектабельный коттедж с террасой, балконом и гаражом.

23.09.2020 в 00:55

Первый этаж:
Тамбур.
Холл.
Санузел.
Гостиная.
Кухня.
Котельная.
Гараж.
Спальня.
Второй этаж: три спальни гардероб санузел
Просторный респектабельный коттедж с террасой, балконом и гаражом..

Просторный респектабельный коттедж с террасой, балконом и гаражом. 01
Просторный респектабельный коттедж с террасой, балконом и гаражом. 02
Просторный респектабельный коттедж с террасой, балконом и гаражом. 03