Расчет количества обоев на комнату таблица. Расчет по периметру комнаты и количеству полос
Расчет количества обоев на комнату таблица. Расчет по периметру комнаты и количеству полос
Данный способ предусматривает определение необходимого количества полос обоев, требуемых для оклейки конкретной комнаты. Для этого:
- измеряется длина и ширина комнаты, на основании чего определяется ее общий периметр;
- измеряется ширина оконного и дверного проема, которая вычитается из общего периметра;
- полученная величина делится на ширину рулонов обоев, которыми предполагается оклеивать комнату;
- вычисленное значение округляется до целого значения в сторону увеличения и представляет собой нужное количество полос;
- эта величина делится на количество полос, которое содержит один рулон обоев в зависимости от его длины;
- полученное значение также округляется до целого значения, что и представляет собой требуемое количество рулонов обоев.
Рассмотрим этот способ расчета на конкретном примере:
Пример. Требуется оклеить обычную комнату размером 7,5 м на 3 м, с высотой потолка 2,5 м, проемом окна 2,1 м на 1,5 м и двери 0,9 м на 2 м. Для оклейки будут использовать обои шириной 53 см и длиной 10 м.
Для расчета требуемого количества рулонов обоев необходимо:
- Определить общий периметр комнаты: (7,5+3)*2=21 м.
- Определить общую ширину проема окна и двери: 2,1 +0,9=3 м.
- Вычесть из общего периметра общую ширину проемов: 21-3=18 м.
- Разделить полученное значение на ширину рулона обоев: 18/0,53=33,9 и округлить результат до целого значения – получается 34 полосы, необходимых для оклейки комнаты.
- Рассчитать количество полос обоев в одном рулоне, для чего нужно разделить длину рулона на высоту потока: 10/2,5=4.
- Разделить требуемое количество полос обоев на количество полос в одном рулоне: 34/4=8,5 и округлить эту цифру до целого значения – получается 9.
Таким образом, для оклейки данной комнаты потребуется 9 рулонов обоев. При этом следует учитывать, что такой способ не учитывает поверхность стен над и под проемами окон и двери, поэтому желательно дополнительно приобрести еще один рулон.
Сколько рулонов обоев нужно на 20 кв. Рассчитаем рулоны обоев
Нам придется воспользоваться школьными знаниями математики, которые помогут не запутаться в цифрах, однако предварительно определите основные параметры:
- Периметр выбранной для отделки комнаты . Для этого требуется сложить длины всех стен и разделить полученную цифру на 0,53 м или на 1,06 м. Также следует поступать и при использовании нестандартной ширины отделочного материала. Это нам позволит узнать количество полос.

Работа со стандартным узким рулоном (0,53 м)
- Ширина и длина рулона . Стандартной считается ширина 53 см и 106 см, остальные нестандартные. При этом длина в первом случае может быть 10,05, 12 или 15 м, во втором – до 25 м. Если у вас потолки в квартире 2,4-2,5 м, значит, узкого хватит на 4 полосы.
Для лучшего понимание приведем пример, как узнать сколько нужно обоев на комнату, где:
- общая длина стен составит – 5 и 6 м;
- потолки – высотой 2,5 м.

Клеим «метровые» (1,06 м) полотна
Расчет:
- Ширина 53 см:
5*2+6*2=22 м (общий периметр комнаты);
22:0,53≈42 (полосы);
42:4≈11 (рул.).
- Ширина 106 см:
22:1,06≈21 (полоса);
Так как в рулоне длиной 25 м будет 10 полос, значит, в нашем случае понадобится 2 рул. Последнюю полосу придется состыковать внизу, чтобы не докупать новый.
На самом деле, данный подсчет будет несколько приблизительным. Итак, зная основные параметры, сколько нужно обоев на комнату 12 метров по периметру определить уже несложно, а именно: 12:0,53:4≈6 штук.

Расчет материала при высоте стен 3 м
Общая формула расчета
Из сказанного выше можно с легкостью составить общую формулу для данных действий: P:L:3 (с подгонкой рисунка) или 4 (без подгонки изображения), где P – периметр комнаты, L – ширина рулона обоев.
Совет: полученный результат следует всегда округлять в большую сторону.
Теперь настал черед поговорить о пространстве под окном и над дверным проемом, так как на данных участках приходиться использовать не целую полоску обоев. Один из вариантов – воспользоваться остатками от подгонки рисунка. Тем самым вы сможете сильно сэкономить на ремонтных работах.
Совет: для определения, сколько нужно обоев на комнату 20 метров по площади с длиной стен 5 и 4 м, нужно: (5*2+4*2):1,06:10≈1 (рул).

Расчет площади стен
Если вы любитель точных цифр, сделайте следующее:
- определите по формуле количество рулонов, не учитывая пространство над дверью и под окном;
- добавьте к ним необходимое количество для этих участков.
В этом случае результат окажется максимально полным.
Давайте определим, сколько нужно обоев на комнату 16 метров и 17 метров с подгонкой рисунка:
- 16:0,53:3=10 рул.;
- 17:0,53:3=11 рул.
Рекомендации профессионалов
Ниже будет предложена инструкция подсчета количества обоев для экономных домашних мастеров:
- Если на настенных покрытиях подразумевается повторяющийся узор, уточните у продавца размер его шага и разделите параметр высоты на эту цифру.
- Округлите полученное число и умножьте его на тот же размер шага изображения. Найденная в результате цифра будет являться длиной полосы, которую нужно отрезать от полотна.
- Вычислите разницу, которая уйдет в отход, отняв от длины обойной полосы высоту стены.
- Разделите общую длину рулона на длину полосы, которую вы нашли во 2-ом пункте, у вас получится коэффициент. На него умножьте разницу, найденную в пункте 3. Получите общую величину отходов и вычтите ее из общей длины.
Теперь разделите значение оклеиваемой площади на чистое от отходов число из пункта 4. Данный результат количества рулонов будет окончательным.
Сколько нужно обоев на комнату 18 метров. Сколько надо обоев на комнату. Чем и как мерять. Расчет с учетом шага орнамента
В этой статье мы расскажем о простых способах, применив которые вы сможете рассчитать то, сколько обоев надо на комнату 18 метров. Казалось бы, такая калькуляция не представляет ничего особо сложного, так как замерить параметры стен может каждый.

Ответственный подход к подсчёту отделочных материалов упростит их монтаж
Но, на самом деле, результат подсчета зависит от таких факторов как ширина и длина рулонов, наличие выступающих архитектурных элементов, размер окон, дверей и т.д. Итак, расскажем о наиболее простых и действенных способах, применяя которые вы сможете правильно посчитать, сколько обоев надо на комнату 10 метров или на помещение с большей площадью.

На фото — недешёвые отделочные материалы, которые станут более доступными, благодаря правильным замерам
Вопросы наподобие, сколько обоев надо на комнату 14 метров не напрасны, так как отделочные материалы стоят недёшево и их перерасход нежелателен.
Часто, запланировав косметический ремонт в помещении площадью около 20 метров, мы отправляемся в магазин, имея весьма смутные представления о том, что и в каком количестве нам нужно.
Придя в магазин, мы в первую очередь обращаем внимание на расцветку и фактуру материалов. Далее нас интересует цена, и только после этого мы задаемся вопросом, из чего сделаны те покрытия, которые нам нравятся.
Каково же наше удивление, когда мы узнаем, что помимо всех ранее перечисленных отличий, обойные рулоны могут быть разной ширины и длины. Тут же в магазине начинается лихорадочный подсчёт количества погонных метров. В результате вы закупаете материала больше или меньше, чем это нужно.
Если рулонов больше чем надо, это не беда, так как не распакованные излишки можно вернуть продавцу или оставить для проведения последующих ремонтов. Немного хуже если посчитано меньшее количество материалов.
Если отделочного материала будет недостаточно, вам придется отправиться за дополнительным рулоном. Здесь вас может подстерегать существенная неприятность — нужные обои будут, но из другой партии. Казалось бы тот же цвет и та же фактура, но на тон темнее!
Вероятнее всего вы обнаружите разницу уже после поклейки, и исправлять ошибки будет непросто. Ну и наконец, знать, как много обоев потребуется, необходимо затем, чтобы приобрести достаточное количество клея. На упаковке клея указана дозировка из расчета на квадратный метр поверхности или на количество стандартных упаковок.

Тщательно проводим замеры, чтобы знать, сколько стоит поклеить обои в комнате
Сделать своими руками косметический ремонт в комнате без перерасхода материалов вполне возможно, главное правильно посчитать размеры отделываемой поверхности и купить требуемое количество обоев.
Что потребуется для проведения замеров? Понадобится рулетка не менее 5 метров, карандаш и лист бумаги.

Схема расположения полос для подсчёта материалов
Пожалуй, расскажем о самом простом способе вычислений, который чаще всего применяется обычным человеком, запланировавшим косметический ремонт в квартире.
- Сначала замеряем длину всех стен по периметру помещения.
- Затем определяем высоту стен от потолка до пола без багетов и плинтусов.
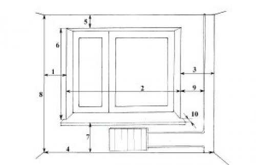
- Далее определяем ширину и высоту оконных и дверных проемов уровня стен ;
- Определяем расстояние от верхней части дверных и оконных проемов до потолка и от нижней части подоконника до пола.
- Теперь проводим подсчеты согласно полученным замерам . Периметр помещения делим на ширину рулона тех обоев, которые предполагается использовать. В результате этих подсчётов мы можем узнать о том, как много потребуется полос.
- Далее нужно поделить длину рулона на высоту стен и в итоге мы узнаем, число кусков, которые можно нарезать с каждой упаковки обоев (как правило, стандартный при высоте стен в 2,5 м можно нарезать на четыре куска).
- Теперь, зная, число кусков в рулоне, считаем, сколько необходимо полос и, следовательно, сколько нужно рулонов . В итоге, мы вычислим, сколько потребуется рулонов с учётом цельной полосы.
- Аналогичным образом считаем, как много потребуется неполных полос . В итоге складываем количество неполных полос и рассчитываем, сколько потребуется на это рулонов.