Установка реечного потолка своими руками. О преимуществах реечных потолков
- Установка реечного потолка своими руками. О преимуществах реечных потолков
- Как установить реечный потолок пошагово. Открытый тип
- Монтаж реечного потолка Албес. Монтаж кассетных потолков Албес
- Кубообразный реечный потолок монтаж. Монтаж реечного потолка - инструкция, видео
- Деревянный реечный потолок своими руками. Как сделать деревянный потолок в квартире своими руками
- Видео монтаж реечного потолка Албес
Установка реечного потолка своими руками. О преимуществах реечных потолков

Специалисты – строители быстро и по достоинству оценили практичность и декоративные качества нового потолочного покрытия, выражающиеся в следующих его качествах:
- Устойчивость к воздействию влаги, что позволяет использовать алюминиевые реечные потолки в ванных комнатах, санузлах, банях и прачечных, кухнях и во всех других помещениях с возникающей периодически повышенной влажностью.
- Пожарная безопасность и высокая огнестойкость. В конструкции таких потолочных покрытий используются только негорючие материалы.
- Высокая способность наружного слоя к отражению света, что позволяет применять осветительные приборы меньшей мощности, экономя электроэнергию.
- Экологическая чистота, поскольку металлические составляющие этих изделий не выделяют в окружающее пространство никаких испарений или выделений.
- Устойчивость к воздействию болезнетворных бактерий.
- Повышенная прочность таких устройств. Рейки из сплавов алюминия устойчивы к ударным нагрузкам, что позволяет использовать их для отделки наружных объектов.
- Простой монтаж, позволяющий его исполнение даже неопытным работникам.
- Легкость конструкции, не перегружающей потолки.
- Эстетичность изделия. Не все дизайнеры любят металлический блеск поверхностей, указывая на невозможность их использования для спальных помещений и детских комнат. Однако возможность применения разноцветных элементов и гнутых поверхностей сильно нивелирует этот мнимый недостаток.
- Увеличенный срок службы, достигающий в благоприятных условиях эксплуатации 50 лет при гарантийном сроке в 20 лет.
- Ремонтоспособность. Замену поврежденной планки можно произвести без демонтирования опорной системы в индивидуальном порядке.
- Длина реек для потолка в стандартном исполнении составляет 3,4 метра при толщине 0,3 – 0,4 мм. Некоторые производители производят их длиной до 6 метров для использования в отделке потолков помещений больших габаритов и промышленных зданий.
Простота ухода за алюминиевыми потолками. Для содержания их в чистоте достаточно протирать поверхность влажной губкой.Как установить реечный потолок пошагово. Открытый тип
Второй тип таких потолков называется открытым. Если вы внимательно сравните снимки, то сразу поймете, в чем кроется отличие систем. В этом случае элементы обшивки не связаны друг с другом. Они по отдельности крепятся к несущему каркасу, который в свою очередь привязан к капитальному основанию.

Реечный потолок открытого типа из деревянных элементов
Смотрятся такие потолки необычно, но особенно гармоничны они в помещениях с очень высокими потолками, чтобы не было видно через щели капитального основания, хотя последнее утверждение носит спорный характер, так как некоторые стили, наоборот, стремятся подчеркнуть эти места. Чтобы убедиться, насколько красивы такие решения, посмотрите следующую фото подборку.

Дизайнерский реечный потолок открытого типа

Над рейками виднеется вентиляционная система, но общей картины это никак не портит

Открытые потолки в азиатском торговом центре

Реечный потолок перекликается со схожей конструкцией на стене
Устанавливая подобный потолок у себя дома, стоит помнить о некоторых нюансах:
- Преимуществом системы такого типа является возможность добраться до локальных участков надпотолочного пространства без полного демонтажа покрытия – так как рейки закреплены независимо, то и сниматься они могут так же.
- Такой потолок выглядит легким и воздушным, но только при условии, повторимся, достаточной высоты потолков. Сочетаться он будет далеко не с каждым интерьером – лучше всего его использовать в индустриальных стилях, где наличие на виду коммуникаций только приветствуется.
- По поводу коммуникаций. Перед тем как смонтировать такой потолок, необходимо тщательно продумать их расположение, чтобы ничего не мешало установке и сильно не бросалось в глаза. Также их стоит очень аккуратно смонтировать, чтобы это не было похоже на нагромождение проводов и труб – используйте различные кабель-каналы и прочие монтажные приспособления. Даже в индустриальных стилях перфекционизм приветствуется.
- Так же стоит помнить, что разместить над таким потолком слои звуко- и теплоизоляции вам навряд ли удастся. Во-первых, это будет некрасиво, а во-вторых, в помещение будут попадать частицы утеплителя, что иногда даже вредно для здоровья.
Монтаж реечного потолка Албес. Монтаж кассетных потолков Албес
Кассетные алюминиевые потолки монтируются несложно и стандартно. Технология монтажа потолков Албес схожа с реечными потолками, однако, имеет свои особенности.
Закрепление коммуникаций
Для начала нужно закрепить все коммуникации, чтобы они не падали на подвесной потолок.
Обозначение уровня
Далее отбиваем уровень плоскости подвесного потолка по периметру помещения.
Для этого Вам понадобятся:
Уровень-рейка длиной не менее 1,5 м
Шнур-отвес — инструмент для разметки горизонтальных и вертикальных линий
Водяной уровень
Крепление профилей
Далее по намеченному уровню производится крепление профиля по периметру помещения.
Для получения ровной и непрерывной поверхности профили необходимо состыковывать с помощью стыковочного сегмента. Его можно вырезать из уголка с помощью ножниц по металлу.
Для этого нужно обрезать загибы с двух сторон уголка так, чтоб получилась гладкая поверхность. Этот сегмент нужно вставлять одной стороной в паз одного уголка, с другой — следующего. Этот процесс вы можете подробно увидеть в
Периметральный профиль крепится к стене с помощью крепежного элемента с шагом не менее 450 мм.
Разметка первой оси привязки
Осью привязки называется шнур, который крепится между стенами для разметки горизонтальных линий. Вдоль осей привязки в последствии будут проходить несущие направляющие.
Начинаем с оси, которая будет проходить вдоль длинной стены помещения. По оси натягивается монтажная шнурка. Относительно нее будет производится разметка и монтаж кассетного подвесного потолка.
Крепление подвесов
Оно производится по первой оси с шагом, не превышающим 120 см. Подвес монтируется к черновому потолку с помощью шарнирного соединения.

Важно! Отступ от края стены следует делать не более 60 см при весе панелей до 4 кг/м2, при большем весе отступ должен быть не более 45 см.
Монтаж несущей направляющей
На первую линию подвесов вдоль линии оси привязки вешаем несущую направляющую нужной длины. Части направляющей легко защелкиваются между собой благодаря замковой конструкции.

Разметка второй оси привязки
Производится строго перпендикулярно первой оси. По этой разметке натягиваем вторую шнурку.
По имеющимся осям привязки производим подравнивание несущих профилей.
Крепление промежуточных профилей
Крепим промежуточные Т-профили, которые образуют ячейки нужного размера по осям профиля. Угол между примыкающими профилями должен быть строго перпендикулярным.
Для фиксации несущей направляющей нужно использовать подвес, закрепляя его в распор к стене. Также использовать короткие направляющие Т-профиля, которые крепится к пристенному уголку.
Монтаж остальных линий несущих профилей
Остальные линии несущих профилей монтируются аналогично первой, выдерживая размеры от оси привязки.
Вставка кассетных панелей
В полученный каркас из несущих профилей вставляются кассетные панели.
Таким образом, преимущества алюминиевых подвесных потолков очевидны. Они функциональны и просты в эксплуатации. Надеемся, что после прочтения этой статьи, монтаж кассетных подвесных потолков не вызовет никаких трудностей.
Кубообразный реечный потолок монтаж. Монтаж реечного потолка - инструкция, видео
Схема установки реечного потолка (открытый тип - со вставками)

Этапы монтажа реечного потолка
Монтаж реечного потолка открытого и закрытого типа не имеет существенных отличий, по этому рассмотрим последовательность действий на примере установки реечного потолка открытого типа, как наиболее распространенного:
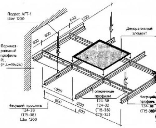
I. Монтаж углового пристенного профиля

Периметральный уголок реечного потолка крепится к стенам по заранее подготовленным меткам горизонтального уровня. Стоит отметить, что в случае установки реечного потолка в помещении, стены которого облицованы керамической плиткой (кафелем), пристенный уголок монтируется параллельно горизонтальным швам между рядами плитки. Это необходимо, чтобы избежать визуального перекоса между потолком и стенами. В остальных случаях горизонтальные метки для уголка находятся при помощи водяного или лазерного уровней. Угловой профиль крепится к стенам на забивные дюбели или саморезы - выбор крепежа зависит от материала стен.
II. Установка несущих гребенок

Прежде чем устанавливать гребенки (стрингеры, траверсы), необходимо определиться с направлением реек будущего потолка. Гребенки устанавливаются на угловой профиль перпендикулярно направлению реек. Для того, чтобы конструкция реечного потолка была достаточно жесткой и не имела провисаний, необходимо соблюдать несколько условий: расстояние между гребенками не более 1200мм; расстояние между стеной и крайней гребенкой не более 300мм.
Гребенка имеет замки для установки реек, поэтому не забывайте проверять, нет ли необходимости её предварительно подрезать для смещения замков в нужную сторону. Это делается для того, чтобы замки на параллельных гребенках совпадали (иначе рейки не установятся), а так же для подгонки симметричной подрезки крайних реек.
В зависимости от расстояния, на которое опускается реечный потолок от несущего перекрытия, гребенки либо прибиваются анкерами непосредственно к черновому потолку, либо подвешиваются на подвесах. Подвесы могут быть перфорированные (для профилей к ГКЛ) или регулируемые пружинные.
Деревянный реечный потолок своими руками. Как сделать деревянный потолок в квартире своими руками
Самостоятельное обустройство потолка из дерева несложно, особенно если выбрать простую в монтаже обшивку. Пожалуй, один из наиболее подходящих вариантов — любая разновидность вагонки. Рассмотрим процесс сборки потолка из этого материала.
Подготовительные работы
Обшивка потолка будет крепиться на обрешетку, поэтому выравнивать основание не потребуется. Нужно будет только убрать значительные дефекты, если они есть. Крупные или осыпающиеся трещины лучше заделать. Если предполагается монтаж дополнительной тепло- или звукоизоляции, ее нужно уложить на этом этапе. Сначала к потолку монтируется слой пароизоляции. Поверх закрепляется слой утеплителя, следом гидроизоляция.

Фото: Instagram valeriimuntaniol
Обустройство обрешетки
Реечный потолок представляет собой подвесную конструкцию, закрепленную на каркасе. Последний называется обрешеткой и собирается из деревянных брусков или реек. Первый элемент закрепляется около стены. Все последующие монтируются с шагом 30-40 см. Это зависит от размеров вагонки. Чтобы потолок получился ровным, рекомендуется перед установкой обрешетки натянуть леску, выровнять ее с помощью уровня и по ней выставлять элементы каркаса.
Если планируется обшивать потолок вдоль или поперек плоскости, установите детали обрешетки перпендикулярно направлению закрепления планок. Если же обшивать потолок хотите под углом, рейки обрешетки нцжно установить в обоих направлениях. После окончания монтажа обрешетки можно уложить все коммуникации, которые должны оставаться скрытыми.

Фото: Instagram valeriimuntaniol
Закрепление обшивки
Приступая к облицовке обрешетки, нужно помнить о том, что дереву обязательно необходим компенсационный зазор. Поэтому рейки не должны быть установлены вплотную к стенам. Деревянные пластины могут закрепляться на обрешетке разными способами. Самый простой, но не очень эстетичный, — это крепление саморезами. Их можно устанавливать в паз доски, тогда получится скрытое крепление. Или крепить прямо в поверхность доски, тогда шляпки останутся на виду.
