Все о ремонте

Как правильно сделать ремонт дома или квартиры. Всё что необходимо знать о ремонте, а также море полезной информации.

Замечательный дизайн - проект квартиры.

17.07.2021 в 18:57

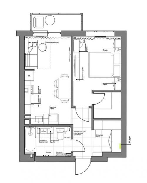
Санузел очень необычный, но стильный. На последнем изображении есть планировка, так что будет полезно
Замечательный дизайн - проект квартиры..

Замечательный дизайн - проект квартиры. 01
Замечательный дизайн - проект квартиры. 02
Замечательный дизайн - проект квартиры. 03
Замечательный дизайн - проект квартиры. 04
Замечательный дизайн - проект квартиры. 05
Замечательный дизайн - проект квартиры. 06
Замечательный дизайн - проект квартиры. 07
Замечательный дизайн - проект квартиры. 08
Замечательный дизайн - проект квартиры. 09