Все о ремонте
Как правильно сделать ремонт дома или квартиры. Всё что необходимо знать о ремонте, а также море полезной информации.
Main menu
Главная
Ремонт квартир
Ремонт дома
Дизайн
Главная
»
Дизайн
»
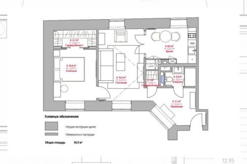
Двухкомнатные апартаменты в классическом стиле, с гардеробом и окном в прихожей.
Двухкомнатные апартаменты в классическом стиле, с гардеробом и окном в прихожей.
29.05.2021 в 11:57
Дизайн
Площадь квартиры - 50 кв. м. автор дизайна - Светлана Старцева
.
Категории:
дизайн спальни
Понравилось? Поделитесь с друзьями!
⇦
Тем, кто впервые решается на оформление кухни в сером цвете мы можем предложить разбавить скучный цвет оттенком белого.
⇨
Элементов декора в скандинавских интерьерах не должно быть много.