Каркасный дом - современное и практичное решение для комфортного проживания.
На фото представлен дизайн - проект дома, планировка помещений и реализованный вариант постройки. Проект демонстрирует одноэтажный дом с лаконичным фасадом, вальмовой крышей и открытой верандой, что делает его удобным для загородной жизни.
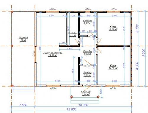
План дома показывает рациональное распределение пространства: жилые комнаты, кухню - гостиную, санузел и прихожую. Благодаря каркасной технологии здание отличается энергоэффективностью, быстрыми сроками строительства и возможностью адаптации планировки под индивидуальные потребности.
Реализованный дом полностью соответствует проекту, сочетая современный внешний вид, функциональность и надёжность. Каркасная конструкция обеспечивает тепло, прочность и долговечность, а аккуратная отделка придаёт дому завершённый и привлекательный облик.

Общая площадь помещений 73, 93 м 2, площадь террасы 20 м 2.


