Все о ремонте
Как правильно сделать ремонт дома или квартиры. Всё что необходимо знать о ремонте, а также море полезной информации.
Main menu
Главная
Ремонт квартир
Ремонт дома
Дизайн
Главная
»
Дизайн
»
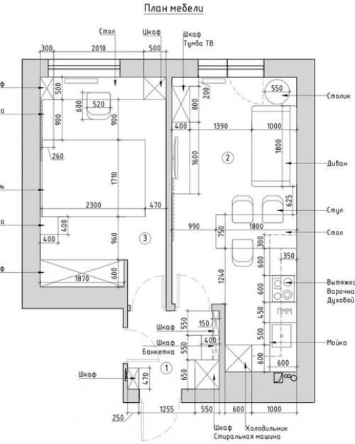
Оцените насыщенный интерьер этой однушки с приятным сочетанием оттенков, площадью 33 кв.
Оцените насыщенный интерьер этой однушки с приятным сочетанием оттенков, площадью 33 кв.
07.04.2024 в 16:55
Дизайн
м.
Дизайн: Iroomsdesign
.
Категории:
дизайн спальни
Понравилось? Поделитесь с друзьями!
⇦
Как выбрать идеальную дверь для частного дома: руководство по выбору
⇨
Интерьер кухни - гостиной площадью 29 кв.