Все о ремонте

Как правильно сделать ремонт дома или квартиры. Всё что необходимо знать о ремонте, а также море полезной информации.

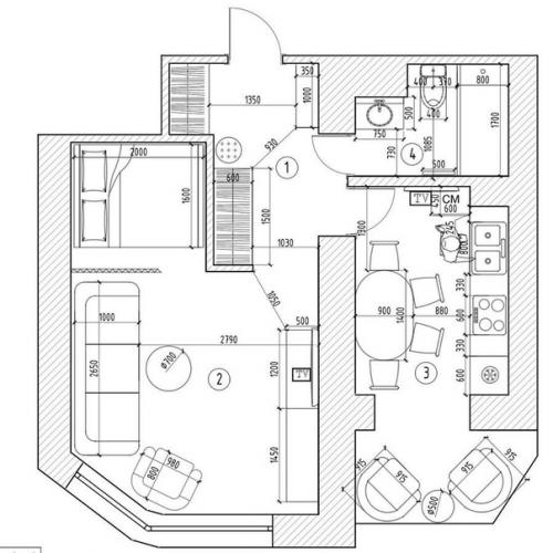
Очень красивый дизайн - проект однушки.

30.04.2021 в 18:33

Круто выполнено зонирование спального места. Перегородка очень легкая, отлично вписалась в интерьер
Очень красивый дизайн - проект однушки..

Очень красивый дизайн - проект однушки. 01
Очень красивый дизайн - проект однушки. 02
Очень красивый дизайн - проект однушки. 03
Очень красивый дизайн - проект однушки. 04
Очень красивый дизайн - проект однушки. 05
Очень красивый дизайн - проект однушки. 06
Очень красивый дизайн - проект однушки. 07
Очень красивый дизайн - проект однушки. 08
Очень красивый дизайн - проект однушки. 09

Категории: дизайн спальни