Все о ремонте

Как правильно сделать ремонт дома или квартиры. Всё что необходимо знать о ремонте, а также море полезной информации.

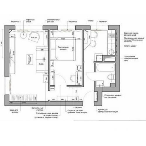
Очень уютный дизайн - проект малогабаритной квартиры.

16.06.2021 в 10:30

Идеальное исполнение, так как это один из самых бюджетных вариантов. Единственное, что очень сильно смущает, так это открытые полки с книгами в гостиной. Ведь можно сделать очень красивый шкаф со стеклом. Зачем эти открытые полки непонятно. А так
Очень уютный дизайн - проект малогабаритной квартиры..

Очень уютный дизайн - проект малогабаритной квартиры. 01
Очень уютный дизайн - проект малогабаритной квартиры. 02
Очень уютный дизайн - проект малогабаритной квартиры. 03
Очень уютный дизайн - проект малогабаритной квартиры. 04
Очень уютный дизайн - проект малогабаритной квартиры. 05
Очень уютный дизайн - проект малогабаритной квартиры. 06
Очень уютный дизайн - проект малогабаритной квартиры. 07
Очень уютный дизайн - проект малогабаритной квартиры. 08
Очень уютный дизайн - проект малогабаритной квартиры. 09

Категории: дизайн спальни