Сколько рулонов обоев нужно на комнату 14 метров. Рассчитаем рулоны обоев
- Сколько рулонов обоев нужно на комнату 14 метров. Рассчитаем рулоны обоев
- Связанные вопросы и ответы
- Точный калькулятор обоев. Калькулятор обоев
- Калькулятор обоев онлайн
- Инструкция по использованию калькулятора
- Теперь о каждом пункте нашего онлайн калькулятора поподробнее
- Размеры помещения
- Двери окна
- Параметры обоев
- Запас на выравнивание
- Кнопка рассчитать
- Результаты расчётов
- Как рассчитать количество обоев для одной стены , двух, потолка или для комнаты с неправильной формой
- Рассчитываем обои на одну стену
- Рассчитываем обои на две, три, пять стен, или в комнате неправильной формы
- Не проходите мимо
- Сколько рулонов обоев нужно на 20 кв. Сколько нужно рулонов обоев на оклейку стен в комнате, и как правильно рассчитать количество обоев по формуле
Сколько рулонов обоев нужно на комнату 14 метров. Рассчитаем рулоны обоев
Нам придется воспользоваться школьными знаниями математики, которые помогут не запутаться в цифрах, однако предварительно определите основные параметры:
- Периметр выбранной для отделки комнаты . Для этого требуется сложить длины всех стен и разделить полученную цифру на 0,53 м или на 1,06 м. Также следует поступать и при использовании нестандартной ширины отделочного материала. Это нам позволит узнать количество полос.

Работа со стандартным узким рулоном (0,53 м)
- Ширина и длина рулона . Стандартной считается ширина 53 см и 106 см, остальные нестандартные. При этом длина в первом случае может быть 10,05, 12 или 15 м, во втором – до 25 м. Если у вас потолки в квартире 2,4-2,5 м, значит, узкого хватит на 4 полосы.
Для лучшего понимание приведем пример, как узнать сколько нужно обоев на комнату, где:
- общая длина стен составит – 5 и 6 м;
- потолки – высотой 2,5 м.

Клеим «метровые» (1,06 м) полотна
Расчет:
- Ширина 53 см:
5*2+6*2=22 м (общий периметр комнаты);
22:0,53≈42 (полосы);
42:4≈11 (рул.).
- Ширина 106 см:
22:1,06≈21 (полоса);
Так как в рулоне длиной 25 м будет 10 полос, значит, в нашем случае понадобится 2 рул. Последнюю полосу придется состыковать внизу, чтобы не докупать новый.
На самом деле, данный подсчет будет несколько приблизительным. Итак, зная основные параметры, сколько нужно обоев на комнату 12 метров по периметру определить уже несложно, а именно: 12:0,53:4≈6 штук.

Расчет материала при высоте стен 3 м
Общая формула расчета
Из сказанного выше можно с легкостью составить общую формулу для данных действий: P:L:3 (с подгонкой рисунка) или 4 (без подгонки изображения), где P – периметр комнаты, L – ширина рулона обоев.
Совет: полученный результат следует всегда округлять в большую сторону.
Теперь настал черед поговорить о пространстве под окном и над дверным проемом, так как на данных участках приходиться использовать не целую полоску обоев. Один из вариантов – воспользоваться остатками от подгонки рисунка. Тем самым вы сможете сильно сэкономить на ремонтных работах.
Совет: для определения, сколько нужно обоев на комнату 20 метров по площади с длиной стен 5 и 4 м, нужно: (5*2+4*2):1,06:10≈1 (рул).

Расчет площади стен
Если вы любитель точных цифр, сделайте следующее:
- определите по формуле количество рулонов, не учитывая пространство над дверью и под окном;
- добавьте к ним необходимое количество для этих участков.
В этом случае результат окажется максимально полным.
Давайте определим, сколько нужно обоев на комнату 16 метров и 17 метров с подгонкой рисунка:
- 16:0,53:3=10 рул.;
- 17:0,53:3=11 рул.
Рекомендации профессионалов
Ниже будет предложена инструкция подсчета количества обоев для экономных домашних мастеров:
- Если на настенных покрытиях подразумевается повторяющийся узор, уточните у продавца размер его шага и разделите параметр высоты на эту цифру.
- Округлите полученное число и умножьте его на тот же размер шага изображения. Найденная в результате цифра будет являться длиной полосы, которую нужно отрезать от полотна.
- Вычислите разницу, которая уйдет в отход, отняв от длины обойной полосы высоту стены.
- Разделите общую длину рулона на длину полосы, которую вы нашли во 2-ом пункте, у вас получится коэффициент. На него умножьте разницу, найденную в пункте 3. Получите общую величину отходов и вычтите ее из общей длины.
Теперь разделите значение оклеиваемой площади на чистое от отходов число из пункта 4. Данный результат количества рулонов будет окончательным.
Связанные вопросы и ответы:
1. Вопрос: Сколько рулонов обоев нужно на комнату, длина которой составляет 14 метров
Ответ: Для определения количества рулонов обоев, необходимых на комнату длиной 14 метров, нужно знать ширину обоев. Ширина обоев обычно составляет 0,53 метра. Сначала необходимо поделить длину комнаты на ширину обоев: 14 метров / 0,53 метра = около 26,42. Округляем до ближайшего большего числа, так как рулоны обойного материала продаются целыми. Получаем, что для комнаты длиной 14 метров потребуется около 27 рулонов обоев.
2. Вопрос: Что делать, если ширина обоев отличается от стандартной 0,53 метра
Ответ: Если ширина обоев отличается от стандартной 0,53 метра, необходимо взять во внимание этот факт при расчете количества рулонов. Для этого следует поделить длину комнаты на ширину обоев, округлить полученное число до ближайшего большего целого и получить количество рулонов обоев, необходимых на комнату.
3. Вопрос: Есть ли необходимость учитывать двери и окна при расчете количества рулонов обоев
Ответ: При расчете количества рулонов обоев на комнату длиной 14 метров необходимо учитывать наличие дверей и окон. Количество рулонов обоев может быть больше, если требуется покрыть области около дверей и окон. Это связано с тем, что обои нужно обрезать и подгонять по размеру, чтобы они ровно легли на стены комнаты.
4. Вопрос: Какие еще факторы могут повлиять на количество рулонов обоев
Ответ: Количество рулонов обоев, необходимых на комнату длиной 14 метров, может быть изменено и другими факторами. Например, если выбраны обои с большим рисунком или повторяющимся узором, это может потребовать дополнительных рулонов для соответствия рисунку при склеивании. Также следует учесть высоту потолка комнаты при расчете необходимого количества рулонов, так как при большой высоте потребуется больше материала.
5. Вопрос: Сколько рулонов обоев нужно, если высота потолка комнаты также составляет 14 метров
Ответ: Если высота потолка комнаты также составляет 14 метров, то для расчета количества рулонов обоев необходимо учитывать не только длину комнаты, но и высоту потолка. В этом случае следует умножить площадь комнаты (14 метров длина * 14 метров высота) на коэффициент, соответствующий ширине обоев. Полученное число нужно разделить на длину рулона обоев, чтобы определить необходимое количество рулонов.
6. Вопрос: Можно ли использовать остатки обоев с прошлых работ для покрытия комнаты длиной 14 метров
Ответ: Возможно использовать остатки обоев с прошлых работ для покрытия комнаты длиной 14 метров, однако это зависит от количества оставшихся обоев и их состояния. Если у вас есть достаточное количество обоев, которые соответствуют требуемому рисунку и размеру, то можно использовать остатки, чтобы сэкономить на покупке новых рулонов. Однако следует учесть, что остатки обоев могут быть недостаточными или иметь дефекты, которые могут быть заметны на стенах, поэтому следует просмотреть и оценить их состояние перед использованием.
7. Вопрос: Как рассчитать количество клея для рулонов обоев на комнату длиной 14 метров
Ответ: Расчет количества клея для рулонов обоев на комнату длиной 14 метров зависит от инструкций производителя. Обычно на упаковке клея указано количество, необходимое для покрытия определенной площади. Для расчета количества клея следует умножить площадь комнаты (14 метров длина * стандартная высота потолка) на соответствующий коэффициент, указанный на упаковке клея. Суммируем полученные значения для всех рулонов обоев, чтобы определить необходимое количество клея.
Точный калькулятор обоев. Калькулятор обоев
Представляем вашему вниманию калькулятор обоев, с его помощью вы без труда рассчитаете нужное вам количество обоев для поклейки стен или потолков.
В калькуляторе для расчёта обоев можно рассчитать материал как для полностью комнаты так и для отдельной стены, двух стен, для потолка, или для комнаты с неправильной формой.
Под калькулятором есть подробная инструкция.
Калькулятор обоев онлайн
Инструкция по использованию калькулятора
В калькуляторе по расчёту количества обоев есть различные поля:
- Размеры помещения
- Запас на выравнивание
- Кнопка рассчитать
- Результаты расчётов
- Количество обоев
- Количество рулонов
Теперь о каждом пункте нашего онлайн калькулятора поподробнее
Размеры помещения
В этом разделе полей надо прописать размеры помещения. Замерьте ваше помещение и впишите их в эти поля.
Размер помещения не всегда бывает в целых метрах, практически всегда присутствуют ещё и сантиметры, например: 4 метра 37 сантиметров, чтобы записать правильно пишите так : 4.37 обязательно через точку, не через запятую.
Ширина помещения
В каждой комнате есть ширина и длина, в это поле надо записать ширину помещения.
Длина помещения
Тут записываем длину помещения
Периметр помещения
В это поле ничего писать не надо, периметр рассчитается автоматически. Периметр это сумма всех сторон комнаты, то есть ширина + ширина+ длина+ длина.
Высота потолков
Высота потолков это размер от пола до потолка.
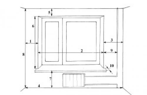
Двери окна
Количество дверей
Надо прописать количество дверей в комнате в штуках.
Высота двери
Высота дверного проёма в сантиметрах, миллиметры не писать, округляем.
Ширина двери
Ширина двери в сантиметрах.
Количество окон
Количество окон в штуках.
Высота окна
Высота окна в сантиметрах.
Ширина окна
Ширина окна в сантиметрах.
Параметры обоев
Длина рулона
Длина рулона в метрах, на обоях прописан метраж, его и записываем.
Ширина обоев
Ширина обоев, он так же прописан на обоях
Раппорт рисунка
Если обои с рисунком который надо подбирать при поклейке то в это поле надо прописать через сколько сантиметров повторяется рисунок, об этом тоже пишут на обоях.
Сдвинутый рисунок
Не всегда каждое новое полотно клеиться рисунок в рисунок, иногда рисунок смещён, если это так то ставим галочку.
Запас на выравнивание
Здесь надо выбрать запас на выравнивание полотна, не всегда стены идеально ровные, полы, потолки, лучше иметь запас. Из выпадающего списка выбираем нужные цифры.
Кнопка рассчитать
Кнопка запускает расчёт количества обоев в рулонах и метрах погонных.
Результаты расчётов
В эти поля ничего записывать не надо, в них выводятся результаты расчёта калькулятора автоматически.
Количество обоев
Результат расчёта количества обоев в метрах погонных.
Количество рулонов
Результат расчёта количества обоев в рулонах.
Как рассчитать количество обоев для одной стены , двух, потолка или для комнаты с неправильной формой
Если вы рассчитываете количество обоев на всю комнату 4 стены то всё делаете так как описано выше.
Рассчитываем обои на одну стену
Если надо рассчитать обои на одну стену то надо сделать следующее:
В разделе размеры помещения, в поле длина помещения ничего не пишем, в поле ширина помещения ничего не пишем, в поле периметр помещения пишем длину нашей стены, в поле высота потолков пишем высоту стены от пола до потолка, все остальные поля заполняем как обычно и делаем расчёт.
Рассчитываем обои на две, три, пять стен, или в комнате неправильной формы
В разделе размеры помещения, в поле длина помещения ничего не пишем, в поле ширина помещения ничего не пишем, в поле периметр помещения надо прописать сумму всех длин стен на которые надо оклеить обои, в поле высота потолков надо записать высоту стен, только одну высоту, все остальные поля заполняются как всегда, после жмем кнопочку рассчитать и получаем результат.
Не проходите мимо
Мы будем вам очень благодарны если вы в благодарность о нашей скромной работе поделитесь ей с друзьями в соц соцсетях, это нам очень помогает и вдохновляет создавать ещё больше полезностей для вас. Пишите свои комментарии, какие сервисы вам ещё нужны, может вам чем то неудобен калькулятор обоев или любой другой, мы хотим чтобы наш ресурс был полезен для людей, помогите нам сделать его таким.
Сколько рулонов обоев нужно на 20 кв. Сколько нужно рулонов обоев на оклейку стен в комнате, и как правильно рассчитать количество обоев по формуле
Оклейка стен обоями – самый популярный сегодня способ отделки. В пользу этого материала говорят такие важные преимущества, как доступная цена и простота в работе. Также не маловажно и то, что видов, рисунков, текстур обоев просто бесчисленное множество.
Они уместны в любом интерьере. Чаще всего стены оклеивают своими руками. Но, решившись на ремонт, в первую очередь необходимо узнать, сколько обоев нужно. Дело в том, что покрытие на весь объем нужно покупать сразу.
В случае их нехватки, может оказаться, что больше нет этого вида в продаже. И даже, если они окажутся в наличии, один и тоже материал из разных партий может незначительно отличаться по цвету, но на стенах даже небольшая разница будет заметна.
Сколько метров в рулоне обоев, и как, исходя из этого, рассчитать нужное количество?
Расчет обоев на комнату – задача не сложная, но имеет некоторые нюансы. Единого стандарта для материала нет, и в продаже можно встретить рулоны, имеющие и разную ширину и длину. Самый распространенный размер – это 0, 53 х10, 5м, но некоторые рулоны имеют длину 17, 25 и 33 метра. Ширина также может быть разной 53, 56, 75 и 106 см, есть даже полутораметровые рулоны, но встречаются они гораздо реже.
Перед тем, как рассчитать обои на комнату, необходимо узнать площадь отделываемой поверхности. Для этого периметр комнаты, с учетом всех ниш и выступов, умножаем на высоту потолков, и или высоту оклейки, если обои будут клеиться не на всю стену. Чтобы узнать площадь материала в одном рулоне, перемножаем длину на высоту.
Но иногда этот способ дает значительные погрешности. Это может произойти, если от каждого рулона после нарезки полос необходимой длины, остаются достаточно большие остатки, или если образуется много обрезков во время совмещения рисунка. Возникает вопрос: как посчитать обои с большей точностью, особенно, когда материал выбирается редкий или дорогой. Для этого необходимо воспользоваться более сложной формулой, которая учитывает и возможные обрезки при оклейке.
Универсальная формула расчета обоев для рулонов любого метража
Рассмотрим ситуацию, когда выбран материал с рисунком, требующим совмещения. В этом случае, почти всегда, от каждой полосы остаются обрезки. Чтобы их учесть, необходимо высчитать среднюю длину одного полотна с учетом отходов на совмещение рисунка. Для расчета нам понадобится узнать еще одну величину, кроме периметра и высоты комнаты – расстояние между повторяющимися рисунками на обоях, его называют рапорт.
Перед тем, как рассчитать сколько нужно обоев, вычисляем среднюю длину одной полосы.
- Для этого к высоте оклейки прибавляем 10 см на выравнивание и полученную высоту делим на размер рапорта.
- Результат округляем до целого числа в большую сторону – это будет необходимое количество рапортов на одной полосе.
- Умножив рапорт на полученное число, мы получаем размер полосы с учетом совмещения рисунка.
Теперь, чтобы узнать, как рассчитать сколько нужно обоев, необходимо вычислить количество полос.
- Для этого периметр комнаты делим на ширину рулона и округляем до целого числа в большую сторону.
- Это и есть количество полотен, которые понадобятся для оклейки. Зная длину и количество полос, можно приступать к такой задаче, как рассчитать количество рулонов обоев.
Чтобы расчет был максимально точным, вычислим, сколько полос получится из одного рулона, разделив его длину на высчитанную нами длину полосы. Далее общее количество полос необходимо разделить на полученный результат и опять округлить до целого. Это и будет необходимое нам количество рулонов. Например, если нам необходимо 35 полос длиною 3, 15 м, то десятиметровых рулонов понадобится 12, а семнадцатиметровых – 7.
Расписанная формула только кажется запутанной и сложной, но с ее применением вы гарантированно купите именно столько материала, сколько понадобится для ремонта комнаты.