Все о ремонте

Как правильно сделать ремонт дома или квартиры. Всё что необходимо знать о ремонте, а также море полезной информации.

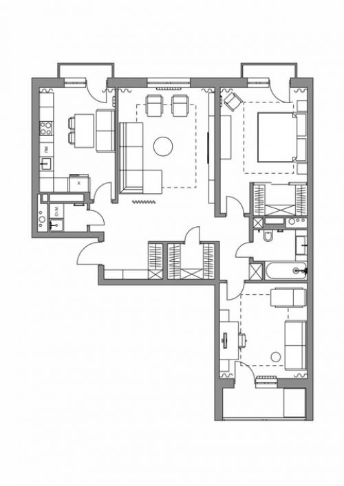
Элегантная трехкомнатная квартира с продуманным хранением.

09.09.2024 в 15:56

Изначально в квартире была свободная планировка.
В ходе разработки дизайн - проекта решили не возводить стену между гостиной и коридором. Входную зону, коридор и зону гостиной объединили в общее пространство, сохранив между ними визуальное разделение. Соединение комнат сделало главное помещение квартиры просторным, добавило дневного света в пространство, а также помогло избежать длинного, темного и узкого коридора.

Элегантная трехкомнатная квартира с продуманным хранением.
Метраж: 97 кв. м. комнат: 3.

Элегантная трехкомнатная квартира с продуманным хранением. 01
Элегантная трехкомнатная квартира с продуманным хранением. 02
Элегантная трехкомнатная квартира с продуманным хранением. 03
Элегантная трехкомнатная квартира с продуманным хранением. 04
Элегантная трехкомнатная квартира с продуманным хранением. 05
Элегантная трехкомнатная квартира с продуманным хранением. 06
Элегантная трехкомнатная квартира с продуманным хранением. 07
Элегантная трехкомнатная квартира с продуманным хранением. 08
Элегантная трехкомнатная квартира с продуманным хранением. 09