Все о ремонте

Как правильно сделать ремонт дома или квартиры. Всё что необходимо знать о ремонте, а также море полезной информации.

Наша первая квартира.

30.04.2022 в 15:56

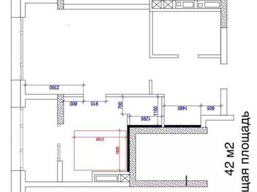
1, 5. Комнатная - евродвушка. Площадь 42 м 2 - спальня с гардеробом отдельно + кухня - гостиная. Потолки 3 метра. Ремонт под себя делался
Наша первая квартира..

Наша первая квартира. 01
Наша первая квартира. 02
Наша первая квартира. 03
Наша первая квартира. 04
Наша первая квартира. 05
Наша первая квартира. 06
Наша первая квартира. 07
Наша первая квартира. 08

Категории: ремонт комнаты