Все о ремонте

Как правильно сделать ремонт дома или квартиры. Всё что необходимо знать о ремонте, а также море полезной информации.

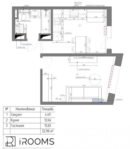
"Однокомнатная квартира под сдачу!

30.01.2024 в 00:30

С таким запросом обратились к нам наши клиенты.
Кухня - 12, 6 кв. м.
Но даже на такой небольшой площади, нашему дизайнеру удалось разместить здесь функциональную угловую кухню, просторную обеденную зону и даже для дивана место нашлось.
Однокомнатная квартира под сдачу!
В карусели есть еще комната - 15, 8 кв. м и план квартиры, листайте! Автор проекта: студия Irooms идеи для дома.

Однокомнатная квартира под сдачу! 01
Однокомнатная квартира под сдачу! 02
Однокомнатная квартира под сдачу! 03
Однокомнатная квартира под сдачу! 04
Однокомнатная квартира под сдачу! 05
Однокомнатная квартира под сдачу! 06
Однокомнатная квартира под сдачу! 07
Однокомнатная квартира под сдачу! 08
Однокомнатная квартира под сдачу! 09