Все о ремонте

Как правильно сделать ремонт дома или квартиры. Всё что необходимо знать о ремонте, а также море полезной информации.

Продуманный интерьер с функциональными решениями.

24.11.2023 в 08:55

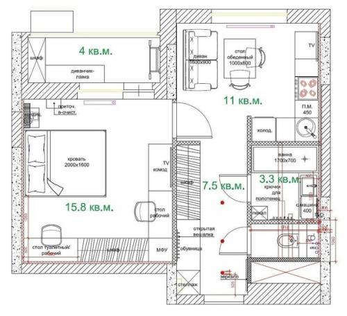
"Не стали в жилой комнате пытаться выделить спальню и гостиную.
Поэтому в комнате - спальня, а в кухне есть небольшой диван для посиделок. Конечно, можно было присоединить лоджию и поиметь проблемы с согласованием, но и этого не стали делать
Продуманный интерьер с функциональными решениями..

Продуманный интерьер с функциональными решениями. 01
Продуманный интерьер с функциональными решениями. 02
Продуманный интерьер с функциональными решениями. 03
Продуманный интерьер с функциональными решениями. 04
Продуманный интерьер с функциональными решениями. 05
Продуманный интерьер с функциональными решениями. 06
Продуманный интерьер с функциональными решениями. 07

Категории: ремонт комнаты