Все о ремонте

Как правильно сделать ремонт дома или квартиры. Всё что необходимо знать о ремонте, а также море полезной информации.

Просторный солидный коттедж.

07.10.2020 в 15:31

Первый этаж:
Тамбур.
Холл.
Санузел.
Гостиная.
Кухня.
Столовая.
Котельная.

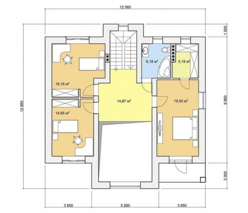
Второй этаж: три спальни гардероб санузел
Просторный солидный коттедж..

Просторный солидный коттедж. 01
Просторный солидный коттедж. 02
Просторный солидный коттедж. 03