Вытянутая квартира в СТАЛИНКЕ.
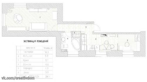
Эта квартира в центре Москвы имеет очень необычную и довольно неудачную планировку. Можно сказать, что в две стороны от входа здесь расходятся вытянутые крылья, одно из которых было поделено на крохотные комнатушки. При общей площади всего 38, 8 м? Здесь было три комнаты и большая угловая прихожая
. Но есть и положительные стороны архитектуры этой квартиры: здесь нетипично для старых московских домов много окон - в гостиной окна есть по двум стенам, и что уж совсем неожиданно - окно есть даже в ванной.

Чтобы адаптировать квартиру под нового хозяина и его нужды, а также максимально увеличить ее площадь, дизайнер Ксения Бобрикова убрала все лишние стены, которые здесь разрешалось снести.

В крыле более правильной формы была обустроена гостиная - спальня с удобным местом для чтения и отдыха под одним из окон - обратите внимание на чудо - кресло со столиком.

Из-за ригелей здесь разнится высота потолков. Этот недостаток был обыгран при помощи разнообразия светильников - потолки теперь выглядят нарочно зонирующими пространство.

Гостиная выходит в прихожую с интересной самодельной вешалкой из перфорированной панели и перемещающихся крючочков. Большое зеркало в прихожей позволяет увидеть себя в полный рост и увеличивает это небольшое пространство.

На месте бывшей части прихожей оборудована кухня. Проход между ней и прихожей свободным оставлен. Обратите внимание на идею с бортиком вместо кухонного фартука.

Столешница кухонного гарнитура плавно переходит в удобный подоконник, под которым размещается обеденная зона. Чтобы оставить здесь больше рабочего места, дизайнер и хозяин выбрали двухконфорочную варочную поверхность. Горчичные стулья являются, пожалуй, самым ярким акцентом в светлой бело - серо - бежево - коричневой гамме квартиры.

В самом конце этого крыла разместился рабочий уголок. Он от кухни и столовой решеткой из металлических реек отделен. В его торцевой стене стоит зеркальный шкаф; с одной стороны, он делает эту комнату еще более длинной, с другой - еще более светлой.

Ванная на прежнем месте осталась. Но за счет компактных подвесных сантехники и мебели здесь теперь больше места и легче убираться.
Смотрите еще и подписывайтесь! Жми?