Все о ремонте

Как правильно сделать ремонт дома или квартиры. Всё что необходимо знать о ремонте, а также море полезной информации.

Дизайн - проект 2 к кв.

16.04.2022 в 10:55

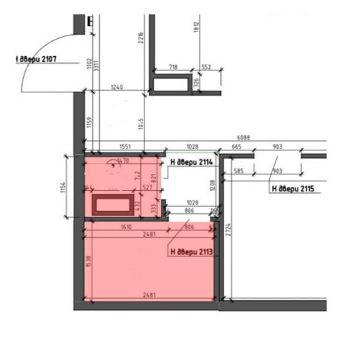
ЖК "Черная Речка" (S общая = 51, 9 м 2 S душевой = 6, 15 м 2) первоначально в квартире было два раздельных санузла 3, 8 и 1, 3 м 2.

Помещения небольшие, а лишние перегородки отнимали ценные метры и, главное - возможность сделать их функциональными.
Дизайн - проект 2 к кв.
Санузлы объединили и добавили часть прихожей. В результате получили более эргономичное пространство - целых 6, 15 м 2. на полученных метрах разместили несколько зон хранения, постирочную со стиральной и сушильной машинами, просторную душевую и большое зеркало.

Дизайн - проект 2 к кв. 01
Дизайн - проект 2 к кв. 02
Дизайн - проект 2 к кв. 03
Дизайн - проект 2 к кв. 04

Категории: дизайн спальни