Проект коттеджа в стиле хайтек с плоской кровлей S3-133-3.
Проектом представляется комфортабельный двухэтажный коттедж, который прекрасно сочетает в себе стильный современный дизайн, рациональную планировку и отличные эксплуатационные показатели. Одноэтажный блок, в котором размещён гараж и вспомогательные помещения, пристроен к основному объёму дома с левой стороны. На его плоской кровле обустроена удобная для проведения досуга на открытом воздухе терраса.
Первый этаж помещает в себе дневной комплекс особняка. Просторная гостиная и кухня - столовая образуют общее открытое пространство, которое даст возможность владельцам с удобством принимать гостей. В гостиной предусмотрен камин и выход на террасу, которая расположена со стороны сада. Так же на первом этаже имеется компактный санузел и котельная, которая может параллельно использоваться для установки прачечного оборудования.
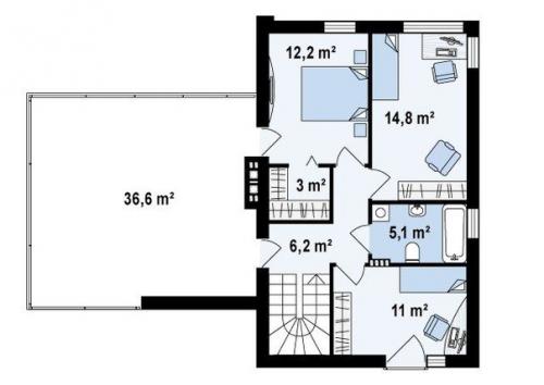
На втором этаже обустроена ночная территория коттеджа. Для полноценного и спокойного отдыха всех членов семьи проект предусматривает устройство трёх ванных комнат. Из двух спален имеется выход на террасу, находящуюся на крыше гаража. Одна из спален, располагает отдельной гардеробной. На этаже размещена ванная с окном. Проектдома@Stroudomsam.


