Гост для деревянных лестниц в частном доме.
Чтобы деревянные лестницы были максимально удобными и безопасными, они должны соответствовать определённым требованиям. Конкретный угол наклона конструкции, рекомендованная высота проёма, оптимальная ширина ступенек и т. д. - эти и многие другие требования отражены в гост - государственных стандартах РФ.
Все элементы лестницы должны строго соответствовать правилам госта.
Перечень нормативных документов.
Проектирование и производство лестниц регламентируется множеством нормативных актов. Каждый из документов отвечает лишь за определённый тип лестничных изделий. Например, одни устанавливают требования к маршевым конструкциям, другие отвечают за приставные лестницы и т. д.
Нормы приставных лестниц менее требовательны, нежели у маршевых.
Чтобы деревянные изделия соответствовали необходимым требованиям, стоит учитывать следующие стандарты:
Гост 23120-78 - требования к маршевым изделиям;.
Гост 25772-83 - содержит информацию об ограждениях лестничных конструкций;.
Гост 24258-88 - средства подмащивания;.
Гост 8556-72 - технические условия для переносных пожарных конструкций.
Гост 23120-78.
Гост 23120-78 для маршевых лестниц.
Также стоит ознакомиться со следующими документами:
Гост 21. 101-97 - Перечень требований к проектной и рабочей документации;.
Гост Р 53254-2009 - технические условия, применяемые к наружным изделиям.
Р 53254-2009.
Р 53254-2009 для приставных лестниц.
Требования к материалу.
Дерево - наиболее податливый материал. Изготовление деревянных лестниц не требует особых навыков или специфического оборудования. Однако надёжность и долговечность изделия во многом зависит от используемого материала.
Маршевая лестница на второй этаж экзотический вид имеет.
К дереву применяются следующие требования:
Для производства ступеней используют твёрдые или хвойные породы дерева (например, ясень, лиственницу, сосну, бук, дуб и т. д. );.
Максимальная влажность материала - 15%;.
Максимальный косослой - 7%;.
На тетивах должны отсутствовать: распиленные сучки, открытые "Карманы" со смолой, завитки с выемками, а также трещины в пазах для ступеней;.
Заделывать трещины или другие дефекты запрещено;.
Разметка деталей.
Перед вырезкой материалов для лестницы, проверяйте их на прочность.
Разрешается изготавливать несущие балки из нескольких деталей (прочность составного изделия должна уступать цельной конструкции);.
Чтобы достичь гладкой формы элементов конструкции, необходимо использовать ручную или машинную обработку;.
Детали конструкции следует подвергать горячей пропитке натуральной олифы, после чего покрывать их бесцветными лаками;.
Наносить краску запрещено.
Материал для ступеней.
Неприемлемое количество сучков в материале.
Разрешено использование деревянных элементов с твёрдосросшимися несквозными сучками. Требования зависят от ширины самого сучка:
Менее 0, 5 см - до двух штук на 0, 5 м длины детали;.
Менее 1, 5 см - 1 отросток на 1 м;.
Менее 2 см - максимум 1 сучок.
Маршевые конструкции.
Деревянные маршевые лестницы самые распространённые. Высокую популярность можно объяснить тремя факторами:
Надёжностью конструкции;.
Высокой грузоподъёмностью;.
Удобством использования.
Иногда, для прочности лестницы делают металлический каркас, после чего облицовывают деревянными элементами.
Иногда, для прочности лестницы делают металлический каркас, после чего облицовывают деревянными элементами.
Эти и другие факторы государственным стандартом регламентируются 23120-78.
Проектирование.
Составлению чертежа следует уделять особое внимание. Именно на этапе проектирования становится понятно, как будет выглядеть лестница и насколько удобной она будет для использования. Исходя из этих параметров, необходимо учитывать следующие моменты:
Частоту использования лестницы;.
Ширину пролёта;.
Наличие дополнительных перил (например, для детей);.
Максимальную грузоподъёмность;.
Глубину и высоту ступенек.
Наиболее важный параметр - это размеры ступеней. Так как длина шага взрослого человека варьируется от 60 до 64 см, соотношение глубины и высоты ступенек должно соответствовать этому значению.
Для расчёта оптимального значения, используют несколько формул (чем ближе итоговое значение к среднему, тем лучше: a - высота подступенка (вертикальной части ступеньки); b - глубина проступи (горизонтальной части:
Формула длины шага: 2a b = 60-64 см (основная формула);.
"Формула Безопасности": a b = 43-47 см (оптимальный вариант - 46 см);.
"Формула Удобной Конструкции": a - b = 12 см (идеальный вариант.
Расчет маршевой лестницы.
Размеры маршевой лестницы.
Вкратце о самом чертеже:
Его следует выполнять в трёх проекциях (с видом сверху, сбоку и спереди);.
На верхней проекции рекомендуется начертить план помещения, где будет установлена лестница;.
Необходимо указать направление движения (с первого этажа на второй);.
Деревянные элементы на чертеже отмечаются завитушками, металлические - диагональными линиями.
Проектирование маршевой лестницы.
Особенности конструкции.
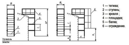
Согласно гост 23120-78, к лестничным конструкциям применяются следующие требования:
Рекомендуемый угол наклона - 30-35\xB0, допустимый - 45\xB0;.
Угол наклона лестниц.
Базовые параметры угла наклона лестниц.
Минимальная ширина лестничной площадки - 80 см (оптимальный вариант - если она будет совпадать с шириной ступенек);.
Минимальная ширина проёма - 80 см, рекомендуемая - 90-110 см;.
Максимальное число ступеней в лестничном марше - 17 шт.;.
Все ступеньки должны быть одинакового размера (исключение - начальная ступень);.
Оптимальная высота подступенка - 12-22 см (максимальная погрешность - 0, 5 см);.
Глубина проступи - 25-32 см;.
Выступ ступени не должен превышать 0, 3 см;.
Максимальное количество забежных ступеней для лестницы с поворотом в 90 о - 3 шт.;.
Глубина узкой части забежной ступени не должна быть уже 10 см, широкой - не более 40 см;.
Лестницы, имеющие более 3-х ступеней, должны оборудоваться перилами высотой не менее 90 см;.
Максимальное расстояние между балясинами (столбиками перил) - 15 см;.
Для детей необходимо установить дополнительные поручни, которые располагаются под основными либо на стене;.
Рекомендуемая высота проёма (расстояние от лестницы до потолка) - 200 см;.
Минимальное расстояние от двери до первой ступени - 100 см.
Расстояние между дверью и лестницей.
Расстояние между дверью и лестницей.
Переносные изделия.
Несмотря на то, что приставные изделия более просты в устройстве, к ним также применяется множество строгих требований. Для большей наглядности, все нормативы можно разделить на несколько категорий.
Приставная лестница.
Приставная лестница обязательно в домашнем хозяйстве пригодится.
Особенности конструкции.
Устройство лестницы напрямую влияет на удобство и надёжность изделия. Поэтому к ней применяются следующие требования:
Ступени должны фиксироваться в соответствующих пазах несущих балок;.
Соединение ступеней и тетивы происходит с помощью влагостойкого клея;.
По завершении сборки, ступеньки должны прочно держаться в углублениях несущих балок;.
Крепление ступеней лестницы.
Иногда ступени лестницы крепятся шурупами.
На каждые 2 метра конструкции должна проводиться стяжка металлическими прутами диаметром от 8 мм;.
Использование лестниц без врезных ступеней запрещено;.
Деревянные детали следует соединять саморезами;.
Оптимальное расстояние между ступеньками - 30-34 см;.
Промежуток между ступеньками у трёхколенных раздвижных изделий - 35 см;.
Максимальное расстояние от пола до первой ступени - 40 см;.
Для большей устойчивости, конструкция должна иметь трапециевидную форму - быть широкой внизу и сужаться кверху;.
Минимальная ширина нижней части конструкции - 40 см, верхней - 30 см;.
Максимальная высота изделия - 5 м;.
Конструкция, высотой более 3 м, должна оборудоваться как минимум двумя стяжными болтами (снизу и сверху изделия.
Монтаж приставных изделий.
Установка переносной лестничной конструкции должна соответствовать следующим требованиям:
На ножки изделия надеваются специальные накладки (для большей устойчивости);.
Накладки для лестницы.
Противоскользящие накладки на ножках лестница.
При монтаже конструкции на грунтовой поверхности, снизу необходимо установить острые металлические оковки;.
В том случае, если лестница используется на гладких поверхностях (например, на плитке, бетоне или паркете), ножки должны оборудоваться противоскользящими резиновыми накладками;.
Верхние концы лестничной конструкции, приставляемые к трубам, должны крепиться к ним металлическими крюками;.
Насадки крюки для лестницы.
Насадки в виде крюков на верхушке лестницы крепятся.
Лестница не должна устанавливаться на бочки, ящики и другие предметы для увеличения высоты изделия;.
Максимальный угол наклона без дополнительного крепления - 75 о;.
Во избежание расхождения, нижние части стремянок необходимо скрепить цепями, крюками или другими фиксаторами.
Проведение испытаний.
Со временем прочность конструкции снижается. Чтобы предотвратить поломку, необходимо 2 раза в год проводить проверку качества - осмотр изделия с оценкой состояния древесины и качества покрытия.
Починка лестница.
Починка приставной лестницы не составит большого труда.
Конструкция должна отвечать следующим требованиям:
Отсутствие трещин на ступеньках и несущих балках длиннее 10 см и глубже 0, 5 см, при этом запрещается дополнительное склеивание, заделывание шпатлёвкой и другие способы устранения трещин;.
Отсутствие люфтов или ослабления соединений; части раскладных изделий должны плавно раздвигаться и надёжно фиксироваться в установленном положении; отсутствие люфтов у накладок; каждая ступенька на протяжении 2 минут должна выдерживать груз 200 кгс; середина тетивы выдерживает груз сначала 100 кгс, а затем 200 кгс (продолжительность каждого теста - 2 минуты); отсутствие трещин или иных повреждений после проведения диагностики (при наличии дефектов - устранить и провести испытание заново. Материалы для лестницы для прочности приставных лестниц следует выбирать качественные материалы.







