Как сделать шкаф - купе своими руками?
Очень просто! Давайте разберёмся, из чего состоит шкаф - купе.
Корпус шкафа: ЛДСП (ламинированная древесно стружечная плита) кромка (для обрамления торцов ЛДСП.
Двери шкафа: алюминиевая система (Каракас двери, направляющие, ролики) вставки в дверь.
Фурнитура: крепёж, полкодержатели, штанга, корзины и т. д.
С чего начать? Всё по - порядку.

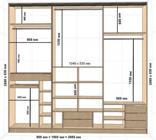
1. мы продумываем чертёж шкафа - габариты шкафа - купе, сколько секций в шкафу, количество полок, нужны корзины или ящики, где будет штанга для одежды и т. д. определится с видом и функционалом шкафа помогут бескрайние просторы интернета, т. к. вариантов шкафов - купе там бесчисленное множество.

2. рисуем наш чертёж на бумаге с размерами. До окончательного вида он скорее всего не одно редактирование пройдёт.

3. выбираем цвет ЛДСП в рубрике "Декоры ЛДСП".

4. делаем деталировку ЛДСП - список деталей корпуса шкафа с размерами (в мм) и указанием количества деталей ЛДСП. Для этого необходим простой калькулятор и знание толщины ЛДСП - 16 мм. Кстати, не помешает и знать формат листа ЛДСП: 2750 х 1830 мм.

Теперь необходимо решить какие двери будут в нашем шкафу. Это очень важный момент, так как двери являются "Лицом" шкафа - купе.

5. выбираем цвет алюминиевого профиля для шкафа - купе.

6. выбираем вставку в двери - купе.

8. фурнитура. Затем исходя из нашего чертежа составляем список необходимой фурнитуры для шкафа. Что необходимо, чтобы собрать шкаф - купе: крепёж (евровинты, мебельные уголки, саморезы), штанга для одежды, направляющие для выкатных ящиков, сетчатые корзины для белья, светильники на козырёк (по желанию.
9. для сборки шкафа - купе вам потребуется набор простых инструментов: шуруповёрт (или дрель), свёрла диаметром 5 и 7 мм, отвёртка, шестигранник 4 и 5 мм, знание элементарной арифметики и навыки работы с этим инструментом. Ну и конечно желание мебель своими руками сделать.