Сколько обоев надо на комнату 12 метров квадратных. Сколько обоев нужно на комнату
- Сколько обоев надо на комнату 12 метров квадратных. Сколько обоев нужно на комнату
- Сколько нужно рулонов обоев на комнату 18 кв м. Зачем мерять
- Сколько рулонов обоев нужно на 20 кв. Рассчитаем рулоны обоев
- Сколько рулонов обоев нужно на 9 кв. Параметры выбранных обоев
- Точный калькулятор обоев. Калькулятор обоев
- Сколько рулонов обоев надо на комнату 12 кв м. Расчет обоев по площади комнаты и периметру. Простая и понятная таблица.
Сколько обоев надо на комнату 12 метров квадратных. Сколько обоев нужно на комнату
Нередко, приходя в магазин обоев, покупатели уже довольно подкованы в вопросах качества обоев и цены за рулон. Они знают какие обои и каких производителей лучше покупать и клеить на стены. Долго продумывают дизайн и структуру, которая им необходима для завершенного образа комнаты или квартиры в целом. Знают даже где купить обои. Но одно «но» может прервать намеченные планы покупки обоев для стен. Это обстоятельство возникает при выяснении вопроса о количестве рулонов, которые нужны для поклейки стен обоями. В данной статье мы попробуем максимально наглядно показать сколько рулонов обоев надо, чтобы поклеить комнату.
Чтобы ответить на вопрос темы, мы сначала определим параметры самой комнаты. А именно, давайте научимся рассчитывать площадь любой комнаты. Для этого нам необходима рулетка или, на крайний случай, сантиметровая лента, которой часто пользуются люди понимающие толк в швейном мастерстве. Приступаем.
Необходимо снять две мерки – длину и ширину комнаты. После этого остаётся только перемножить длину на ширину, воспользовавшись калькулятором.
На рисунке ниже приведена схема расчёта площади комнаты.
Итак, после того как площадь комнаты посчитана, нам необходимо измерить высоту потолков. Пользуемся аналогичными инструментами, я имею в виду рулетку или сантиметровую ленту и получаем значение.
Вот теперь самое главное. Определяем количество рулонов, необходимое нам для поклейки комнаты. Как рассчитать обои нам помогут нехитрые таблицы, которые отличаются только шириной обойного рулона 53, 70 и 106 сантиметров.
Обратите внимание, что расчет сделан на среднестатистическую комнату, в которой имеются одни двери и одно окно.
Также отметим, что сколько рулонов обоев надо будет зависеть от того, нужен ли подбор рисунка. Если обои нуждаются в подгонке рисунка, то на каждые 6 рулонов обоев нужно закладываться еще на один рулон.
Пример расчета:
Допустим мы имеем высоту потолка нашей комнаты 2,35 метра (2 метра 35 сантиметров), а площадь комнаты 16,4 квадратных метра. Округляя площадь до величины, которая есть в нашей таблице мы получаем расчет для площади 18. Далее определяем ширину рулона, которую мы хотим покупать.
Для ширины рулона 53 сантиметра – надо 9 рулонов (т.е. смотрим для высоты потолка 2,5 метра по первой таблице для площади 18).
Соответственно для ширины рулона 70 сантиметров получаем 6 рулонов обоев, а для метровых обоев имеем значение 5. Вот и вся математика.
Сколько нужно рулонов обоев на комнату 18 кв м. Зачем мерять

На фото — недешёвые отделочные материалы, которые станут более доступными, благодаря правильным замерам
Вопросы наподобие, сколько обоев надо на комнату 14 метров не напрасны, так как отделочные материалы стоят недёшево и их перерасход нежелателен.
Часто, запланировав косметический ремонт в помещении площадью около 20 метров, мы отправляемся в магазин, имея весьма смутные представления о том, что и в каком количестве нам нужно.
Придя в магазин, мы в первую очередь обращаем внимание на расцветку и фактуру материалов. Далее нас интересует цена, и только после этого мы задаемся вопросом, из чего сделаны те покрытия, которые нам нравятся.
Каково же наше удивление, когда мы узнаем, что помимо всех ранее перечисленных отличий, обойные рулоны могут быть разной ширины и длины. Тут же в магазине начинается лихорадочный подсчёт количества погонных метров. В результате вы закупаете материала больше или меньше, чем это нужно.
Если рулонов больше чем надо, это не беда, так как не распакованные излишки можно вернуть продавцу или оставить для проведения последующих ремонтов. Немного хуже если посчитано меньшее количество материалов.
Если отделочного материала будет недостаточно, вам придется отправиться за дополнительным рулоном. Здесь вас может подстерегать существенная неприятность — нужные обои будут, но из другой партии. Казалось бы тот же цвет и та же фактура, но на тон темнее!
Вероятнее всего вы обнаружите разницу уже после поклейки, и исправлять ошибки будет непросто. Ну и наконец, знать, как много обоев потребуется, необходимо затем, чтобы приобрести достаточное количество клея. На упаковке клея указана дозировка из расчета на квадратный метр поверхности или на количество стандартных упаковок.
Чем мерять

Тщательно проводим замеры, чтобы знать, сколько стоит поклеить обои в комнате
Сделать своими руками косметический ремонт в комнате без перерасхода материалов вполне возможно, главное правильно посчитать размеры отделываемой поверхности и купить требуемое количество обоев.
Что потребуется для проведения замеров? Понадобится рулетка не менее 5 метров, карандаш и лист бумаги.
Как мерять

Схема расположения полос для подсчёта материалов
Пожалуй, расскажем о самом простом способе вычислений, который чаще всего применяется обычным человеком, запланировавшим косметический ремонт в квартире.
- Сначала замеряем длину всех стен по периметру помещения.
- Затем определяем высоту стен от потолка до пола без багетов и плинтусов.
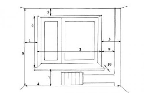
- Далее определяем ширину и высоту оконных и дверных проемов уровня стен ;
- Определяем расстояние от верхней части дверных и оконных проемов до потолка и от нижней части подоконника до пола.
- Теперь проводим подсчеты согласно полученным замерам . Периметр помещения делим на ширину рулона тех обоев, которые предполагается использовать. В результате этих подсчётов мы можем узнать о том, как много потребуется полос.
- Далее нужно поделить длину рулона на высоту стен и в итоге мы узнаем, число кусков, которые можно нарезать с каждой упаковки обоев (как правило, стандартный при высоте стен в 2,5 м можно нарезать на четыре куска).
- Теперь, зная, число кусков в рулоне, считаем, сколько необходимо полос и, следовательно, сколько нужно рулонов . В итоге, мы вычислим, сколько потребуется рулонов с учётом цельной полосы.
- Аналогичным образом считаем, как много потребуется неполных полос . В итоге складываем количество неполных полос и рассчитываем, сколько потребуется на это рулонов.
Сколько рулонов обоев нужно на 20 кв. Рассчитаем рулоны обоев
Нам придется воспользоваться школьными знаниями математики, которые помогут не запутаться в цифрах, однако предварительно определите основные параметры:
- Периметр выбранной для отделки комнаты . Для этого требуется сложить длины всех стен и разделить полученную цифру на 0,53 м или на 1,06 м. Также следует поступать и при использовании нестандартной ширины отделочного материала. Это нам позволит узнать количество полос.

Работа со стандартным узким рулоном (0,53 м)
- Ширина и длина рулона . Стандартной считается ширина 53 см и 106 см, остальные нестандартные. При этом длина в первом случае может быть 10,05, 12 или 15 м, во втором – до 25 м. Если у вас потолки в квартире 2,4-2,5 м, значит, узкого хватит на 4 полосы.
Для лучшего понимание приведем пример, как узнать сколько нужно обоев на комнату, где:
- общая длина стен составит – 5 и 6 м;
- потолки – высотой 2,5 м.

Клеим «метровые» (1,06 м) полотна
Расчет:
- Ширина 53 см:
5*2+6*2=22 м (общий периметр комнаты);
22:0,53≈42 (полосы);
42:4≈11 (рул.).
- Ширина 106 см:
22:1,06≈21 (полоса);
Так как в рулоне длиной 25 м будет 10 полос, значит, в нашем случае понадобится 2 рул. Последнюю полосу придется состыковать внизу, чтобы не докупать новый.
На самом деле, данный подсчет будет несколько приблизительным. Итак, зная основные параметры, сколько нужно обоев на комнату 12 метров по периметру определить уже несложно, а именно: 12:0,53:4≈6 штук.

Расчет материала при высоте стен 3 м
Общая формула расчета
Из сказанного выше можно с легкостью составить общую формулу для данных действий: P:L:3 (с подгонкой рисунка) или 4 (без подгонки изображения), где P – периметр комнаты, L – ширина рулона обоев.
Совет: полученный результат следует всегда округлять в большую сторону.
Теперь настал черед поговорить о пространстве под окном и над дверным проемом, так как на данных участках приходиться использовать не целую полоску обоев. Один из вариантов – воспользоваться остатками от подгонки рисунка. Тем самым вы сможете сильно сэкономить на ремонтных работах.
Совет: для определения, сколько нужно обоев на комнату 20 метров по площади с длиной стен 5 и 4 м, нужно: (5*2+4*2):1,06:10≈1 (рул).

Расчет площади стен
Если вы любитель точных цифр, сделайте следующее:
- определите по формуле количество рулонов, не учитывая пространство над дверью и под окном;
- добавьте к ним необходимое количество для этих участков.
В этом случае результат окажется максимально полным.
Давайте определим, сколько нужно обоев на комнату 16 метров и 17 метров с подгонкой рисунка:
- 16:0,53:3=10 рул.;
- 17:0,53:3=11 рул.
Рекомендации профессионалов
Ниже будет предложена инструкция подсчета количества обоев для экономных домашних мастеров:
- Если на настенных покрытиях подразумевается повторяющийся узор, уточните у продавца размер его шага и разделите параметр высоты на эту цифру.
- Округлите полученное число и умножьте его на тот же размер шага изображения. Найденная в результате цифра будет являться длиной полосы, которую нужно отрезать от полотна.
- Вычислите разницу, которая уйдет в отход, отняв от длины обойной полосы высоту стены.
- Разделите общую длину рулона на длину полосы, которую вы нашли во 2-ом пункте, у вас получится коэффициент. На него умножьте разницу, найденную в пункте 3. Получите общую величину отходов и вычтите ее из общей длины.
Теперь разделите значение оклеиваемой площади на чистое от отходов число из пункта 4. Данный результат количества рулонов будет окончательным.
Сколько рулонов обоев нужно на 9 кв. Параметры выбранных обоев
Современные обои поражают свои разнообразием. Они различаются по материалу изготовления основы и лицевого слоя – бывают бумажными, флизелиновыми, виниловыми, на базе стеклохолста, изготовленными из натуральных природных материалов (бамбука, пробки), или их текстиля. В широчайшем ассортименте представлено и внешнее их оформление. Но в контексте настоящей статьи нас в большей части интересуют лишь размерные параметры и тип нанесенного рисунка. Начнем с размеров.
Стандартные размеры рулонов обоев
Для начала необходимо правильно проставить линейные размеры приглянувшихся обоев. Они должны соответствовать существующим стандартам (с минимальной погрешностью) – эти параметры обычно указываются на товарных ярлыках на каждом рулоне.

Рулоны обоев могут различаться длиной и шириной – это требует внимания при выборе материала
- Сразу заметно, что в калькуляторе по умолчанию установлены обои, рулон которых имеет размеры 53 × 1005 см или 0,53 × 10,05 м (обратите внимание: длина не 10 с половиной метров, а именно 10 метров + 5 сантиметров – это очень часто допускаемая ошибка при проведении расчетов).
Действительно, этот стандарт является наиболее распространенным. Считается, что именно с такими узкими полотнами удобнее всего работать начинающим отделочникам. В этом размерном ряду можно отыскать любой тип отделки.
виниловые обои
- Следующим по разнообразию представленных вариантов можно назвать стандарт 106 × 1005 см. По сути, это те же обои, но увеличенные вдвое по своей ширине. Понятно, что оклеивание стены в таком случае осуществляется быстрее, но для работы с широкими полотнами уже потребуется больше практических навыков. Впрочем, многие мастера утверждают, что им легче выполнять отделку именно с таким, широким стандартом.
- Достаточно часто встречаются импортные обои шириной 74 см. Длина рулона в этом случае составляет обычно 10 м.
- Обои с шириной 60 см, 120 см, 150 см встречаются очень нечасто, но все же такие стандарты существуют, поэтому в калькуляторе им тоже уделено внимание.
- Кроме того, обои могут различаться толщиной полотна – от супер-толстых с виниловым рельефным рисунком до тонких флизелиновых или стеклотканевых – под покраску. Соответственно, не исключается варьирование и по длине рулона, с сохранением стандартной его ширины. Так, в продаже можно встретить, помимо упомянутых 10,05 м, рулоны длиной 5, 8, 12, 15, 18, 20 и 25 метров. Это разнообразие также предусмотрено в калькуляторе.
Точный калькулятор обоев. Калькулятор обоев

Поклейка обоев — задача для опытного мастера нетрудная. И из личного опыта могу утверждать, что основной проблемой, с которой приходилось чаще всего сталкиваться — нехватка полосы или целого рулона. Заказчик не правильно посчитал, и приходиться докупать и тратить время. Чтобы минимизировать все риски и упростить процесс расчета, рекомендуется воспользоваться представленным ниже калькулятором обоев. Его использование не должно вызвать затруднений. А если что-то будет непонятно — изучите подробную инструкцию и ознакомьтесь с примером расчета.
Онлайн калькулятор обоев
Как пользоваться калькулятором обоев
Чтобы произвести корректный расчет количества обоев для конкретного помещения, необходимо ввести верные исходные данные. Рассмотрим каждый пункт:
- Ширина помещения.
- Длина помещения.
- Периметр помещения. Данный параметр рассчитывается автоматически на основе длины и ширины. Он нужен для определения общей площади всех стен с учетом их высоты.
- Высота потолков — расстояние от пола до потолка.
- Количество дверей в комнате. Если дверей нет — пункты 5, 6, 7 не задаются.
- Высота двери. Если дверей несколько и они имеют различные размеры — укажите наименьшую высоту.
- Ширина двери. Если дверей несколько и они имеют различные размеры — укажите наименьшую ширину.
- Количество окон в комнате. Если окон нет — пункты 8, 9, 10 не задаются.
- Высота окна. Если окон несколько и они имеют различные размеры — укажите наименьшую высоту.
- Ширина окна. Если окон несколько и они имеют различные размеры — укажите наименьшую ширину.
- Длина рулона. Стандартный размер — 10,05 м. Бывают и 25 метровые виниловые обои на флизелиновой основе. Внимательно изучите упаковку — данный параметр там указан.
- Ширина обоев. Стандартные размеры — 53 см и 106 см. Они также указываются на упаковке рулона.
- Раппорт рисунка — высота рисунка ( →I← ). То есть, если раппорт 46 (см), то отрезав из рулона полосу размером 2,5 метра (250 см), в ней будет находится 5 участков по 46 см и один неполный — 20 см. Поэтому, чтобы в следующей полосе рисунок совпал с предыдущей, необходимо отрезать лишний участок в 26 см (46 — 20).
- Сдвинутый рисунок — ступенчатая стыковка (диагональная стыковка) рисунка. Данная маркировка обоев указывается на упаковке. Например, обозначение 46 ⁄ 23 означает, что 43 — это раппорт, а 23 — расстояние в сантиметрах, на которое должен смещаться каждый следующий лист. Отметив при расчете данный пункт, будет задано максимально возможное смещение в пол раппорта.
- Запас на выравнивание — расстояние, необходимое для подгонки и удобной подрезки.
Сколько рулонов обоев надо на комнату 12 кв м. Расчет обоев по площади комнаты и периметру. Простая и понятная таблица.
Для начала надо измерить длину и высоту комнаты, где вы собираетесь клеить обои. Также стоит измерить дверные и оконные проемы. Это поможет улучшить расчет.
Сперва надо вычислить периметр комнаты:
P = (L одной стены + L смежной стены) * 2
P – периметр;
L – длина.
Расчетная длина полотна, как вычислить?
Чтобы точно знать длину обоев, надо воспользоваться формулой:
Расчетная высота полосы = высота комнаты + шаг орнамента (раппорт) + запас на верхний и нижний припуски (5 см)
Как рассчитать количество полос обоев для оклеивания комнаты
Работа начинается с измерения ширины полос обоев, которые вы выбрали. После этого посчитайте, сколько полос надо для оклейки комнаты:
N полос на комнату = P / ширина полосы обоев
Подсчет с одного рулона.
Узнаем длину рулона, которая обозначена на этикетке. А за тем рассчитывайте по формуле:
N полос с 1 рулона = L рулона / расчетная высота полосы
N – количество.
Расчет рулонов обоев на комнату.
После всей проделанной работы, мы узнаем, сколько же надо рулонов для оклейки помещения:
N рулонов = N полос на комнату / N полос с 1 рулона
Расчет обоев по площади комнаты.
Так как, расчет по периметру не всегда может быть актуальным, потому что в подсчет не включают количество дверей и окон, из-за этого вычисляют количество по площади.
Измеряем площадь стен по следующей формуле:
SО = L стены * H стены
S – площадь;
SО – общая площадь;
H – высота.
Еще надо вычислить площадь стен на которую вы будете клеить обои. Но перед этим надо подсчитать суму дверных и оконных проемов. И после этого воспользоваться этой формулой:
S оклеивания обоями = SО — S окон и дверей
Как рассчитать количество рулонов обоев на комнату.
Если рулон подходит под стандарт 53 см ширина и 10 м длина, он рассчитан приблизительно на 5 кв.м. комнаты.
Для вычисления надо:
N рулонов = S комнаты / S, которую можно поклеить 1 рулоном
На ваших обоях рисунок?
В случае наличия на ваших обоях рисунка, прежде всего надо узнать его рапорт, а после вычислить конечную ему высоту потолка и провести расчет вместе с ней.
Использование таблиц
Для того что бы использовать таблицу, вам надо узнать периметр и площадь комнаты. От этого зависит, какую таблицу вам надо использовать.
Расчет по площади, таблица:
Для использования данного рода таблицы, вы должны знать высоту и квадратуру комнаты. И после вы легко можете узнать необходимое количество рулонов.
Таблица №1 предназначена для обоев равным ширины 53 сантиметров и длиной 10 метров.
Таблица №2 предназначена для обоев равным ширины 70 сантиметров и длиной 10 метров.
Таблица №3 предназначена для обоев равным ширины 106 сантиметров и длиной 10 метров.