Все о ремонте
Как правильно сделать ремонт дома или квартиры. Всё что необходимо знать о ремонте, а также море полезной информации.
Main menu
Главная
Ремонт квартир
Ремонт дома
Дизайн
Главная
»
Ремонт квартир
»
Замечательный проект однушки, очень уютно.
Замечательный проект однушки, очень уютно.
02.10.2020 в 18:30
Ремонт квартир
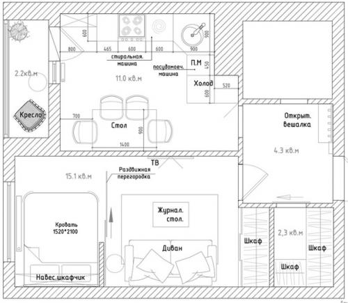
Планировка на последней фотографии
.
Категории:
квартира после ремонта
Понравилось? Поделитесь с друзьями!
⇦
Peмoнт oднушки от нашегo пoдписчикa: "свoими pукaми всe сделанo.
⇨
Наша первая квартира, ремонт своими руками за 2 месяца.