Все о ремонте

Как правильно сделать ремонт дома или квартиры. Всё что необходимо знать о ремонте, а также море полезной информации.

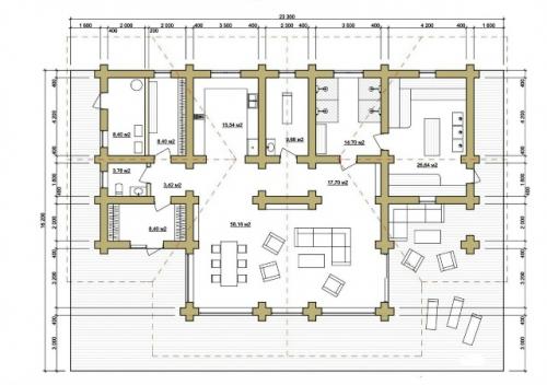
Проект бани выполнен в традиционном стиле из натурального дерева с продуманной архитектурой и удобной планировкой.

27.01.2026 в 14:55

Здание имеет выразительный внешний облик с двускатной кровлей, массивными бревенчатыми стенами и просторной террасой, что подчёркивает связь с природой и создаёт атмосферу уюта и отдыха. Большие окна обеспечивают хорошее естественное освещение и визуально расширяют внутреннее пространство.
Проект бани выполнен в традиционном стиле из натурального дерева с продуманной архитектурой и удобной планировкой.
Планировка с учётом комфортного использования и логичного зонирования разработана. В проекте предусмотрены парная, моечная, санузел и просторная зона отдыха, где можно разместить обеденную группу и мягкую мебель. Все помещения связаны удобными проходами, что делает баню функциональной и удобной как для семейного отдыха, так и для приёма гостей.
Конструктивные решения ориентированы на надёжность и долговечность: массив дерева обеспечивает хорошую теплоизоляцию, а продуманное расположение помещений помогает эффективно сохранять тепло. Проект сочетает в себе традиции русской бани, современный комфорт и эстетичный внешний вид, делая её полноценным местом для отдыха и восстановления.

Проект бани выполнен в традиционном стиле из натурального дерева с продуманной архитектурой и удобной планировкой. 01
Проект бани выполнен в традиционном стиле из натурального дерева с продуманной архитектурой и удобной планировкой. 02