Все о ремонте

Как правильно сделать ремонт дома или квартиры. Всё что необходимо знать о ремонте, а также море полезной информации.

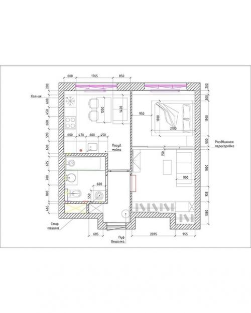
Школа ремонта. Квартира 36 м 2.

07.12.2021 в 20:56

Квартира с отделкой от застройщика. Дизайнеры не трогали стены, полы, сантехнику в ванной.
Весь дизайн продумывали с учетом цвета стен и пола
Школа ремонта.  Квартира 36 м 2..

Школа ремонта.  Квартира 36 м 2. 01
Школа ремонта.  Квартира 36 м 2. 02
Школа ремонта.  Квартира 36 м 2. 03
Школа ремонта.  Квартира 36 м 2. 04
Школа ремонта.  Квартира 36 м 2. 05
Школа ремонта.  Квартира 36 м 2. 06
Школа ремонта.  Квартира 36 м 2. 07
Школа ремонта.  Квартира 36 м 2. 08
Школа ремонта.  Квартира 36 м 2. 09