Своими руками – легко и надежно: видео-инструкция по строительству дома 6х8
- Своими руками – легко и надежно: видео-инструкция по строительству дома 6х8
- Связанные вопросы и ответы
- Какие материалы необходимы для строительства дома 6х8
- Как выбрать подходящее место для строительства дома 6х8
- Какие инструменты мне понадобятся для постройки дома 6х8
- Как правильно подготовить фундамент для дома 6х8
- Как собрать каркас дома 6х8 своими руками
- Как установить крышу на дом 6х8
- Как провести электрику и сантехнику в доме 6х8
- Как обшить дом 6х8 снаружи и внутри
Своими руками – легко и надежно: видео-инструкция по строительству дома 6х8
Первым шагом при строительстве каркасного дома 6х8 является подготовка места под строительство. Необходимо удалить растительность, выровнять участок, а также провести геодезические изыскания.
Далее необходимо разработать проект каркасного дома, учитывая все особенности участка и пожелания заказчика. Разработка проекта включает в себя предварительное планирование помещений, выбор материалов и подготовку чертежей.
Следующим шагом является подготовка фундамента. Для каркасного дома часто используют ленточный фундамент. На этом этапе необходимо тщательно продумать и выполнить подготовительные работы, чтобы обеспечить прочность и надежность фундамента.
После установки фундамента начинается возведение каркаса дома. Каркас состоит из вертикальных стоек и горизонтальных стропил. Особое внимание необходимо уделить качеству материалов, точности сборки и прочности соединений.
После возведения каркаса следует обшивка дома. Для этого часто используется древесно-волокнистая плита или OSB-плита. Обшивка выполняется снаружи и внутри дома, обеспечивая надежность конструкции и защиту от внешних воздействий.
Затем необходимо установить кровлю, сделать отделку фасада и организовать систему водоотведения. Качество кровли и фасада влияет на долговечность дома и его внешний вид.
После этого следует провести внутреннюю отделку дома. Внутренняя отделка включает в себя устройство перегородок, установку дверей и окон, монтаж электро- и водопровода, а также отделку полов, потолков и стен.
Необходимо также установить системы отопления и вентиляции, обустроить санитарные и бытовые коммуникации. Качественное оборудование систем внутренних коммуникаций обеспечит комфортное проживание в доме.
После проведения внутренней отделки можно приступить к экстерьерной отделке участка и благоустройству территории. Необходимо заботиться о создании приятной и уютной обстановки вокруг дома.
При строительстве каркасного дома 6х8 своими руками важно не только следовать инструкции, но и учитывать особенности конкретного участка и свои предпочтения. Это поможет достичь желаемого результата и создать комфортное жилье, которое будет радовать вас и вашу семью на протяжении многих лет.
Связанные вопросы и ответы:
Вопрос 1: Как подготовить участок для строительства дома 68
Подготовка участка для строительства дома 68 является важным этапом, который обеспечивает успешное проведение работ. Сначала необходимо очистить территорию от мусора, деревьев и других препятствий. Затем проводится разметка участка с помощью колышков и верёвки, чтобы определить границы будущего дома. После этого проверяется рельеф участка: если земля неровная, требуется выравнивание или создание фундамента, учитывающего особенности рельефа. Также важно убедиться, что участок не находится в зоне затопления или близко к уровню грунтовых вод. Наконец, проводится геодезическое обследование, чтобы определить уровень грунта и его устойчивость к нагрузкам.
Вопрос 2: Какие материалы необходимы для строительства дома 68
Для строительства дома 68 своими руками потребуется ряд материалов, которые можно разделить на несколько категорий. Во-первых, для фундамента и стен необходимо приобрести бетон, цемент, песок, гравий, арматуру и кирпич или пеноблоки. Во-вторых, для крыши потребуются деревянные балки, кровельное покрытие (например, шифер или металлочерепица), гидроизоляционные материалы и утеплитель. В-третьих, для внутренней отделки нужны материалы для стен (гипсокартон, штукатурка), пола (ламинат, плитка) и потолка (натяжные потолки или подвесные конструкции). Также не забудьте про электрические и сантехнические материалы, такие как провода, трубы и сантехническое оборудование.
Вопрос 3: Как построить фундамент для дома 68
Строительство фундамента для дома 68 начинается с выбора типа фундамента. Для небольшого дома часто используют ленточный фундамент или столбчатый фундамент. Если вы выбрали ленточный фундамент, то необходимо выкопать траншеи по периметру будущего дома, установить опалубку и залить бетонную смесь. Для столбчатого фундамента выкапываются отдельные ямы под столбы, которые затем заполняются бетоном. После заливки бетона фундамент нужно выдержать не менее 28 дней, чтобы он набрал прочность. Затем на фундамент укладывается гидроизоляция, чтобы защитить дом от грунтовых вод. Также важно убедиться, что фундамент ровный и соответствует проектным требованиям.
Вопрос 4: Как собрать каркас дома 68
Сборка каркаса дома 68 является важным этапом, который требует внимательности и точности. Начните с установки угловых столбов, которые будут служить основой для стен. Затем установите промежуточные столбы, соблюдая шаг, указанный в проекте. После этого укладываются верхние и нижние обвязки, которые связывают столбы в единую конструкцию. Для крыши устанавливаются стропильные ноги, которые образуют скат крыши. Все элементы каркаса должны быть надежно закреплены с помощью гвоздей или болтов. Также важно проверить ровность и устойчивость каркаса, чтобы избежать деформаций в будущем. После сборки каркаса можно приступать к обшивке стен и крыши.
Вопрос 5: Как утеплить и гидроизолировать дом 68
Утепление и гидроизоляция дома 68 являются важными этапами, которые обеспечивают комфорт и долговечность конструкции. Для утепления стен можно использовать пенопласт или минеральную вату, которые укладываются между стеновыми панелями или внутри каркаса. Крыша также требует утепления, для чего можно использовать такие же материалы. Гидроизоляция выполняется с помощью специальных мембран, которые укладываются под крышу и вокруг фундамента. Также важно обеспечить вентиляцию в доме, чтобы избежать накопления влаги и образования плесени. Все работы по утеплению и гидроизоляции должны выполняться в соответствии с проектными требованиями и строительными нормами.
Вопрос 6: Как выполнить внутреннюю отделку дома 68
Внутренняя отделка дома 68 включает в себя несколько этапов, которые придают помещению законченный вид. Начните с установки гипсокартона или оштукатуривания стен, чтобы создать ровную поверхность. Затем проводится установка пола: можно использовать ламинат, паркет или плитку, в зависимости от ваших предпочтений. Потолок можно отделать натяжными потолками или подвесными конструкциями. Также необходимо установить двери и окна, а затем приступить к декоративной отделке: поклейке обоев, покраске стен и потолка. В конце устанавливается электрическая проводка, розетки и выключатели, а также сантехническое оборудование.
Вопрос 7: Сколько времени и усилий потребуется для строительства дома 68
Строительство дома 68 своими руками потребует значительного количества времени и усилий. Время строительства может варьироваться в зависимости от вашего опыта и количества помощников. В среднем, на строительство такого дома уходит около 2-3 месяцев, если работать регулярно. Усилия включают не только физический труд, но и планирование, покупку материалов и соблюдение технологий. Если вы новичок в строительстве, возможно, потребуется больше времени и консультации со специалистами. Также важно учитывать, что некоторые этапы, такие как заливка фундамента или установка крыши, требуют особой внимательности и точности. Поэтому перед началом строительства рекомендуется тщательно спланировать все этапы и подготовиться к возможным трудностям.
Какие материалы необходимы для строительства дома 6х8
Главное преимущество жилья из газобетонных блоков - относительно невысокая цена. Сегодня для домов из газобетона 6 на 8 разработано более 1,5 тысяч типовых проектов. Использование типового проекта с привязкой к участку застройки обходится на 50-80% дешевле, чем разработка индивидуального. В проект дома 6 на 8 из газобетона могут вноситься корректировки, например можно менять положение межкомнатных перегородок, что позволяет будущему владельцу выбрать такую планировку, которая будет отвечать его требованиям и личным вкусам.
Застройщики предлагают следующие типы проектов для домов из газоблока 6*8:
- Проекты одноэтажных домов из газобетона 6х8. Это небольшие домики преимущественно для сезонного проживания для небольшой семьи из 2-3 человек. Помещения в таком жилище будут небольшими, но и строительство обойдется недорого.
- Проекты домов из газобетона 6х8 с мансардой. Мансардное помещение может быть утепленным - в коттеджах для проживания круглый год и не утепленным - для сезонного. Площадь мансарды, как правило, составляет 4 на 8 или 5 на 8 метров в зависимости от типа крыши.
- Проекты домов из газобетона 6х8 в 2 этажа. Коттедж площадью до 100 м², подходящий как для сезонного, так и для постоянного проживания семьи из 2-5 человек. Строительство полноценного второго этажа обойдется дороже, чем устройство мансарды, но при этом полезная площадь будет значительно больше.
- Другие проекты домов из газобетона 6х8: 2 этажа + мансарда, 2 этажа + цокольный этаж и пр. Такие проекты востребованы, когда нужны дополнительные площади для расположения технических помещений: котельной, прачечной, мастерской.
Как выбрать подходящее место для строительства дома 6х8
Если речь идет о срубах небольшого формата, 6 на 8, 6 на 6, 5 на 5 и так далее, то в изготовление ленточного монолитного фундамента на глубину промерзания 1.7 м нет необходимости.
Достаточно по типу “ростверк” или свайно-винтового.
Свайно винтовой фундамент, как раз выдерживает нагрузки небольших срубов, главное, чтобы почва под таким фундаментом не была зыбкой и болотистой, иначе возможна индивидуальная просадка каждой из свай в связи с чем может повезти сруб и крышу.
Наиболее оптимален фундамент для сруба по типу “ростверк”, это монолитный, ленточный цоколь.
Изготовление по типу “ростверк” ( технология запатентована, позволяет экономить до 30% материалов при той же прочности, что и ленточный, заглубляемый на 1.7м ) – это бурятся сваи по углам и через каждые 1.5м глубиной 1.6м, сваи соединяются траншеей глубиной 0.3м , производится армирование и поднимается монолитный цоколь обычно на 0.7м, работа по изготовлению фундамента – 70% от стоимости материла, общая стоимость фундамента в которую входят работа + материал может увеличится за счет рельефного уклона, из-за которого потребуется большее количество бетона. Более точный расчет на фундамент мы можем составить после просмотра вашего участка.
Поэтому, фундамент для легкого сруба 6 на 8 или другого небольшого размера лучше всего – “ростверк”.
Удобнее, быстрее и дешевле, будет свайно-винтовой. И тут конечно будет зависеть от дальнейшего наполнения дома. Если планируете второй этаж или наполнить дубовой мебелью, то лучше взять 108 диаметром. А если это баня или просто хоз. постройка то и 89 подойдет.
Какие инструменты мне понадобятся для постройки дома 6х8
Проектирование – это самое важное звено в инвестиционном процессе, связанном со строительством каркасного дома. Через выполнение этой задачи решается множество технологических, инженерных, конструктивных и архитектурных решений, которые в совокупности предопределяют эффективность вложений. Поэтому так важно доверить эту часть работы специалистам и воспользоваться услугами проектировщиков, которые подготовят для вас проект за определенную плату.
Что обычно входит в проект? Стандартно проект каркасного дома включает в себя две части. Это визуальная составляющая и конструктив постройки. Первая часть преимущественно посвящена визуальному отображению дома и его фасадов с нескольких сторон, планировке этажей с указанием помещений, размещению оконных и дверных проемов. Вторая часть – это уже подробный проект фундамента и стропильной системы, пирог кровли, чертежи стен, балок пола и перекрытия. Также сюда включена смета по количеству материалов, проект всех узлов в конструкции, обшивки стен и пола.
Имея подробный проект, вы сможете избежать проблем, связанных с включением неэффективных квадратных метров, большим количеством обрезок и напрасной тратой средств. Создать проект каркасного дома своими руками, разумеется, можно. Но для этого потребуется, как минимум, изучить специальную литературу по проектированию и конструктиву «каркасников». А это время, много сил и возможные ошибки!
На наш взгляд, важность проектирования нельзя переоценить. Экономя на этой части работ, вы рискуете понести большие затраты. Ведь неудачный или неверный проект – это не только дом, далекий от идеала, но и напрасное инвестирование!
Как правильно подготовить фундамент для дома 6х8
Построить крышу для дома размером 6х8 своими руками может показаться сложным делом, но с правильным подходом и соблюдением необходимых рекомендаций, это задание выполнимо даже для начинающего строителя. В этом руководстве мы рассмотрим основные этапы и полезные советы, которые помогут вам успешно построить крышу для вашего дома.
1. Подготовительный этап:
Перед началом строительства крыши необходимо провести подготовительные работы. Оцените условия строительства, ориентируясь на размеры вашего дома 6х8. Убедитесь, что у вас есть все необходимые инструменты и материалы.
2. Разработка плана:
Продумайте план крыши, учитывая особенности вашего дома и требования к региональным строительным кодексам. Рассмотрите варианты материалов для покрытия крыши, такие как металлочерепица, гибкая черепица или ондулин. Изучите основные принципы расчета углов наклона и выберите наиболее подходящий вариант для вашего дома.
3. Построение каркаса:
Постройте каркас крыши, следуя плану и используя необходимые материалы (дерево или металлические профили). Учитывайте необходимость устойчивости крыши к снеговой и ветровой нагрузке. Помните о правильной расстановке стропил и стропильной системы.
4. Укладка утеплителя:
После построения каркаса, уложите утеплитель на поверхность крыши. Выберите утеплитель, способный обеспечить эффективную теплоизоляцию.
5. Прокладка гидроизоляции и пароизоляции:
Для защиты крыши от попадания воды и конденсата, проложите гидроизоляционный и пароизоляционный слои на поверхность утеплителя. Убедитесь, что все соединения надежно заделаны и герметичны.
6. Установка кровельного покрытия:
Уложите выбранный материал для покрытия крыши (металлочерепица, гибкая черепица и т.п.) в соответствии с производителем. Придерживайтесь инструкций и рекомендаций по укладке, чтобы обеспечить надежность и долговечность покрытия.
7. Завершение работ:
После установки покрытия, установите дополнительные элементы кровли, такие как водосточные системы, притворные борты и дренажные системы. Тщательно проверьте качество установки и устраните все недочёты.
Следуя этому подробному руководству и соблюдая рекомендации, вы сможете построить крышу для дома размером 6х8 самостоятельно и с уверенностью в результате. Не забывайте консультироваться со специалистами, если вам необходимо дополнительное руководство или помощь в выборе материалов.
Как собрать каркас дома 6х8 своими руками

Разводка электропроводки в частном доме может быть сделана своими руками
Электропроводка в доме или в квартире осуществляется до начала проведения отделочных работ. Самое главное, чтобы стояли стены, перегородки, а также крыша, если дом находится на этапе строительства. Последовательность мероприятий следующая:
- Определиться с типом потребителей – однофазные (220V) или трехфазные (380V).
- Разработка схемы, а также расчет мощности электрических приборов, с подачей соответствующих документов и получением разрешения.
- Закупка всех комплектующих, а также электросчетчика, электрических проводов и коммутирующих аппаратов.
- Монтаж ввода, когда электрическое напряжение подается от столба к счетчику (распределительному щитку). Как правило, такие работы осуществляет организация, которая обслуживает электрические сети.
- Установка в электрическом щитке всех автоматических выключателей и устройств защиты.
- Прокладка в доме электрических проводов к местам размещения распределительных коробок, выключателей, розеток и светильников.
- Монтаж контура заземления и его подключение.
- Испытание внутренней электропроводки и оформление акта.
- Эксплуатация электропроводки.
План действий может иметь незначительные отличия от вышеописанного, но особенности заключаются в том, чтобы получить разрешение от соответствующих служб. Как правило, подготовка документов и их оформление, а также получение разрешения, занимает длительный период, при этом технические условия действительные на протяжении 2-х лет. За этот период можно изрядно потрудиться, осуществив все подготовительные операции.
Как установить крышу на дом 6х8
Обшивать стены панелями из дерева возможно в любом помещении. Нередко вагонку монтируют на дачах и лоджиях квартир. В таком помещении становится комфортно и необычайно уютно. А интерьер выглядит красиво и элегантно. Лучше всего обшивать комнаты, расположенные на северной стороне, это убережет доски от яркого солнца и сохранит их цвет.

Классификация материала
Покупая вагонку, необходимо учитывать некоторые факторы. Например, какое помещение нужно отделать, его площадь, а также цена и качество отделочного материала.
Для отделки внутри помещения используют пластиковые или деревянные панели, которые производятся из лиственных и хвойных пород дерева, и бывают четырех классов: A, B, C, Экстра.

Древесина лиственных пород отлично подходит для отделки саун и бань. Самой лучшей считается липа. При повышении температуры воздуха липовые доски начинают источать легкий аромат, благотворно влияющий на нервную систему человека. Для бань применяют также осину, ольху и ясень.
Вагонку из древесины хвойных пород при отделке саун не используют, так как в условиях высокого температурного режима хвойное дерево начинает выделять смолу. Стенки становятся липкими и неаккуратными, а дотронувшись до смольных выделений можно получить ожог.

Исключение из правил — сибирский кедр. Панели из кедрового дерева отличаются высоким качеством и долговечностью, стоимость их тоже довольно высокая.
Разновидности обшивки
Прежде, чем приступать к отделке стен, необходимо решить, в каком направлении монтировать вагонку. Существует несколько видов сборки: горизонтальная, вертикальная, диагональная, елочкой, ромбами и смешанная. Проще всего использовать горизонтальную и вертикальную сборку.
Горизонтальная сборка очень популярна в России. Такая установка визуально расширяет пространство комнаты. При завершении отделки помещение выглядит великолепно. Единственный недостаток этого метода — скопление на стыках досок пыли и влаги. Избавиться от этого возможно, если укладывать панели сверху. При установке гребни вагонки направляются вверх. В этом случае в пазах не сможет скапливаться вода, не будет образовываться плесень и доски не загниют. Паз нижней доски рекомендуется срезать, чтобы не было кармана для скапливания воды.

Как провести электрику и сантехнику в доме 6х8
В отделке домов из разного материала часто возникают типичные ошибки. Главные ошибки при строительстве дома из бруса – это использование некачественного материала, изменение размеров деревянных конструкций, шага их установки, неиспользование элементов, удерживающих соприкасающиеся конструкции из дерева, плохая гидроизоляция дерева.
Деревянные материалы для строительства обязаны иметь определенную влажность (около 20%), не быть недосушенными или пересушенными. Кору на досках необходимо обжигать или убирать полностью: в ней могут жить насекомые, способные испортить материал. Все соседние деревянные элементы нужно скреплять металлическими скобами, болтами и гвоздями.
Серьезной ошибкой будет неиспользование средств для защиты дерева от огня и биоповреждений. Кроме этого, в деревянных домах электропроводка должна быть качественно изолирована специальными трубами и негорючим материалом между трубой и деревом.
Частыми ошибками при строительстве своего дома из профилированного бруса являются использование некачественного материала неизвестных фирм-производителей, работа без специального уровня, отсутствие паро- и гидроизоляции, отсутствие прижимных элементов для утеплителя. Все эти ошибки ведут к деформации бруса, его просадке и появлению трещин.
Основная ошибка при строительстве кирпичного дома – это утолщение стен с целью повышения теплоизолирующих свойств. Лучше средства на покупку дополнительного кирпича вложить в утепление крыши. Утолщение кирпичных стен повысит экономию тепловой энергии примерно на 3-4%, а теплая и качественно сделанная мансарда сэкономит до 30% тепла. Еще типичными ошибками при строительстве дома из кирпича являются отсутствие тепловых каналов для отведения лишнего тепла в летний период и утепление кирпичных стен пенопластом. Этот популярный способ утепления в советские годы считается неправильным, т. к. пенопласт разрушается значительнее быстрее кирпича, и в теплоизоляционном слое возникают пустоты. Лучше использовать минеральную вату, качественно изолированную.
Как обшить дом 6х8 снаружи и внутри
Дача постепенно стала неотъемлемым аспектом жизни горожанина – здесь и подспорье в виде натуральных овощей и фруктов, и отдых от суеты повседневной жизни, и физическая нагрузка, которой зачастую не хватает в городе. Небольшой домик в один этаж из натуральных материалов будет лучшим выбором для дачного участка.
- обеспечивает комфортный микроклимат в помещениях;
- долговечен;
- не создаёт проблем при формировании оригинального интерьера;
- позволяет построить дом за считанные недели;
- не требует дополнительной внутренней и внешней отделки.
- задайте высоту стен;
- также понадобится значение, определяющее высоту бруса;
- разделите первое значение на второе и получите количество брусьев.
Из чего построить дачный дом своей мечты?
Чтобы строительство не влетело «в копеечку», стоит выбрать подходящий материал, который кроме невысокой цены порадует экологичностью и другими положительными свойствами. Один из таких материалов – профилированный брус. Почему именно он?
Брус обладает характерными для древесины преимуществами :

Расчёт количества бруса
Важный вопрос – сколько потребуется материала на строительство дома из бруса 6х8? Рассчитать несложно, если знать, как. Для того чтобы разобраться в этом, нужно определить размеры стен и решить, каковы будут параметры профилированного бруса , который вы будете использовать для строительства.
Далее схема проста:
Если нужно посчитать кубатуру – воспользуйтесь онлайн-калькулятором.
Особенности планировки одноэтажного дачного дома 6х8 метров
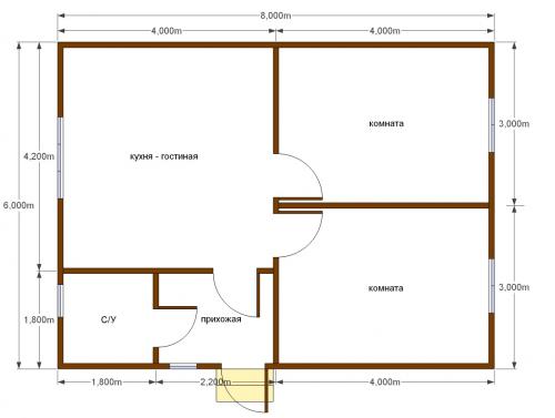
Чтобы небольшой домик в один этаж стал по-настоящему уютным, необходимо продумать планировку. Для комфортного отдыха достаточно строения с размерами 6х8 метров. На площади в 48 кв. м. можно легко разместить две или три комнаты, кухню, санузел и прихожую, что позволит создать не просто уголок для сиюминутного отдыха, а полноценное дачное жильё, где хватит места каждому члену семьи. Основная сложность планировки одноэтажного дома 6 на 8 метров – расположить помещения в наиболее удобном порядке. Чаще всего санузел располагают недалеко от входа, остальное – по желанию заказчика.

Одноэтажный дом для дачи – не нужно сомневаться
Не стоит бояться, заказывая строительство одноэтажного дома, что в нём не хватит места для всех важных помещений. Несмотря на небольшую квадратуру, такое строение позволит не только организовать отдых в процессе садово-огородных работ, но и даст возможность вписать в планировку кладовую или помещение для хранения сезонного оборудования и инструментов.
В одноэтажном дачном доме 6х8 есть полноценное чердачное помещение, которое можно использовать для размещения овощных и фруктовых консервов, инструментов для обработки участка и т. д. Готовые проекты одноэтажных домов 6х8 метров – отличный выход, среди планировок можно выбрать подходящую, каждый вариант предполагает использование архитектурных элементов, расширяющих полезную площадь дома и придающих ему индивидуальность.
Описание проекта. Особенности, планировка
Разберем подробнее один из проектов, которые предлагает СК «Стройудача» .
Проект Д-1.7 представляет собой одноэтажный дом размером 6х8 метров. Общая полезная площадь – 48 кв. м. Часто такое строение используют для сезонного проживания (в летний период). На одном этаже удачно разместились технические и жилые помещения: санузел, тамбур, кухня-гостиная и 2 комнаты (каждая по 12 кв. м.). Комнаты можно использовать под спальню или кладовую для хранения садового инвентаря.

