Все о ремонте
Как правильно сделать ремонт дома или квартиры. Всё что необходимо знать о ремонте, а также море полезной информации.
Main menu
Главная
Ремонт квартир
Ремонт дома
Дизайн
Главная
»
Ремонт дома
»
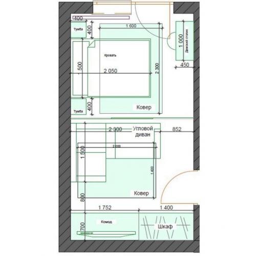
2 х - комнатная квартира с зонирование одной комнаты на гостиную - спальню и детскую.
2 х - комнатная квартира с зонирование одной комнаты на гостиную - спальню и детскую.
27.09.2023 в 23:30
Ремонт дома
Отличная идея организации быта
.
Категории:
ремонт комнаты
Понравилось? Поделитесь с друзьями!
⇦
Как маленьким плиткорезом отрезать большую плитку. Устройство ручного плиткореза
⇨
Как выбрать плиткорез и как им пользоваться правильно. Характеристики электроплиткорезов