Комплектующие для потолка армстронг. Что представляет собой типичная подвесная конструкция
- Комплектующие для потолка армстронг. Что представляет собой типичная подвесная конструкция
- Размеры комплектующих потолка армстронг. Расчет плит и комплектующих
- Профиль для потолка армстронг. Процедура установки потолка типа Armstrong
- Направляющие для потолка армстронг. Как устроен подвесной потолок «Армстронг»
- Панели для потолка армстронг. Материал
Комплектующие для потолка армстронг. Что представляет собой типичная подвесная конструкция
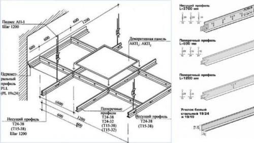
Принципиально модульная подвесная конструкция Армстронг представляет собой ячеистый каркас, в котором декоративные плиты не подшиваются снизу, а закладываются в ячейки на полки профиля. Каркас крепится к основанию через подвесы.
Основные комплектующие, из которых собирается подвесной потолок Армстронг, показаны на фото ниже:

Принципиальная схема подвесного каркаса Армстронг
- Стандартная потолочная плита размером 600 х 600 мм.
- Короткая поперечная рейка 0,6 м. Соединяет продольные планки 1,2 м и формирует ячейки.
- Основная несущая Т-образная рейка, которая ложится на пристеночный уголок. Стандартная длина – 3,7 м. Укладывается с шагом 1,2 м.
- Длинная поперечина, соединяющая несущие планки. Стандартная длина – 1,2 м.
- Зажимная скоба (бабочка) подвеса.
5а. Тяга с крючком.
5б. Тяга с верхним ушком под дюбель.
- Угловой профиль. Горизонтальная полка 24 мм, вертикальная – 19 мм. Стандартная длина – 3 м.
- Крепежный дюбель.
- Места крепления Г-образного профиля к стене.
Система подвесного потолка Армстронг условно делится на три вида:
- Видимая. Нижняя перемычка направляющей рейки видна.
- Скрытая. Плита укладываются таким способом, что нижняя перемычка рейки не видна.
- Дизайнерская. Позволяет выполнять фигурные конструкции. Видимая перемычка направляющей рейки имеет разные варианты оформления.
Профили изготавливаются из металла или металлопластика. Между собой элементы закрепляются пружинными или клипсовыми замками.
Размеры комплектующих потолка армстронг. Расчет плит и комплектующих

Установка панели Армстронг на каркас
Прежде чем считать комплектующие на потолок, хотелось бы сказать о самой подвесной конструкции Армстронг, ведь такое устройство довольно-таки известно и существует множество производителей. Ну, а раз много производителей, то есть и конкуренция, что говорит о разных ценах (см. )
Первыми, с серийным производством потолков такого типа вышли англичане, поэтому название Армстронг осталось, благодаря туманному Альбиону. Сохранился даже размер плит – 600×600мм, хотя сейчас выпускают также панели 1200×600мм. Тем не менее, такой потолок всё равно называют Армстронгом из-за аналогичности конструкции устройства.
Наряду со всеми на рынок вышли и российские производители, чья продукция не уступает зарубежной, а иногда и превосходит её по некоторым параметрам, но при этом стоит дешевле. Если говорить о более дешёвой продукции, то нельзя не упомянуть о Китае, чьи панели и в самом деле дешевле остальных и имеют при этом неплохой внешний вид. Но такая ценовая политика оправдана толщиной продукции – китайские панели имеют 8,25мм, в то время как европейские производители делают их 12мм.
Вы сами, в зависимости от потребностей можете подбирать и толщину и производителя, и всё это скажется на конечном итоге расчетов. Разница в цене панелей Армстронг также зависит и от их технических параметров. Панели могут выбираться в соответствии с противопожарными или акустическими требованиями, так же далеко не на последнем месте может оказаться вопрос гигиены.
Как бы там ни было, потолочные плиты Армстронг от любого производителя и с любыми техническими параметрами предоставляет почти свободный доступ в потолочную пазуху, что очень существенно при возможной замене коммуникаций связи и энергообеспечения. Так же, если при подсчётах вы накинете несколько лишних плит, то у вас всегда будет возможность безболезненно отремонтировать потолок в случае каких-либо форс-мажорных обстоятельств.
Направляющие
Фурнитура потолков Армстронг
- По периметру помещения к стене прикручивается угловой профили
- Для сборки каркаса вдоль длинной стены помещения подвешиваются основные направляющие на расстоянии 120см друг от друга. После установки они соединяются между собой на таком же расстоянии – 120см Т-образными направляющими.
- Теперь, в зависимости от плит Армстронга (либо 1200×600мм, либо 600×600мм) формируется каркасная сетка. То есть, к готовому каркасу добавляются направляющие, в зависимости от размеров панелей.
Расчёт

Подвесной потолок Армстронг
- Для расчёта потолка Армстронг в магазинах есть онлайн калькуляторы, которые позволят вам более ил и менее точно узнать о количестве материалов, необходимых для монтажа подвесного устройства . Но, прежде чем идти в магазин, вы, безусловно, сами захотите узнать количество материалов, чтобы определится с примерной стоимостью.
- Если вам знаком принцип, а также известен периметр и площадь помещения, то вы без особых усилий сможете рассчитать количество и стоимость материалов, воспользовавшись таблицей, приведенной ниже. Для примера возьмём помещение, где S (площадь) равна 50м2
| Итого | ХХХ? |
Подвес для направляющих
- Мощность светильников можно рассчитать самостоятельно, просто обычно один светильник вставляют на 5м2подвесного потолка Армстронг. К тому же мощность осветительных приборов должна быть взаимосвязана с назначением помещения.
- Если длина помещения более 3,7м, то основной направляющей, естественно не хватит, но такие профили имеют соединительные элементы и могут соединяться друг с другом. Другое дело, что их может понадобиться больше, чем это предложит формула SxK, потому что у профиля окажутся отходы. К примеру, соединив две направляющих, вы получите 7,4м, но вам может понадобиться всего лишь 5м.
- Дюбели и шурупы к ним можно подсчитать по количеству подвесов плюс крепление пристеночного уголка через 30-40см друг от друга.
- В больших помещениях, если использовать калькулятор подвесного потолка Армстронг, то можно получить наиболее точные цифры по количеству стройматериалов, нежели при ручном расчёте. Всё очень просто: в помещениях от 200м2 ручной расчёт начинает давать сбой, а если помещение 1000м2и более, то без коэффициентов лучше потолок и не считать – доказано практикой.
Рекомендации пользователю. Для бетонных перекрытий при креплении подвесов лучше использовать дюбели с грибком у входного отверстия, которые не позволяют ему проваливаться в пустоты, имеющиеся в каждой бетонной плите. Как правило, комплект состоит из дюбеля, диаметром 6мм и шурупа, диаметром 4-5мм.
Если приходится брать ударные дюбели (на них есть грибок), то шурупы, идущие в этом комплекте, следует заменить более толстыми. В противном случае, деталь, зафиксированную ударным дюбелем, можно вырвать силой руки человека. Так что учитывайте дополнительные шурупы при расчетах.
Профиль для потолка армстронг. Процедура установки потолка типа Armstrong
Данная конструкция способна выдержать распределительную нагрузку от 3 ½ до 6 кг/м2, рассчитанную с учетом массы потолочных панелей и проложенной поверх изоляции. Несущие каркасные профили на пружинных подвесах, которые наделены универсальным свойством регуляции, прикрепляются к базе с шагом, не превышающим 120 см.
Для того, чтобы предотвратить чрезмерную нагрузку на профиль периметрального типа, подвесную часть, расположенную ближе к краю, необходимо сместить от стеновой поверхности не далее, чем на 60 см, в том случае, если масса потолочных систем до 4 кг/м2, и на 45 см — при массе выше 4 кг/м2.
Удаленность каркаса от основы при этом должна составлять 12 см, исходя из вероятного демонтажа плит в эксплуатационный период.
- Установка потолочной системы Armstrong осуществляется поэтапно.
- Производится замер комнаты и разделение главных взаимоперпендикулярных осей;
- Осуществляется фиксирование пометок «чистой» потолочной поверхности на стеновые области;
- Намечаются потолочные разметки от осей комнаты в каждые стороны для того, чтобы выявить габариты самых ближних к стеновым поверхностям плит, области местонахождения световых приборов, вентиляционных решеток и иного оборудования;
- Производится крепеж ПУ-профиля 19/24 на стеновые поверхности и колонны с использованием дюбелей, которые устанавливаются через каждые 50 см;
- Осуществляется крепеж подвесов с тягами к исходной потолочной поверхности при помощи анкерных деталей;
- Монтируются T-профили 24х38:
- основного типа, которые выравнивают в единой плоскостной поверхности;
- поперечного типа в просеки базового профиля;
- продольного в просеки поперечного профиля;
- Производится укладка плит в каркасные секции, что осуществляется при каркасной установке либо по завершению данного процесса. Эти манипуляции следует производить по тому курсу, куда указывают стрелочки на тыльном обороте плит. Плиты, которые примыкают к стеновым поверхностям, колонным и иным конструкциям, срезают по месту;
- В случае необходимости при установке плит, можно осуществлять звуко- либо теплоизоляцию;
- Монтаж светового оборудования, решеток вентиляции и пр. осуществляется непосредственно при установке.
Направляющие для потолка армстронг. Как устроен подвесной потолок «Армстронг»
Подвесной поток «Армстронг» – это запатентованная система, которая представляет собой следующую простую, но эффективную конструкцию:
- Направляющие Т-образного сечения, которые монтируются в монтажном горизонте в ортогональном направлении по отношению друг к другу, образуя прямоугольники и квадраты с габаритами от 300 х 300 мм до 600 х 1200 мм для монтажа облицовочных плиток.
- Профильные направляющие, которые устанавливаются между продольными несущими элементами. Имеют тот же Т-образный профиль, но не снабжаются отверстиями для подвесов. Монтируются на выступающие полки продольных профилей.

- Угловые профили, которые обрамляют всю подсистему. Крепятся к стенам по периметру комнаты. Представляют собой металлические уголки с полимерным покрытием и отверстиями для монтажа к строительной конструкции на саморезы.
- Подвесы для фиксации профильных элементов к низу плиты перекрытия. Оснащаются крючками-зацепами, а также резьбовыми сопряжениями для корректировки высоты монтажного горизонта.
- Главный конструктивный элемент подвесного потолка «Армстронг» – это плитки, которые образуют декоративную поверхность конструкции. Укладываются в каждую клетку, образованную направляющими, с обратной стороны подсистемы.
- Лампы, диффузоры для вентиляции, динамики для радио оповещения и другие приборы, которые должны монтироваться в помещениях для нормальной эксплуатации, согласно проекту и требованиям СНиП.

Со времён изобретения и внедрения данной системы, принципиальная схема устройства потолка «Армстронг» практически не менялась. С годами совершенствовались лишь материалы направляющих, типы осветительных приборов, а также сами декоративные плитки.
Панели для потолка армстронг. Материал
Когда речь заходит о материале, из которого изготовлен потолок «Армстронг», нужно разделять профиль (может быть алюминиевым или стальным, покрытым цинком) и панели. Последние могут изготавливаться из:
- минерального волокна;
- металла;
- гипсокартона (ГКЛ);
- дерева;
- полистирола;
- стекла;
- ламинированной фанеры;
- бумаги (макулатуры).
Минеральное волокно. Более половины плиток типа Армстронг производится из минерального волокна (каменной ваты) и добавок: крахмала, латекса, целлюлозы, гипса. Именно добавки в разной комбинации и пропорциях придают готовой продукции те или иные свойства: тепло- и звукозащитные, акустические, влагостойкие. Поэтому потолочные системы из минеральной ваты можно встретить в жилых помещениях, концертных залах, учреждениях здравоохранения и т.д.
Для удешевления продукции используется крахмал, в дизайнерских коллекциях и продукте класса Прима — латекс. Упаковка вакуумная из полиэтилена. В стопке 22 листа площадью 7,92 м2. Хранение стандартное, не требующее каких-либо дополнительных условий.
Металл. Металлические плиты изготавливаются из алюминия или оцинкованной (иногда никелированной) стали. Алюминий — это малый вес, исключительная долговечность (на некоторые модели производителем дается гарантия 50 лет), красивый внешний вид благодаря различным покрытиям и перфорации. Но это так же и очень высокие цены. Самая дорогая плитка в мире сделана из алюминия.
Сталь намного тяжелее. Это существенный минус. Зато по внешнему виду мало чем уступает алюминию и стоит в разы дешевле. Следует отметить и еще одну особенность: из металла делаются растровые потолки.
Гипсокартон. Панели из ГКЛ в продаже встретить сложно. Причина в малой популярности — боятся влаги. Даже небольшое повышение влажности может привести к разрушению кромок.
Дерево. Еще один редкий гость на прилавках — деревянные панели. У них высокая прочность, практичность, респектабельный вид. Пропитка специальными составами повышает огне-, био-, влагостойкость. Такую плитку можно использовать где угодно, в том числе в банях и саунах. Сдерживает рост продаж высокая цена.
Полистирол. Продукция из полистирола длительное время сохраняет практические и эстетические показатели. По дизайну, фактуре и цветовому решению материал один из лучших. Плюс низкая цена. Среди минусов хрупкость и токсичность при горении.
Стекло. Плитка из стекла используется в основном в виде подсвеченных изнутри вставок. Поверхность может быть прозрачной, матовой, глянцевой или зеркальной. В дизайнерских коллекциях встречаются мозаичные плиты. Стеклянные потолки смотрятся изысканно в любом интерьере. Однако большой вес и высокая стоимость отпугивают потенциальных покупателей.
Гипс. Гипсовая плитка востребована при реконструкции старых зданий, когда нужно имитировать шикарную лепнину. Находит свое применение она и в коттеджах, где хозяева стремятся воссоздать дух дворцовых интерьеров.
Ламинированная фанера. Ламинированная фанера для потолков «Армстронг» редко встречается в продаже. Предназначена для влажных помещений. Практична, долговечна, легко декорируется, отличается экологичностью.
Бумага. Произведенные из макулатуры плиты — самый дешевый вид потолочной плитки для подвесных систем. Характеризуется малым весом, хорошими тепло- и звукоизоляционными свойствами, быстротой монтажа. Минусы: несмотря на обработку антипиренами, хорошо горит, а также боится повышенной влажности.