Все о ремонте

Как правильно сделать ремонт дома или квартиры. Всё что необходимо знать о ремонте, а также море полезной информации.

Легко, стильно, уютно, комфортно.

19.10.2023 в 20:55

Очень нравится!
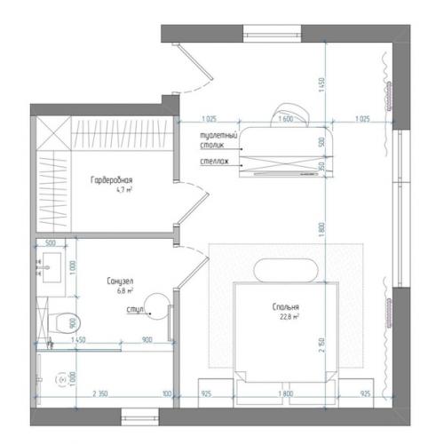
Для тех кто не понял - кухня и остальные комнаты в другой части дома.
На схеме и в обзоре только мастер - спальня.

Идеи для дома
Легко, стильно, уютно, комфортно..

Легко, стильно, уютно, комфортно. 01
Легко, стильно, уютно, комфортно. 02
Легко, стильно, уютно, комфортно. 03
Легко, стильно, уютно, комфортно. 04
Легко, стильно, уютно, комфортно. 05
Легко, стильно, уютно, комфортно. 06

Категории: ремонт комнаты