Несколько вариантов перепланировки квартиры.
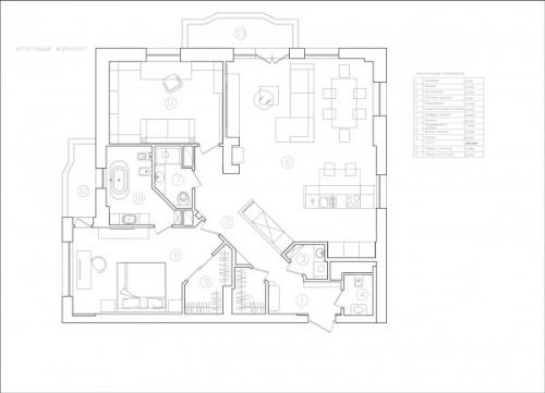
Это квартира общей площадью 134, 5 кв. Метров. Предложенная планировка от застройщика предполагает прихожую, гардеробную, небольшой санузел, большой холл, отдельную кухню, гостиную, ванную комнату и две спальни.
Учитывая техническое задание полученное от заказчика, дизайнеры сделали несколько вариантов планировки.

Было спроектировано общее большое пространство гостиной - кухни - столовой и коридора. Коридор и кухню - гостиную разделяет стена не до потолка под 135 градусов, со стороны кухни в нее встроены кухонные высокие шкафы.
В прихожей справа расположен гостевой санузел, и рядом удобная постирочная.
Двигаясь по коридору, попадаем в большую гостиную. Кухня устроена таким образом, что она растворяется в общем пространстве гостиной. Это достигнуто с помощью конкретной модели кухни Toncelli, все ее элементы дизайнеры встроили в специально возведенные под кухню ниши. Остров этой кухни, в сложенном состоянии, полностью закрывает мойку и плиту, таким образом, кухня скрыта от глаз, при том, что она находится в гостиной.
Далее расположена тв - зона с диваном, за которым расположена обеденная зона с большим столом.
Из коридора одна дверь ведет в душевую комнату, две другие в спальню и кабинет хозяина.
В спальне расположена вместительная гардеробная за раздвижными дверями.
Из спальни попадаем в ванную комнату хозяев и на лоджию.
Кабинет в самой дальней части квартиры расположен.

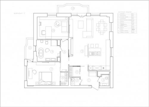
В первом варианте была предложна ровная планировка. Постирочная расположена слева от входа. Пространство прихожей отделяется от жилой части раздвижной перегородкой, которая задвигается в пенал в стене. Зона кухни отгорожена невысокой декоративной стеной.
Большое помещение гостиной - кухни - столовой отделяется от приватных помещений такой же раздвижной перегородкой. Перегородки, при необходимости, можно задвинуть в стену, чтобы объединить пространство.
В это варианте одна большая ванная комната с отдельностоящей ванной и душевой кабиной.

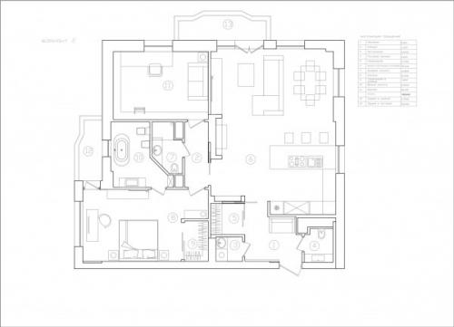
Во втором варианте гостиная - кухня - столовая не имеет выраженного зонирования с помощью возведенных перегородок. Это одно большое пространство, где кухня отделена от столовой островом, который служит для приготовления пищи и одновременно является барной стойкой и столом для завтраков.
Здесь дизайнеры предлагают разделить ванную и душевую. В этом варианте ванная имеет вход из спальни, а душевая из коридора.

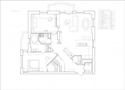
Третий вариант к итоговому близок. Появилась стена под 135 градусов, разделяющая гостиную и коридор. Постирочная теперь расположена с правой стороны, рядом с коммуникациями и гостевым санузлом. В этой планировке в прихожей устроена большая гардеробная с раздвижными перегородками. Пространство коридора не обособлено, а присоединено к общей зоне гостиной. В ванной комнате предложена большая ванна, утопленная в подиум.
В итоге, заказчиком был выбран наиболее функциональный и интересный вариант, над которым дизайнеры продолжили работу.
