Стандартные размеры шкафчиков в раздевалку. Разновидности конструкций
- Стандартные размеры шкафчиков в раздевалку. Разновидности конструкций
- Правила пользования раздевалкой. 5 правил хорошего тона, которые нужно соблюдать в раздевалке фитнес-клуба
- Расстояние между шкафами в гардеробной. Часть первая. Планирование
- Раздевалки на производстве. Перечень требований к раздевалкам на производстве
- Требования к шкафам для хранения спецодежды. Общий порядок эксплуатации и хранения спецодежды
- Размер шкафчика в раздевалке. РАЗДЕВАЛЬНИ. ОБЩИЕ ГАРДЕРОБЫ
Стандартные размеры шкафчиков в раздевалку. Разновидности конструкций
Шкафчики для раздевальни бывают разными и отличаются материалом изготовления, наличием разного количества секций, ярусов. Размеры кабинок могут быть стандартными, а некоторые модели изготавливают на заказ.
По типу конструкции
По типу конструкции шкафы для раздевалок делятся на 3 вида:
- сварные;
- сборные;
- модульные.
К первому виду относятся изделия, во время производства которых используется сварка точечного типа. Благодаря такому способу сборки изделия получаются сразу собранными. Сварные шкафчики отличаются следующими особенностями:
- практичность;
- прочность;
- долгий срок службы.
Сборные модели могут быть представлены в разобранном виде. Они часто используются при транспортировке. Модели особенно удобны, так как их с легкостью можно смонтировать на месте. Крепятся они с помощью саморезов, клепок. Уже собранные шкафчики готовы к использованию сразу после установки на нужное место.
К модульным изделиям относится непрерывная линия из шкафчиков. Транспортируют их только разобранными. Во время сборки модульной системы кабинок используют специальные заклепки. Шкаф раздевальный двухсекционный собирается по очереди. Сначала необходимо сделать первую секцию, потом приступать к присоединению второй части. Часто модульный тип моделей приобретают для командных раздевалок.
Модульные
Сборные

Сварные
По количеству створок
Кроме того, шкафы для раздевалки могут иметь разное количество створок. В зависимости от этого, они бывают одно, двух, многостворчатыми. Изделия с 2 секциями в основном используются двумя людьми. Но бывают случаи, когда 2-ярусный шкаф подходит и для одного. У каждой дверцы имеется свой индивидуальный ключ. Шкаф для раздевалок с одной створкой модульного типа обычно выпускают для школы, садика. Такие 2-ярусные кабинки удобны, когда используются большим количеством людей. Все дверцы шкафчика закрыты на замок. У каждого шкафа индивидуальный ключ.
По типу замков
Система закрывания створок шкафчиков для раздевалки отличается. Виды замков:
- врезные;
- навесные;
- электронные.
Распространенным вариантом является ригельное устройство замка. При нем необходимо с помощью открывания ключом передвинуть планку за стойку шкафчика. Навесной замок больше подходит, если нужно закрыть его на долгое время. Именно поэтому такой вид используется довольно редко.
Чтобы открыть электронный замок, понадобится специальный магнитный ключ карта. Работают такие конструкции на аккумуляторах или батарейках. Кабинки с электронным замком обладает высокой защитой, так как магнитные ключи подходят только к определенному ящику.
Стандартные размеры шкафчиков в раздевалку. Разновидности конструкций
Шкафчики для раздевалок бывают разными и отличаются материалом изготовления, наличием разного количества секций, ярусов. Размеры кабинок могут быть стандартными, а некоторые модели изготавливают на заказ.
Типы конструкции шкафов для раздевалок
Шкафы для раздевалок делятся на три вида:
1. Сварные шкафчики
Сварные шкафчики получаются при использовании точечной сварки. Они имеют следующие особенности:
- Сборные модели могут быть представлены в разобранном виде и часто используются при транспортировке.
- Модели особенно удобны, так как их с легкостью можно смонтировать на месте.
- Крепятся они с помощью саморезов, клепок.
- Уже собранные шкафчики готовы к использованию сразу после установки на нужное место.
2. Модульные шкафчики
Модульные шкафчики представляют собой непрерывную линию из шкафчиков. Они транспортируются только в разобранном виде и собираются на месте:
- Во время сборки модульной системы кабинок используются специальные заклепки.
- Шкаф раздевальный двухсекционный собирается по очереди.
- Сначала необходимо сделать первую секцию, потом приступать к присоединению второй части.
- Часто модульный тип моделей приобретают для командных раздевалок.
3. Сборные шкафчики
Кроме того, шкафы для раздевалки могут иметь разное количество створок. В зависимости от этого, они бывают:
- Одинстворчатыми
- Двухстворчатыми
- Многостворчатыми
Изделия с 2 секциями в основном используются двумя людьми. Но бывают случаи, когда 2-ярусный шкаф подходит и для одного. У каждой дверцы имеется свой индивидуальный ключ.
Шкаф для раздевалок с одной створкой модульного типа обычно выпускают для школы, садика. Такие 2-ярусные кабинки удобны, когда используются большим количеством людей. Все дверцы шкафчика закрыты на замок. У каждого шкафа индивидуальный ключ.



Правила пользования раздевалкой. 5 правил хорошего тона, которые нужно соблюдать в раздевалке фитнес-клуба

А вас тоже раздражают спортсмены, которые торчат в раздевалке, разговаривая по телефону, устраивая «банный день» со всеми возможными гигиеническими процедурами и задают бесцеремонные и глупые вопросы типа: «А где вам сделали такую ужасную татуировку?» В связи с этим MedAboutMe подготовил и собрал 5 правил хорошего тона, которые следует соблюдать в раздевалке фитнес-клуба.
Не хвастайтесь
Даже если у вас идеальная фигура, что комар носа не подточит, это не значит, что можно нарушатьи расхаживать по раздевалке нагишом. Конечно, это вовсе не призыв к крайностям, ведь и кутающиеся в несколько слоев полотенец люди выглядят по меньшей мере странно. Лучше всего быстро раздеться, не привлекая внимания к себе, обернуться в полотенце и отправиться в душевую кабинку, а после в таком же виде вернуться обратно и одеться в то, в чем вы пришли в спортивный клуб. Дурной тон – обращать внимание на достоинства и недостатки фигуры других, спрашивать, в каком салоне делали шугаринг, и какойтак безобразно наложил шов после удаления аппендицита.
Не занимайте собой все пространство
Есть люди, про которых говорят «их сильно много». Их всегда видно и слышно, они кому-то что-то рассказывают, попутно перемещая свои вещи с места на место, забывая средства личной гигиены в душевой кабинке, возвращаясь, и так по кругу. Их спортивная сумка всегда лежит посередине скамейки, а вокруг разложены вещи чуть ли не от края до края. Когда людей в спортивном клубе немного, это практически не задевает и не раздражает, но в час пик это может привести к претензиям и взаимному недовольству. Лучше не провоцировать людей на агрессию, уважая право других на комфортную подготовку к занятиям.
Не проводите гигиенических процедур

Есть, в которые не входит выполнение депиляции подмышек и интимных мест, бритье ног, чистка пяток, обрезание ногтей и пр. В конце концов, это просто неприлично и некрасиво по отношению к другим. Раздевалка – это место, созданное для того, чтобы раздеться, пройти в душевую, вымыться с мочалкой и мылом, и вернуться обратно. Не меньшее раздражение вызывают и те, кто отнимает чужое время, делая маску для волос, а после намазываякремом. Все эти гигиенические процедуры лучше оставить для ванной комнаты в своем доме.
Все свое ношу с собой
Некоторые считают допустимым оставлять в душевой свои гигиенические принадлежности – гель для душа, мочалку, полотенце. Это недопустимо с любой точки зрения. Во-первых, этими принадлежностями может воспользоваться кто-то другой, что, впрочем, маловероятно. Во-вторых, даже если этого не случится, никому не будет приятно, что вода, попадающая на чужую мочалку, будет литься на тело. Кроме того, человек будет бояться ненароком намочить чужое полотенце, а значит будет чувствовать себе стесненно и неловко.
Не красуйтесь
Многие используют зеркало в раздевалке для того, чтобы оценить прогресс своих тренировок, что, в общем-то нормально, если бы не одно но. Когда захотите внимательно рассмотреть себя, убедитесь сначала, что на вас надето нижнее белье. На обнаженного человека, который крутится вокруг зеркала и принимает различные позы, смотреть не очень приятно. Поэтому лучше не смущать других, и тем более не говорить о результате вслух. Если человек захочет, он сам у вас спросит об этом, а навязывать что-то другим, тем более давать советы по тренировочной программе, не стоит.
Расстояние между шкафами в гардеробной. Часть первая. Планирование
Как и все великие дела, устройство гардеробной необходимо начать с планирования и анализа.
Шаг 1. Один человек или несколько? Определяемся с пользователями гардеробной – один человек, супруги, вся семья или дети. В идеале у каждого члена семьи должно быть своё собственное отдельное помещение (пусть даже маленькое), но, к сожалению, в большинстве российских квартир это нереально. Если гардеробной пользуются 2-3 человека, у каждого должна быть своя «зона влияния».
Шаг 2. Определяем, что именно будет храниться в гардеробной, какие вещи.В гардеробной можно хранить как базовые вещи, обувь, так и одеяла, подушки, чемоданы, крупные сумки, спортинвентарь, а также украшения. Всё зависит от размера помещения или величины отведённого под гардеробную пространства.
Шаг 3. Сортируем вещи для хранения: делим на те, которые хранятся в подвешенном состоянии, и те, для хранения которых требуются полки. В итоге получаем а) сколько нужно вешалок, б) сколько нужно полок.
Важно! Оставляйте запас! Ведь гардероб пополняется, а с выбрасыванием у нас, учитывая традиционную русскую «бережливость» и смекалку в использовании ненужных вещей, порой возникают большие проблемы :))
Шаг 4. Измеряем самые длинные платья, чтобы понять, какие отделения планировать под длинномеры. Опять же нюанс – если в вашем гардеробе имеется одно супердлинное вечернее платье, не стоит подгонять высоту штанги только под него. Такой наряд вполне можно хранить перекинутым через перекладину вешалки (разумеется, в чехле для платья).
Шаг 5. Имея в наличии размеры (как помещения, так и того, что нужно там разместить) и точно зная количество полок, можно начать рисовать эскиз гардеробной. Как вариант, можно просто нарисовать на бумаге то, что необходимо разместить, в масштабе, скажем 1:10, вырезать, и уже наглядно двигать туда-сюда, продумывая оптимальную комбинацию.
Необходимо учитывать и удобство использования. Приведённые ниже таблицы показывают, сколько места в каких положениях занимает человек и на какую высоту он может дотянуться.
При планировании гардеробной комнаты учитывайте также правила зонирования (размещены в конце статьи).
"На выходе" у вас получится чёткая продуманная схема, на основании которой можно заказывать шкафы и стеллажи, а также станет ясно, какие нужны, плечики и дополнительные аксессуары.
Раздевалки на производстве. Перечень требований к раздевалкам на производстве
Любое производственное предприятие имеет санитарно-бытовой блок, в котором оборудованы специальные помещения для того, чтобы работник мог переодеться, умыться, произвести дезинфекцию, а при необходимости и другие процедуры. В основе требований к раздевалкам на производстве лежат стандарты СанПин, а именно строительные нормы и правила 2.09.04-87. При создании раздевалок на предприятиях особое внимание уделяется:
площади и оборудованию помещений;
количеству мест;
характеристикам мебели;
ширине проходов.
Чаще всего на производственных предприятиях раздевалку обустраивают в одном помещении, площадь которого определяется количеством работников (0,1 м2на человека). Если на производстве одновременно задействованы женщины и мужчины, то раздевалка должна быть разграничена. Для этих целей следует устанавливать непрозрачную перегородку, высотой два или более метра. Если работа на производстве связана с использованием ядовитых веществ, то помещение разделяется на три зоны. В одной из них хранится личная одежда сотрудника, в другой – спецодежда, а между ними обустраивается душевая комната. Если в раздевалке нет окон, то для подачи свежего воздуха используются механические вентиляционные системы.

В соответствии с требованиями к раздевалкам на предприятии, установленными СНиП, важно оборудовать помещение необходимым количеством мест и качественной мебелью. Для хранения спецодежды, как правило, используются специальные шкафы, состоящие из одного или двух отделений. Личную одежду работник может хранить, как в индивидуальном шкафчике, так и просто на вешалке или крючке. В любом случае количество шкафчиков и крючков в раздевалке не должно быть меньшим, чем количество работников из двух смежных смен. Дополнительно раздевалки могут оснащаться скамейками.
Чтобы избежать толкучки в случае экстренных ситуаций на производстве и предотвратить вероятность травматизма, необходимо правильно размещать шкафы в раздевалке, соблюдая требования к ширине проходов. Если шкафы располагаются напротив стены в один ряд, то расстояние от стены до шкафа должно составлять не менее 50 см. В том случае, когда шкафы располагаются в два ряда, проход между ними должен быть не менее одного метра (по 50 см на человека). Если в помещении установлены скамьи, то расстояние между рядами шкафчиков должно быть увеличено до 160 см, так как стандартная ширина скамьи составляет 30 см. При недостатке свободного места целесообразно оснащать раздевалки шкафчиками с выдвижными скамьями.
Соблюдение всех вышеперечисленных требований к раздевалкам на производстве позволит избежать как потенциальной опасности при эвакуации, так и неприятных моментов в случае проверок.
Требования к шкафам для хранения спецодежды. Общий порядок эксплуатации и хранения спецодежды
Хранение спецодежды и средств индивидуальной защиты, выданных сотрудникам предприятия, должно осуществляться в специально отведённом для этого помещении. После завершения трудового дня или смены работник должен быть обеспечен возможностью принять душ и переодеться в свои повседневные вещи. Работодатель обязан предоставлять персоналу моющие и обезвреживающие средства для очищения и защиты кожных покровов.
Место для хранения спецодежды должно быть оборудовано по установленным нормам и правилам. Недопустима ситуация, когда личные вещи и СИЗ складываются в одном шкафу – для спецодежды должен быть выделен отдельный отсек, снабжённый перегородкой.
Кто обеспечивает хранение выданной спецодежды? И работодатель, и сотрудник. К персональной ответственности работника относится бережное обращение со специальной одеждой и обувью, использование её только по сезону и в рабочее время в рамках осуществления своих должностных обязанностей. Спецовки и СИЗ, полученные от работодателя, не должны уноситься с рабочего места и применяться в личных целях (например, для работы в саду или во время ремонта).
Хранение и стирка спецодежды – ответственность работодателя . Выдача работникам стирального порошка и мыла для очищения спецовок в домашних условиях строго запрещена санитарными нормами и правилами, так как вода, задействованная при стирке специальной одежды и средств индивидуальной защиты, не должна попадать в общегородскую сеть водопровода.
В обязанности работодателя входит разработка и утверждение графика сдачи специальной одежды на чистку. Периодичность стирки разнится в зависимости от типа производства и условий труда. Средняя периодичность смены спецодежды – один раз в десять дней. Самая частая смена производственной одежды характерна для металлургических заводов: здесь спецовки сдаются на очищение в специализированную химчистку один раз в неделю.
К таким химчисткам предъявляются особые обязательные требования со стороны Роспотребнадзора, который выдаёт санитарно-гигиеническое разрешение на осуществление подобного вида деятельности. Ужесточённые правила по отношению к химчисткам, работающим со спецодеждой и средствами индивидуальной защиты, связаны с тем, чтобы не допустить попадания вредных и опасных для людей веществ из сточных вод после очищения спецовок и СИЗ в городскую или сельскую канализационную водопроводную сеть.
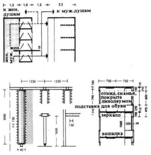
Размер шкафчика в раздевалке. РАЗДЕВАЛЬНИ. ОБЩИЕ ГАРДЕРОБЫ
Проектирование раздевален и гардеробных. Расположение кабин. Требуемая площадь при хранении одежды на вешалках с крючками.
1.Индивидуальные кабины(рис. 2): на одного посетителя 1 кабина размером от 1 х 1 до 1 х 1,2 м.
Площадь раздевальни на 1 кабину 3 — 4,5 м2. Предпочтительное число индивидуальных кабин — до 7% общего числа мест в раздевальне (иначе неэкономично).
2.Кабины для переодевания:
а) с отдельно стоящими шкафчиками (рис, 1 и 3), по 3 — 4 шкафчика на 1 кабину;
б) с общим гардеробом (рис. 4 и 5).
Размеры кабин и площадь раздевальни — по данным для индивидуальных кабин.
Желательное число мест в кабинах — около 53% общего числа мест в раздевальне (такое решение экономично: при небольшом числе посетителей кабины могут быть использованы в качестве индивидуальных).
3.Общие раздевальни:
а) с общим гардеробом (рис. 5). Площадь на 1 место 0,5 — 0,8 м2;
б) со шкафчиками для одежды (рис. 7). Площадь на 1 место 0,5 — 0,8 м2 с добавлением площади на шкафчики; на каждое место — 3 — 4 шкафчика. Размеры шкафчиков — от 30x50 до 40 х 60 см; желательное число мест около 26% общего;
в) без шкафчиков, только с крючками (рис. 6). Применяется для групп постоянных посетителей, требует охраны. Площадь на 1 место 0,5 — 0,8 м2; желательное число мест около 14% общего. Высота раздевальных ≥ 2,8 м.
![]() | ![]() |
1. Кабины для переодевания со шкафчиками. 2. Индивидуальные кабины. Проходы для обутых и босых общие. 3. Кабины для переодевания со шкафчиками для одежды. | 4. Кабины для переодевания с общим гардеробом. 5. Кабины для переодевания и групповая раздевальня с общим гардеробом. |
![]() | 6. Групповая раздевальня с крючками для одежды. 7. Групповая раздевальня со шкафчиками. 8. Групповая раздевальня с делением на две части: для обутых и босых. |
Общие гардеробы.
Устройство общих гардеробов экономично, сокращает строительные затраты и число обслуживающего персонала. Разделение кабины для переодевания на мужские и женские осуществляется при помощи передвижных перегородок или указателей (рис. 1) в соответствии с контингентом посетителей.
Состав посетителей в среднем: 60 — 70% мужчин, 30 — 40% женщин.
Старый тип кабин для переодевания со сдачей одежды в общий гардероб через окошко в стене кабины больше не применяется. Для обслуживания без задержек при неожиданном наплыве посетителей должна быть обеспечена удобная сдача и получение одежды.
Требуемая площадь при хранении одежды на вешалках с крючками (рис. 2): на 1 крючок 0,14 — 0,2 м3 (включая проходы для персонала и посетителей) при расстоянии между крючками 15 см.
В открытых бассейнах — 1 место в раздевальне на 40 посетителей; на каждую кабину или место в раздевальне — 20 крючков, т.е. 30 м вешалки; площадь гардероба 1,72 м2 на одну кабину.
Кабины и вешалки — деревянные или из оцинкованных стальных уголков с заполнением древесностружечными плитами (рис. 3).
![]() | ![]() |
1. Кабины для переодевания с общим гардеробом. Число мужских и женских кабин может меняться путем перестановки указателя. 2. Вешалки в раздевалках. 3. Кабины из древесных плит бассейна в Нордерней. | 4. Плечики и обувная корзина для кабин.
|




