Сколько денег надо чтоб построить дом. Расходы
- Сколько денег надо чтоб построить дом. Расходы
- Как построить дом без денег. Как построить дом без кредитов и сбережений год первый
- Сколько денег уйдет на строительство дома. Расскажу, сколько, какого материала потребуется и в какую сумму это обойдется.
- Сколько нужно денег, чтобы построить дом из пеноблоков 10х10. Калькулятор строительства дома
- Чем заняться в частном доме, чтобы заработать денег. Производство мебели на заказ.
- Сколько нужно денег, чтоб построить дом 100 кв. Строительство дома 100 кв.м. своими руками (бюджетно)
- Видео сколько стоит построить дом.How much does it cost to build a house
Сколько денег надо чтоб построить дом. Расходы
Рассчитывал построить дом на деньги, вырученные от продажи квартиры. Составил приблизительную смету на постройку, по мере углубления в тему строительства редактировал ее, но все равно не вписался на 10—15% , поэтому чистовая отделка идет до сих пор. Мебель в смету не вошла.
Квартиру продал за 1 050 000 Р , землю купил за 70 000 Р , весь остаток потратил на дом. По ходу строительства пришлось добавить еще 50 000 Р . Остальной ремонт делал уже из дополнительных средств, которые заработал позже.
Отопление у меня только электрическое. В СНТ газа нет, да и окупается он лишь в том случае, если сразу приобретаешь дом, где уже все подведено.
Я рассчитывал жить в доме постоянно, так как после продажи квартиры других вариантов у меня просто не было. Но во время стройки я познакомился с девушкой и в итоге зиму жил у нее в квартире, а в доме только поддерживал температуру около +15 °C. У меня стоит двухтарифный счетчик электроэнергии, поэтому я купил программируемые обогреватели и настроил их так, чтобы ночью они работали на 100%, а днем — на 50%, и чем теплее становилось на улице, тем реже я их включал. Греющий кабель для водопроводной трубы из скважины тоже работал по таймеру — по 30 минут раз в три часа.
В итоге за январь 2019 года счет за электроэнергию мне пришел где-то на 2 тысячи рублей. А этой теплой зимой я платил вообще не больше полутора тысяч в месяц, хотя при строительстве рассчитывал, что на электричество будет уходить пять-шесть тысяч.
Дом не регистрировал. В оформлении по дачной амнистии мне отказали, потому что дом стоит на землях сельхозназначения. Это можно сделать только через суд. Пока идет процесс оформления в БТИ.
Как построить дом без денег. Как построить дом без кредитов и сбережений год первый
Получение или покупка загородного участка земли в собственность является радостным событием. Вместе с тем это событие предполагает на этом участке строительство собственного дома, а эта задача уже более сложная и требующая немалых капиталовложений.
И, не секрет, что многие наши граждане не имеют возможности сразу пригласить строительную фирму, заключить договор на строительство дома и терпеливо ждать окончания стройки.
На практике большинство людей думает, как накопить денег или взять кредит на строительство . Многие решают строить дом своими руками, если есть начальные навыки, осваивая строительные навыки по ходу дела.
Это, конечно, не совсем правильно, потому что кредит взять несложно, сложнее его возвращать, да еще отдавать то приходится намного больше, чем взято.
И это все нужно заранее просчитать. Поэтому, советую, перед началом строительства изучить или сделать свой проект на бумаге с выбранным фундаментом, стенами, крышей и кровлей, окнами и дверьми.
После этого изучить цены на строительные материалы, строительные работы (если планируете нанимать рабочих), добавить на транспорт и т.д. для того, чтобы выяснить примерную стоимость.
И ни в коем разе не ориентируйтесь на рекламу. Если после расчетной суммы Вы почувствуете возможность осилить кредит или быстро накопить нужную сумму – хорошо.
А для тех, кому эта сумма окажется неподъемной, расскажу, основываясь на собственном опыте, как построить дом без кредитов и сбережений. При этом не придется выплачивать проценты, которые пригодятся для покупки стройматериалов и других целей.
Как Вы понимаете, дом строить придется не один год. Это только «некая строительная фирма, не будем называть» может предложить дом под ключ за 1-2 месяца.
Но это будет дом, стоящий на столбиках, который со временем потребует ремонта, выравнивания, утепления, укрепления и т.д. Это типичный летний домик. А если говорить о капитальном доме с возможностью проживания зимой, то придется рассчитывать на большее время строительства. Хорошо быстро не бывает.
И как я уже говорил, для начала обязательно нужно составить и нарисовать план на бумаге с точными размерами. Это будет рабочий чертеж, который можно по ходу дорабатывать, пока не начато строительство . Затем основываясь на этих размерах, сделать выбор материала для стен, крыши и т.д.
На этом этапе в зависимости выбранных материалов, может потребоваться что-то изменить. И когда все в голове отложится с проработкой водоснабжения, канализации, электрификации, можно приступать к строительству.
Почему это нужно сразу все продумать? Потому, что строительство начинается с фундамента и на этом этапе уже нужно заложить или оставить проходы в фундаменте для труб водоснабжения и канализации.
Если этого не сделать, потом придется очень много затратить сил и времени для пробивки нужных отверстий и проемов, особенно в железобетонных конструкциях.
Вот, строительство фундамента и будет планом на первый год строительства. Фундамент может быть сделан из кирпича или бетона и, желательно, ленточный – на столбах дом для зимнего проживания не ставят.
На первый год потребуется расход финансов всего на покупку кирпича, цемента и песка или готового бетона плюс арматуру. Хотя, арматуру можно использовать и подручную, если есть таковая.
Это могут быть старые оконные решетки, различные уголки, толстые электропровода, например от высоковольтных линий (бывает, оставляют после замены на новые). Все это вяжется проволокой в траншее и заливается бетоном.
А если фундамент из кирпича, то придется купить специальную арматурную сетку, которая укладывается через каждые несколько рядов кладки. Арматура придает прочность фундаменту. Ну, а на расходы на капание траншеи, на усмотрение, здесь можно либо своими силами выкопать, либо нанять рабочих.
И вот на фундамент Вы накопили денег, построили и, пока он набирает прочность, спокойно продолжаете планировать свой дом и не забываем откладывать в копилку деньги на стены.
В это время можно не спеша присмотреть материал, сравнить по качеству, цене, производителю. Если в планах есть желание самостоятельно строить, а опыта не хватает, появляется возможность глубже изучить тему, почитать литературу и т.д.
И еще преимущество поэтапного строительства – это не нужно хранить материал на площадке, если все сразу купите, а выработать не успеете. А самое главное, что фундамент готов, Вы ни кому не должны и спокойно продолжаете копить финансы. Ссылка на статью «строительство второго года.»
А если бы был кредит, Вы купили материал – успели или не успели выработать под вопросом, а проценты на кредит капают неумолимо, независимо ни отчего. И гасить кредит нужно ежемесячно, независимо от Ваших доходов.
А если непредвиденные дополнительные расходы и Вам не хватает на материал – здесь Вас никто не подождет, платить все равно нужно. Вот и думайте, выбор за Вами. А о втором этапе строительства поговорим в следующий раз. До встречи!
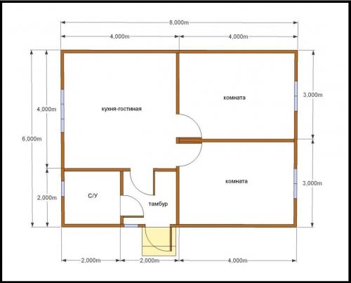
Сколько денег уйдет на строительство дома. Расскажу, сколько, какого материала потребуется и в какую сумму это обойдется.

Это наш первый дом. И весь материал, который на него нужен был, я считал сам. В итоге остатков материала осталось настолько мало, что этому удивились даже строители, которые много лет строили дома))
Чтобы рассчитать, сколько нужно будет денег на строительство дома из бруса, нужно знать точные параметры будущего строения: ДЛИНУ, ШИРИНУ, ВЫСОТУ СТЕН и фундамента, КОЛИЧЕСТВО КОМНАТ, РАЗМЕРЫ И КОЛИЧЕСТВО ОКОН И ДВЕРЕЙ. Еще важно знать, какого типа будет крыша вашего дома.
Сразу скажу, что особо точного расчета со всеми тонкостями делать не буду, поскольку всех тонкостей не учтешь. Да и не вместит объем публикации всех вычислений.
Для примера возьмем одноэтажный дом размерами 6 на 8 м и высотой 3 м. В нем будет две комнаты и кухня.
Сразу уточнимся, что брус будет взят 18 х 18 см. Пятнадцатый брус использовать для строительства не целесообразно, потому как его придется лучше утеплять (что дороже).

1. ФУНДАМЕНТ - основа дома. В данном случае будет ленточный, армированный фундамент с перемычкой посередине будущего дома под несущей стеной.
- Общая его длина составит 33,7м, ширина 0,35м, высота 90см. - Перемножаем все это и получаем количество раствора на фундамент. - Это 10,5 кубов. Примерно четвертую часть от этой массы составит цемент М400. - Это около 2,5 кубов или в среднем 50 мешков по 400 руб., что составит 20 тыс.руб.
- Добавьте к этой сумме МАШИНУ ГРАВИЯ (около 4000 руб), МАШИНУ ПЕСКА (тоже около 4000 руб) и арматуру (33,7 х 4 стержня = 134,8м х 40руб/метр = 5392 руб.).
Итого на фундамент нужно: 20 000 + 4000 + 4000 + 5392 = 33 292 руб.
2. СТЕНЫ куда же без них то?!)) - Считаем общую длину всех стен при высоте около 3 м. В такую высоту войдет не более 16 рядов по 18 см (2,88м) и с учетом межвенцового утеплителя в итоге получится даже чуть выше 3 метров. - Хотя после усадки наверняка будет на 8-12 см ниже.
- Общая длина стен составит 44м, высота - 3м. То есть общая площадь стен = 44 х 2,88 = 126,72 кв.м. в 16-ти рядах бруса.
Далее нужно вычислить площадь всех окон и дверей и вычесть эту сумму из общей площади всех стен.

Допустим, у нас будет ТРИ СТАНДАРТНЫХ (1,4 х 1,3м) ОКНА (1,82 кв.м. х 3 окна = 5,46 кв.м.) и два маленьких (0,7 х 0,5 м. = 0,35 кв.м. х 2 окна = 0,7 кв.м.), общая площадь которых составит 6.16 кв.м., а стоимость НЕ МЕНЕЕ 60 000 руб.
Также нужно посчитать и площадь дверей. В нашем случае их 5 шт.
ПЛОЩАДЬ средней ДВЕРИ составит 0,75 м х 1,9 м = 1,425 кв.м. х 5 дверей = 7,125 кв.м. А стоимость их будет около 30 000 рублей.
В сумме площадь всех окон и дверей составит: 7,125 + 6,16 = 13, 285 кв.м. - Вычтем ее из общей площади стен 126,72 кв.м. и получим: 113,435 кв.м. Делим эту площадь на 0,72 кв.м. (площадь одной стороны четырехметрового бруса) = 158 шт БРУСА или 20,47 куба в среднем по 10 тыс. руб/куб = 205 000 руб.
3. Из какого материала вы будете строить ПОЛ и ПОТОЛОК, - это достаточно индивидуально. Поэтому мы посчитаем лишь САМОЕ НЕОБХОДИМОЕ. - Это 48 кв.м. пола и столько же потолка.

НА строительство ПОЛА ПОТРЕБУЕТСЯ:
- 80 четырехметровых досок толщиной 4 см и шириной 15 см. (1,92 куб.м.)- Это примерно 20 000 рублей. - На чистовой пол.
- 80 четырехметровых досок толщиной 2,5 см и шириной 15 см. (1,2 куб.м.) - Это около 13 000 рублей. - На черновой пол.
- Утеплитель между черновым и чистовым полами. - Допустим, применим теплоизоляцию Isover Профи 4100х610х50 мм 4 шт (10 м2).
Тогда нам потребуется 5 таких рулонов по 680 руб. = 3 400 руб.
И В ИТОГЕ на строительство пола вы потратите в среднем: 20 000 + 13000 + 3 400 = 36 400 руб.
НА строительство ПОТОЛКА нужно будет потратить:
- на доски (дюймовка) и черепной брусок (4х5 см) - около 16 000 руб.
- на опилки со шлаком - около 10 000 руб
ИТОГО на потолок уйдет 26 000 рублей.
Конечно, нужно учитывать, что все сразу вы не построите, потому что доскам нужно дать высохнуть. Но затраты будут примерно такие.
4. На строительство КРЫШИ потребуется:

- На стропильную систему : около 10 000 руб.
- На 100 погонных метров дешевого профлиста (22 000 руб) и около 500 саморезов с пресс-шайбой (2 000 руб): 24 000 рублей.
- На заводской конек: 2 000 руб.
ИТОГО на крышу вы потратите примерно 36 000 рублей.
А ДАЛЕЕ ЦЕНА СТРОЙКИ ЗАВИСИТ от того, КТО БУДЕТ СТРОИТЬ.
Если вы сами можете и умеете правильно строить, то сэкономите не менее 100 000 рублей.
Если допустить, что вы будете нанимать строителей, то получатся примерно следующие итоговые затраты:
- ФУНДАМЕНТ: 33 000 руб.
- БРУС: 205 000 руб.
- ОКНА и ДВЕРИ: 90 000 руб.
- ПОЛ и ПОТОЛОК: 62 400 руб.
Сколько нужно денег, чтобы построить дом из пеноблоков 10х10. Калькулятор строительства дома
Введите параметры будущего дома
Онлайн калькулятор строительства дома является вспомогательным инструментом для планирования покупок, который поможет Вам:
понять последовательность этапов строительства Вашего дома;
определиться с выбором технологии и материалов для будущего дома;
сравнить преимущества различных материалов и их стоимость;
предварительно* оценить стоимость строительства дома и требуемые средства на основные группы товаров.
После завершения онлайн расчета строительства дома в нашем калькуляторе у Вас будет список всех товаров с предварительной* стоимостью. Мы рекомендуем на последнем шаге данного сервиса отправить этот список нашим сотрудникам, указав свои контактные данные и приложив проект дома, чтобы наш специалист сделал более точный расчет материалов уже по проекту.
*Внимание! Онлайн расчет стоимости материалов для строительства дома является ориентировочным и предварительным. Для Вашего удобства, мы запрашиваем только два параметра будущей постройки - общая площадь и этажность дома, из которых программа высчитывает объём необходимых материалов. В любом случае, количество материалов зависит от особенностей каждого проекта, которые мы заранее предусмотреть не сможем (квадратный дом и дом в форме буквы «Г», с той же площадью будут отличаться в количестве необходимого стенового материала на 10-20%). Стоимость материалов рассчитывается приблизительно, поскольку программа считает товар одного производителя, а Вы, как заказчик, сможете выбрать похожий товар любого другого завода из нашего ассортимента и просчитать доставку конкретно до Вашего населенного пункта, что изменит стоимость единицы товара.
Калькулятор строительства дома позволит сравнить стоимость каждого этапа стройки при использовании различных материалов и технологий, например, монолитного и сборного фундамента, или несущих стен из газобетона, керамических блоков и кирпича. Вы увидите как стоимость самих материалов, так и необходимых сопутствующих элементов и инструментов. Помимо этого, мы оставили множество советов и подсказок по применению материалов, описали их преимущества и недостатки. В каждом пункте указано, какой конкретно товар из нашего каталога использовался в расчёте.
Вы можете посчитать в калькуляторе строительства дома как сразу все этапы, так и несколько необходимых Вам. В любом случае, Вы получите смету по всем необходимым стройматериалам, используемым в выбранных этапах. Эту информацию можно сохранить на компьютер, отправить себе на почту, или же отправить нашим специалистам, если у Вас остались вопросы по расчёту, или нужно получить точную стоимость материалов по смете.
Расчёт строительства дома включает в себя 12 этапов:
- фундамент;
- перекрытие фундамента;
- несущие стены;
- межэтажные перекрытия (в случае 2-х и более этажного дома);
- подкровельное перекрытие;
- кровля;
- окна;
- внутренние перегородки;
- утепление фасада;
- отделка фасада;
- внутренняя отделка стен;
- внутренняя отделка полов.
После введения площади дома и числа этажей, нажмите "перейти к расчёту". Вы увидите на экране конструктор дома и 12 пунктов, обозначающих этапы строительства. Нажмите на пункт 1 - Фундамент, и вы перейдёте к выбору вариантов фундамента. Для того чтобы выбрать подходящий Вам вариант реализации каждого этапа, необходимо нажать кнопку "Сохранить". Во время составления поэтапной сметы своего дома, Вы сможете вернуться к любому этапу и изменить вариант его реализации, а также исключить лишние материалы из расчёта. После нажатия кнопки "Сохранить" Вы можете наблюдать изменение в изображении элементов здания в зависимости от выбранных конструкций - сохраненный этап визуально преобразится, и Вам станет доступна смета по материалам нового или измененного этапа.
Обратите внимание, цена товаров в смете считается без учёта доставки их до участка строительства, так как географический разброс может быть очень широким. В расчёте не учитывается и стоимость работ, необходимых для завершения каждого этапа. Кто-то собирается строить сам, а кто-то нанимает строительную бригаду: стоимость работ может сильно разниться в зависимости от уровня исполнителей, однако её можно легко можно рассчитать, зная необходимое количество строительных материалов.
Указанная на сайте информация носит исключительно информационный характер, и ни при каких условиях не является публичной офертой.
Чем заняться в частном доме, чтобы заработать денег. Производство мебели на заказ.

Для изготовления мебели на дому не обязательно открывать производственный цех. Можно просто выделить помещение в частном доме или гараже, а в городской квартире имеет смысл заняться шумоизоляцией или договориться с соседями о времени проведения шумных работ.
Люди устали от однотипных вещей и хотят эксклюзива, предложите им его и вы удовлетворите спрос, получив в ответ достойную оплату.
Ассортимент продукции может быть очень широк:
- нестандартные стулья: из массива дерева, с использованием нитей и других дополнительных материалов, из фанеры, металла, паллет (поддонов) и т.д.

- столы ручной работы: деревянные, металлические, с использованием слэбов, с заливкой эпоксидной смолой и проч.

- тумбочки: крафтовые, стилизованные, из подручных материалов, вариантов миллионы!
Спектр услуг может быть очень обширным и не обязательно ограничиваться только мебелью:
- Одиноким дамам часто требуются полочки. Даже не знаю, что они все время там хранят, но полочек почему—то всегда мало. Если вы девушка и у вас есть такая проблема, поделитесь в комментариях, в чем секрет такой востребованности полок.

- Любящие родители часто заказывают детские кровати, стилизованные под интерьер популярных мультов. Раньше очень популярны были кроватки, оформленные в стиле мультфильма «Тачки».

- Владельцы домашних животных приобретают лежаки для собак, домики, когтеточки и игровые зоны для кошек.
- Уже писал в одной из статей, что в качестве подарка часто покупают индивидуально оформленные ящики для пива .
Идей по производству мебели на дому настолько много, что даже отдельной статьи недостаточно для описания того, изготовлением какой продукции можно заняться.
Сколько нужно денег, чтоб построить дом 100 кв. Строительство дома 100 кв.м. своими руками (бюджетно)
Это мой первый пост, так что прошу не сильно ругать…
Видел в интернете много споров - "Дом за миллион - это реально или нет". Но споры идут, а реальных советов сэкономить я не встретил. Понятно, что каналы всех блогеров заточены либо на просмотры, либо на рекламу своей строительной фирмы. Мне не интересно ни первое ни второе. Я лично считаю, что построить дом за 1 лям, да еще и чужими руками под ключ - не возможно (ну может если только каркасные - я ими не интересовался). Но… Думаю, что за 1 млн можно поставить коробку из газосиликата , накрыть крышу (металлочерепица), поставить окна, двери и частично подвести коммуникации.
Я планирую дом с мансардой, общей площадью около 100 м2. Строить буду по мере появления финансовых возможностей и свободного времени, максимально своими силами. По мере выполнения работ буду отписываться, с указанием потраченных средств. Думаю, кого-нибудь эта информация может заинтересовать.
Строить я люблю с детства - с отцом и братом строили дачу. В 12 лет я уже научился делать бетон, класть бутовую кладку (лицевую не доверяли). Отец у меня не строитель - самоучка, в общем пока строили много шишек набили. Но интерес к стройке у меня появился и сейчас перерос во что-то типа хобби. Так, в 2013 купил участок, построил дом (без отделки) и продал в 2017. Закончить не позволяли финансы. На полученные от продажи деньги был куплен новый участок, погашен остаток кредита (на строительство первого дома) и куплена квартира (опять же с участием ипотеки). Писать про первый дом не хочу - во первых цены изменились, во вторых я не вел учет расходов, в третьих - там уже живут люди и фотки не приложишь, а так не интересно. Но скажу, что продав его за 1.25 он был мне не в убыток))).
Итак, 2 года назад, в 2017 году, я купил новый участок под строительство за 300 тр. На участке по документам было незавершенное строительство. По факту же, когда пришла весна, вместо цоколя я увидел просто уложенные на грунт блоки ФБС. Собственно, об этом меня предупреждал прежний владелец (блоки выложили лишь бы получить "зеленку" на недострой и, следовательно, на землю, т.к. до того она была в аренде). Кроме того, рядом на участке были осыпавшиеся и поросшие травой траншеи под (так и не залитый) фундамент. Бонусом на участке был бытовой вагончик (раньше видимо использовался под шиномонтаж), кое-какие стройматериалы (около 1000 красного кирпича и 4 ж.б. ригеля 0,15х0,5х6), подключен свет, была скважина.

С приходом весны сначала сделали с женой ремонт в вагончике :


Потом потеплело, и приступили к заливке фундамента. Для начала заказал большой погрузчик для планировки участка. Трактор работал 3 часа (4,5 тр), выровняв площадку под будующее строительство и уменьшив перепад высот до 20 см. Пришлось выкорчевать 3 довольно больших корня. После этого я выполнил разбивку будущего дома, вынес на 2 м наружные оси. Копать траншеи под фундамент решил вручную, с привлечением специально обученного персонала. За земляные работы отдал 12,6 тр (18м3 х 700р).

Тип фундамента - ленточный, глубина заложения - 0.7 м (основание - супесь). Задачей было использовать весь имеющийся на участке стройматериал. По углам заложил имеющиеся ригеля, сварив между собой их монтажные закладушки. В остальные траншеи по максимуму уложил ФБС (3,6,24), а поверх пустил 3 стержня 14А500 (3 тр), которые приварил к крайним закладушкам ригелей. Купил щебень 16,5 тр, песок 2,5 тр, цемент 5 тр, бетономешалку 12 тр. За 3 дня, вдвоем с братом, мы залили бетоном полости вокруг блоков и балок до необходимой отметки. Получилось около 6 м3. Перепад высот по факту получился не более 2 см.
На этом этапе дело остановилось на 2 года (делали ремонт в квартире, потом почти год по командировкам)… За это время все заросло травой:

Балки, которые выступают над землей - под перегородки. В целях экономии в ход шло все))).
И вот в этом году планирую продолжить стройку. В апреле начну выкладывать цоколь:

В силу финансовой возможности, пока что класть буду только блоки. Облицовку буду делать позже, т.к. пока еще не определился с облицовкой стен - все таки кирпич, или фасадная штукатурка, а от этого будет зависеть толщины утеплителя и кирпича цоколя.
Итак, на данный момент, затраты на нулевой цикл: Участок - 300, Земляные работы - 17 тр, услуги крана - 3 тр, инструмент (бетономешалка, насос в колодец, уровень, и тд) - 27 тр, материалы (щебень, песок) - 19 тр. Итого - 366 тр.