Как правильно начать ремонт в квартире: первые шаги и планирование
- Как правильно начать ремонт в квартире: первые шаги и планирование
- Связанные вопросы и ответы
- Какие основные этапы ремонта в квартире существуют
- Как составить бюджет для ремонта и не превысить затраты
- Как выбрать подрядчика или бригаду для ремонта
- Какие документы могут потребоваться для начала ремонта
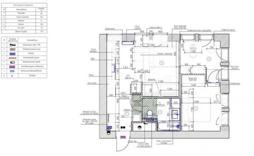
- Как правильно составить план ремонта
- Какие инструменты и материалы необходимы для начала ремонта
Как правильно начать ремонт в квартире: первые шаги и планирование
Начало ремонта в квартире – это важный этап, который требует тщательного планирования и внимания к деталям. Успешное выполнение ремонта зависит от того, насколько правильно вы подходит к первым шагам. В этой статье мы рассмотрим основные этапы подготовки к ремонту, которые помогут вам избежать ошибок и добиться желаемого результата.
Шаг 1: Определение целей и задач ремонта
Перед началом ремонта важно определить, чего вы хотите достичь. Цели ремонта могут быть разными: улучшение комфорта, увеличение полезной площади, подготовка квартиры к продаже или сдаче в аренду. Ответ на этот вопрос поможет вам определить объем работ и выделить приоритетные задачи.
Примеры целей ремонта:
- Улучшение условий проживания.
- Современное оформление интерьера.
- Увеличение функциональности помещений.
- Подготовка квартиры к новым обитателям.
Шаг 2: Составление сметы
Одним из ключевых этапов планирования является составление сметы. Это поможет вам определить общие затраты и распределить бюджет. Смета должна включать все статьи расходов: материалы, услуги подрядчиков, оборудование и т.д.
Пример сметы:
| Статья расходов | Стоимость |
|---|---|
| Строительные материалы | 30 000 руб. |
| Услуги электрика | 15 000 руб. |
| Услуги сантехника | 10 000 руб. |
| Оборудование | 20 000 руб. |
| Прочие расходы | 5 000 руб. |
| Итого | 80 000 руб. |
Шаг 3: Разработка дизайн-проекта
Дизайн-проект – это важная часть планирования ремонта. Он позволяет визуализировать будущий интерьер и избежать ошибок при выборе материалов и планировки. Вы можете создать проект самостоятельно, используя специальные программы, или обратиться к профессиональному дизайнеру.
Преимущества дизайн-проекта:
- Визуализация будущего интерьера.
- Оптимизация пространства.
- Учет всех нюансов планировки.
- Экономия времени и средств.
Шаг 4: Выбор подрядчика или самостоятельный ремонт
Одним из важных вопросов является выбор между привлечением подрядчика и самостоятельным выполнением работ. Каждый вариант имеет свои плюсы и минусы.
Сравнение вариантов:
| Вариант | Плюсы | Минусы |
|---|---|---|
| Привлечение подрядчика | Опыт и профессионализм, экономия времени | Дополнительные расходы |
| Самостоятельный ремонт | Экономия средств, возможность контролировать процесс | Необходимость обладать навыками, затраты времени |
Шаг 5: Подготовка к ремонту
Перед началом работ важно подготовить квартиру к ремонту. Это включает в себя удаление мебели, защиту полов и стен, временное перемещение жителей и т.д.
Список подготовительных работ:
- Убрать мебель и вещи.
- Защитить полы и стены.
- Оборудовать временное жилье.
- Отключить коммуникации.
Шаг 6: Контроль и управление процессом
Последний шаг – это контроль за ходом работ и управление процессом. Важно следить за тем, чтобы все соответствовало плану и срокам. Используйте специальные инструменты и методы для эффективного управления.
Советы по контролю:
- Составьте график работ.
- Проводите регулярные проверки.
- Используйте программы для управления проектами.
- Поддерживайте связь с подрядчиком.
Связанные вопросы и ответы:
Вопрос 1: Как правильно подготовиться к ремонту в квартире
Подготовка к ремонту в квартире — это важный этап, который требует тщательного планирования. Сначала необходимо определить цель ремонта: это может быть косметический ремонт, капитальный или перепланировка. Затем стоит составить подробный план, включая сроки, бюджет и список необходимых работ. Также важно подобрать надежных подрядчиков или решить, какие работы можно сделать самостоятельно. Не забудьте составить смету и приобрести все необходимые материалы заранее, чтобы избежать задержек.
Вопрос 2: Как выбрать подрядчика для ремонта квартиры
Выбор подрядчика для ремонта квартиры — это ответственное дело, которое требует внимания к деталям. Начните с поиска рекомендаций у друзей или знакомых, которые уже проводили ремонт. Проверьте отзывы в интернете и ознакомьтесь с портфолио потенциальных подрядчиков. Обязательно обсудите всености: сроки, стоимость, используемые материалы и этапы работы. Также важно заключить официальный договор, в котором будут указаны все условия и ответственность сторон.
Вопрос 3: Какие разрешения и документы необходимы для начала ремонта
Для начала ремонта в квартире могут потребоваться различные разрешения и документы, особенно если речь идет о капитальном ремонте или перепланировке. В первую очередь, необходимо оформить разрешение в жилищной инспекции или управляющей компании. Если вы планируете вносить изменения в планировку, например, переносить стены или сантехнические точки, то потребуется проектная документация и согласование в соответствующих инстанциях. Также важно убедиться, что ваш ремонт не нарушает права соседей и требования пожарной безопасности.
Вопрос 4: Как расставить приоритеты при планировании ремонта
При планировании ремонта важно расставить приоритеты, чтобы максимально эффективно использовать время и бюджет. Сначала определите, какие работы наиболее необходимы и срочны, а какие можно отложить. Например, если в квартире старая электропроводка, то ее замена должна быть в приоритете. Также важно учитывать функциональность и комфорт: какие помещения будут использоваться чаще, какие элементы интерьера наиболее важны для вас. Личные предпочтения также играют большую роль, поэтому стоит решить, какие аспекты ремонта для вас наиболее значимы.
Вопрос 5: Как выбрать стиль ремонта, подходящий для вашей квартиры
Выбор стиля ремонта — это творческий процесс, который зависит от ваших вкусов и особенностей квартиры. Популярные стили, такие как модерн, классика, минимализм или лофт, имеют свои особенности и требования. Перед выбором стиля стоит обратить внимание на размеры комнат, освещение и планировку. Также важно учитывать ваш образ жизни: если вы любите комфорт и уют, возможно, классический стиль будет более подходящим. Составьте дизайн-план, включая цветовую гамму, материалы и отделочные работы, чтобы ваш ремонт получился гармоничным и единственным в своем роде.
Вопрос 6: Как правильно закупить материалы для ремонта
Закупка материалов для ремонта требует внимательного подхода, чтобы избежать лишних расходов и обеспечить качество работ. Сначала составьте подробный список необходимых материалов, основываясь на вашем плане ремонта. Исследуйте рынок, сравните цены и выберите надежных поставщиков. Учитывая ваш бюджет, выбирайте материалы, которые совмещают качество и доступность. Также важно заказывать материалы заранее, чтобы они были готовы к началу работ. Не забудьте проверить наличие гарантий и сертификатов качества на выбранные материалы.
Вопрос 7: Как обеспечить безопасность во время ремонта
Обеспечение безопасности во время ремонта — это важнейший аспект, который нельзя игнорировать. Начните с того, что убедитесь, что все электрические сети обесточены, если вы проводите работы с электричеством. Используйте защитное оборудование: перчатки, очки, маски и строительные каски. Если вы работаете с химическими веществами, обязательно соблюдайте инструкции и работайте в хорошо проветриваемом помещении. Также важно следовать правилам работы с инструментами и не оставлять их без присмотра. Если вы нанимаете подрядчиков, убедитесь, что они имеют опыт и соблюдуют правила безопасности.
Какие основные этапы ремонта в квартире существуют
Расходы на ремонт класса «комфорт» (без дорогих позиций, но приличный) распределяются следующим образом:
- 35% — работы (демонтаж, монтаж, отделка, электрика, вывоз мусора)
- 25% — материалы (черновые и чистовые)
- 25% — мебель, техника, текстиль
- 5% — дизайнерский проект (его имеет смысл заказывать даже с бюджетом на ремонт в 300 000 рублей, т. к. дизайнеры помогают распределять расходы и четко распланировать порядок работ — чтобы не получилось, что двери уже поставили, а стены еще не оштукатурили, и черновыми работами испортили новые полотна)
- 10% — непредвиденные расходы
Что потребуется: Блокнот в клетку, рулетка,типа Remplanner, Planer 5D и Excel, монтажный скотч, много терпения.
Измерьте квартиру (включая оконные проемы и откосы, дверные проемы, ниши и т. п.) и запишите данные.
Черновые расчеты можно делать в блокноте, а затем заносить размеры в программу планировщика — удобно распечатывать каждый раз новую схему, если захотите что-то поправить. Кроме того, планировщики автоматически соблюдают размерность.
Скрупулезно составьте список работ, которые хотите сделать в квартире, и отметьте те, которые готовы делать самостоятельно. Например, вы готовы красить потолок и стены, выносить мелкий мусор, делать уборку, а на остальные работы будете нанимать строителей. По каждому списку работ изучите цены на услуги.
Важно Если у вас новостройка без отделки, то демонтажные работы не нужны, но скорее всего, потребуется больше черновых материалов на стяжку и выравнивание стен.
Что хотим сделать | Расшифровка услуг | Сколько это будет стоить |
Поменять электрику, сделать достаточное количество розеток (норма — до 40 выводов на квартиру 45 кв.м) | штробление под новые кабели и розетки, электрическая разводка, монтаж розеток | от 1000 рублей за кв. м жилой площади — на студию 30 кв. м обычно 30 000 рублей. |
Как составить бюджет для ремонта и не превысить затраты
Чтобы не пасть жертвой ремонта, не влезть в долги и не менять исполнителей на переправе, обратите внимание на следующие критерии:
1. Специализация компании. Выбирайте тех, кто не просто давно на рынке, но предлагает полный комплекс услуг под ключ. Вам не подойдёт компания, которая выполняет лишь какие-то отдельные работы, — важно, чтобы подрядчик был один и умел вести проект от и до, не дёргая заказчика по пустякам и не кивая на коллег из других бригад.
2. Опыт работы и портфолио. Обращайте внимание на количество и качество выполненных проектов — для этого можно попросить сотрудников компании показать как можно больше фотографий, в том числе с промежуточных этапов ремонта. Качественно работающие ремонтники делают регулярные фотоотчёты, так что проблем с этим возникнуть не должно. Большой плюс, если компания разместила портфолио на своём сайте.
3. Собственный штат сотрудников. Если у компании есть собственные дизайнеры и мастера, а не только субподрядчики, это указывает на её высокий уровень. Штатных специалистов проще контролировать, качество работ у них выше, а любую возникшую проблему можно оперативно решить. Кроме того, в таких компаниях есть свои протоколы работ, и разным бригадам проще взаимодействовать друг с другом. Обвинить коллег, если что-то пойдёт не так, уже не выйдет.
Также хорошо, если разными видами работ занимаются разные бригады. В ремонте хорошие мастера-универсалы — это скорее исключение из правил, чем норма. Когда кафель, потолки и электрику делает одна бригада, риск, что где-то будет брак, намного выше, чем если каждый этап берут на себя узкие специалисты. «РемонтЭксперт» , например, выводит на каждый объект до 35 мастеров.
4. Отзывы клиентов — ищите их не только на сайте компании, но и на независимых платформах отзывов. Постарайтесь определить, не заказные ли это отзывы, приложены ли реальные фотографии. Последнее можно проверить с помощью функции поиска по фото, которая есть у всех современных поисковиков.


5. Прозрачные договоры и сметы. Хорошая компания представляет подробную смету ещё до начала работ и в дальнейшем придерживается её, не увеличивая расходы. А ещё она всегда может доступно объяснить, откуда взялась та или иная цифра.
Большинство ремонтно-строительных компаний работает по предоплате, но для клиентов это рискованный сценарий. В «Ремонт.Эксперт» предоплата не требуется — за все работы клиенты платят по факту, после приёмки. Зафиксированная в смете стоимость может измениться, только если сами заказчики захотят поменять что-то в дизайн-проекте.
6. Гарантия на выполненные работы. Уточните, сколько и на какие конкретно работы действует гарантия и будет ли она подтверждена документально. Помните, что наличие гарантийных обязательств — важный показатель надёжности. Компания «РемонтЭксперт», например, даёт гарантию один год на все работы и 3 года — на инженерные и технические.
Ещё один немаловажный фактор при выборе подрядчика — владеет ли компания современными методами работы. Сейчас на рынке очень много разных технологий, стилей и материалов — поэтому настоящие профессионалы постоянно обучаются. В итоге клиенты выбирают именно их и не жалеют: ремонт остаётся визуально и стилистически свежим ещё долгие годы.

Как выбрать подрядчика или бригаду для ремонта

Базовый дизайн-проект для небольшой квартиры стоит в среднем от 20 тыс. рублей
До начала ремонта в квартире важно понять, к какой конечной цели мы стремимся. Для этого нужно определиться: каким должен быть стиль интерьера, цвета, материалы для отделки полов, стен и потолков? Какую мебель, сантехнику и декоративные элементы использовать?
Дизайн-проект как раз и создает четкий образ будущего интерьера квартиры.
Помимо «картинки» дизайн-проект — это техническая документация и детальная инструкция для мастеров.
Техническая документация описывает:
- пошаговые этапы технических работ;
- черновые и чистовые материалы;
- размеры отступов для мебели;
- расположение розеток, сантехники, выключателей, вентиляционных решеток;
- схемы раскладки напольных покрытий в комнатах;
- организацию освещения и эргономики пространства.
«Когда делаете ремонт, нужно заранее посчитать, сколько материалов понадобится. Это поможет сэкономить деньги. Даже если вы опытны в ремонте, сложно угадать, сколько нужно купить плитки для кухни или ламината для комнат. Идеально иметь запас чистовых материалов — примерно плюс 10%. Больше не нужно, это лишняя трата денег».
Какие документы могут потребоваться для начала ремонта
Основные виды мусора, которые образуются на дачных участках в садоводческих товариществах, условно можно разделить на группы:
- твердые коммунальные отходы (ТКО);
- крупногабаритные отходы (КГО);
- строительный мусор;
- иные отходы, образующиеся в процессе жизнедеятельности человека.
Твердые коммунальные отходы
Твердые коммунальные отходы (ТКО) – это отходы, которые образуются в жилых помещениях, а также товары, утратившие потребительские свойства в процессе использования. Иными словами, это бытовой мусор. Что относится к бытовому мусору в СНТ: бумага, стекло, пластиковые бутылки, пищевые отходы и пр. отходы.
ТКО - это зона ответственности региональных операторов.
Крупногабаритные отходы
Крупногабаритные отходы (КГО) – это твердые коммунальные отходы (мебель, бытовая техника, отходы от текущего ремонта жилых помещений и др.), размер которых не позволяет осуществить их складирование в контейнерах для бытового мусора (п. 2 Правил № 1156). В ГОСТ Р 56195-2014 дано более конкретное определение КГО: это такие предметы, которые утратили свои потребительские свойства и размеры которых превышают 0,5 метра в высоту, ширину и длину.
Крупногабаритные отходы входят в состав ТКО, поэтому за их вывоз отвечает региональный оператор. Плата за вывоз КГО включена в тарифы и нормативы выбранного регоператора.
Складирование КГО для вывоза, согласно п. 11 Правил № 1156, допускается в бункерах, установленных на контейнерных площадках, или на специально отведённых для этого местах. Вывоз крупногабаритного мусора в СНТ прописывается в договоре с региональным оператором.
Таким образом, регоператор обязан транспортировать КГО, если:
- отходы отвечают критериям КГО;
- отходы размещены в контейнерах, бункерах или на специально оборудованной площадке;
- площадка внесена в договор и в реестр согласно региональной схеме обращения с отходами.
Если в СНТ не предусмотрена площадка (контейнер) для КГО, то вывоз такого мусора заказывается отдельно. Для этого можно оформить заявку у регоператора, обслуживающего территорию СНТ.
Строительный мусор
Строительный мусор – это мусор, образовавшийся в результате капитального ремонта или возведения новых зданий и сооружений. Это битые кирпичи, арматура, части стен, двери и др.
Обратите внимание! Для определения вида и состава отходов применяют Федеральный каталог, утв. Росприроднадзором 22.05.2017 за № 242. В данном документе строительный мусор указан под отдельным кодом 8 00 000 000 00 0. В группе строительных отходов перечислены виды мусора, который образуется, в том числе, при ремонте инженерных коммуникаций, замене линолеума и плитки, отходы, загрязнённые следами бетона, строительного раствора, цемента и даже запачканные шпатели и кисти.
Строительный мусор не относится к ТКО и не входит в зону ответственности исполнителя коммунальной услуги по обращению с ТКО. Контейнеры на мусорной площадке не рассчитаны на хранение остатков стен, окон, большого количества плитки и бетона.
Его вывоз производится по отдельному договору с регоператором или иной специализированной компанией за дополнительную плату.
Иные виды мусора
В процессе жизнедеятельности человека остаются и другие отходы, которые не относятся к ТКО и не вывозятся региональными операторами. Прежде всего, это опасные отходы.
В контейнерах для бытового мусора запрещается складировать осветительные приборы и электрические лампы, содержащие ртуть, батареи и аккумуляторы, медицинские отходы, а также иные отходы, которые могут причинить вред жизни и здоровью лиц, осуществляющих погрузку (разгрузку) контейнеров, повредить контейнеры, мусоровозы или нарушить режим работы объектов по обработке, обезвреживанию, захоронению ТКО (п.14 Постановления Правительства РФ № 1156).
К ТКО также не относятся спил деревьев и отходы от животноводства. Ответственность за их вывоз несут лица, в процессе деятельности которых такой мусор образовался. Указанные отходы, подлежат вывозу в соответствии с договором, заключенным с лицами (организациями), обладающими соответствующей разрешительной документацией, по нерегулируемой цене.
Что касается органических отходов, то они могут утилизироваться на садовых земельных участках.
Как правильно составить план ремонта
Во время ремонта мы контактируем со строительными материалами и агрессивными химическими веществами, работаем с электропроводкой, используем сложные электроинструменты. Если не соблюдать правила безопасности, все это может стать опасным для здоровья.
- Строительная пыль, например, попадая в нос, рот и глаза, может вызвать аллергическую реакцию. Регулярное вдыхание этой пыли может привести к силикозу и хронической обструктивной болезни легких.
- Во время сварки или при работе с болгаркой раскаленные частицы металла могут обжечь руки или глаза.
- Если вдыхать пары химических веществ (например, уайт-спирита или ацетона), то это приведет к головокружению, слабости, потере сознания, тошноте и рвоте.
- Невнимательность при работе с электросетью может привести к удару током и, как следствие, к сбою в работе нервной системы, потере сознания и даже остановке сердца.
- Если уронить на себя тяжелый предмет, например кувалду, то можно получить ушиб или сотрясение мозга.
- От постоянного шума работающего электроинструмента (например, штрабореза или перфоратора ) может болеть голова.
Урал Абдуллин
Если не соблюдать правила индивидуальной защиты при ремонте, то можно заработать заболевания дыхательной системы, снижение иммунитета и даже онкологию. Это только кажется, что при кратковременном вдыхании строительная пыль, химические испарения от краски или лака не так опасны. На самом деле даже 2–3 часа работы в помещении с лакокрасочными материалами могут привести к проблемам со здоровьем.
Какие инструменты и материалы необходимы для начала ремонта

Ремонт кажется просто последовательностью физических действий по трансформации пространства. Однако на психологическом уровне он затрагивает гораздо больше аспектов нашей жизни, чем можно предположить на первый взгляд. Рассмотрение психологических аспектов ремонта помогает осознать, почему этот процесс может стать источником стресса, и как его влияние распространяется на разные сферы нашего бытия, включая семейные отношения.
Когда мы начинаем ремонт , перед нами встает ряд вызовов: необходимость принимать множество решений, страх перед возможными ошибками, беспокойство о соблюдении бюджета и сроков. Все это становится источником стресса. Кроме того, ремонт вносит временный хаос в наш обыденный порядок, что может вызывать чувство неуверенности и дискомфорта.
Влияние ремонта на психическое состояние проявляется и в том, как мы взаимодействуем с окружающими, особенно с членами семьи. Совместное принятие решений и общение в условиях стресса могут стать как испытанием, так и возможностью для укрепления отношений. Ремонт тестирует нашу способность к компромиссу, терпимость и взаимоподдержку.
Понимание своих эмоциональных реакций в процессе ремонта — это ключ к снижению уровня стресса. Осознавая, что определенные этапы ремонта могут вызывать тревогу или раздражение, мы можем подготовиться к этим вызовам, разработать стратегии справления и избежать многих психологических ловушек. В итоге, такое глубокое понимание собственных эмоций и реакций помогает не только успешно завершить ремонт, но и обрести новый опыт, который укрепит нашу психологическую устойчивость в будущем.