Сколько надо обоев на комнату 13 метров. Сколько обоев нужно на комнату
- Сколько надо обоев на комнату 13 метров. Сколько обоев нужно на комнату
- Сколько надо обоев на комнату 18 кв м при ширине обоев 1 метр. Необходимые величины
- Сколько надо обоев на комнату 15 кв метров и высота потолко. Рассчитаем рулоны обоев
- Сколько надо обоев на комнату 16 кв м при ширине обоев 1 метр. Параметры выбранных обоев
- Сколько надо обоев калькулятор. Калькулятор обоев
Сколько надо обоев на комнату 13 метров. Сколько обоев нужно на комнату
Нередко, приходя в магазин обоев, покупатели уже довольно подкованы в вопросах качества обоев и цены за рулон. Они знают какие обои и каких производителей лучше покупать и клеить на стены. Долго продумывают дизайн и структуру, которая им необходима для завершенного образа комнаты или квартиры в целом. Знают даже где купить обои. Но одно «но» может прервать намеченные планы покупки обоев для стен. Это обстоятельство возникает при выяснении вопроса о количестве рулонов, которые нужны для поклейки стен обоями. В данной статье мы попробуем максимально наглядно показать сколько рулонов обоев надо, чтобы поклеить комнату.
Чтобы ответить на вопрос темы, мы сначала определим параметры самой комнаты. А именно, давайте научимся рассчитывать площадь любой комнаты. Для этого нам необходима рулетка или, на крайний случай, сантиметровая лента, которой часто пользуются люди понимающие толк в швейном мастерстве. Приступаем.
Необходимо снять две мерки – длину и ширину комнаты. После этого остаётся только перемножить длину на ширину, воспользовавшись калькулятором.
На рисунке ниже приведена схема расчёта площади комнаты.
Итак, после того как площадь комнаты посчитана, нам необходимо измерить высоту потолков. Пользуемся аналогичными инструментами, я имею в виду рулетку или сантиметровую ленту и получаем значение.
Вот теперь самое главное. Определяем количество рулонов, необходимое нам для поклейки комнаты. Как рассчитать обои нам помогут нехитрые таблицы, которые отличаются только шириной обойного рулона 53, 70 и 106 сантиметров.
Обратите внимание, что расчет сделан на среднестатистическую комнату, в которой имеются одни двери и одно окно.
Также отметим, что сколько рулонов обоев надо будет зависеть от того, нужен ли подбор рисунка. Если обои нуждаются в подгонке рисунка, то на каждые 6 рулонов обоев нужно закладываться еще на один рулон.
Пример расчета:
Допустим мы имеем высоту потолка нашей комнаты 2,35 метра (2 метра 35 сантиметров), а площадь комнаты 16,4 квадратных метра. Округляя площадь до величины, которая есть в нашей таблице мы получаем расчет для площади 18. Далее определяем ширину рулона, которую мы хотим покупать.
Для ширины рулона 53 сантиметра – надо 9 рулонов (т.е. смотрим для высоты потолка 2,5 метра по первой таблице для площади 18).
Соответственно для ширины рулона 70 сантиметров получаем 6 рулонов обоев, а для метровых обоев имеем значение 5. Вот и вся математика.
Сколько надо обоев на комнату 18 кв м при ширине обоев 1 метр. Необходимые величины
Для того, чтобы процесс поклейки прошел гладко и без «лишних нервов», как уже было сказано ранее, всё необходимо заранее измерить и посчитать. Иначе может получиться «сюрприз» в виде голого пятна на стене с недостающим куском обоев или, наоборот, останется слишком много рулонов.
В первую очередь для подсчётов понадобятся такие величины, как длина и высота каждой из в дальнейшем оклеиваемой стены.
Для примера, можно взять обычную комнату стандартных размеров, допустим, она имеет следующий метраж: высота стен – 2,5 м, ширина помещения – 3 м, длина – 5 м.


Первое, что нужно сделать, это, вооружившись обычной рулеткой, узнать длину каждой из стен. Затем на бумаге складываем известные величины: (3+5) х2 = 16 м – это периметр измеряемой комнаты.
Далее нужно померить ширину обоев (обычно, эти параметры написаны на каждом рулоне, стандартная ширина 0,5 м). Полученное число периметра помещения делим на ширину обойного полотна, то есть 16 м: 0,5 м = 32. Данное число показывает, сколько полос обоев понадобится для комнаты.


Следующее значение, которое понадобится при расчёте, это – сколько полос получится с каждого рулона, чтобы в дальнейшем узнать их количество. Стандартный рулон имеет метраж 10, 25 или 50 метров, но если был приобретен нестандартный, где дробные значения, то для простоты вычисления округляем до ровного числа. Эту длину делим на известную высоту комнатной стены. Получается 10 м: 2,5 м = 4 – столько полос получится с одного рулона обойного полотна.
Осталось дело за малым – узнать точное число рулонов. Для этого нужно разделить количество необходимых полос для всего помещения на число полос в одном рулоне. 32: 4 = 8 – столько понадобится рулонов для полного оклеивания выбранного помещения.


Мастера, в свою очередь, советуют всё-таки приобрести на один рулон обоев больше, так как всегда есть вероятность допустить ошибку или случайно испортить несколько полос, и, чтобы не бежать за очередным свертком нужного обойного полотна (которого уже может не быть в магазине), лучше всегда иметь немного про запас. Также всегда будет возможность заменить испорченный фрагмент детьми или домашними животными.


Сколько надо обоев на комнату 15 кв метров и высота потолко. Рассчитаем рулоны обоев
Нам придется воспользоваться школьными знаниями математики, которые помогут не запутаться в цифрах, однако предварительно определите основные параметры:
- Периметр выбранной для отделки комнаты . Для этого требуется сложить длины всех стен и разделить полученную цифру на 0,53 м или на 1,06 м. Также следует поступать и при использовании нестандартной ширины отделочного материала. Это нам позволит узнать количество полос.

Работа со стандартным узким рулоном (0,53 м)
- Ширина и длина рулона . Стандартной считается ширина 53 см и 106 см, остальные нестандартные. При этом длина в первом случае может быть 10,05, 12 или 15 м, во втором – до 25 м. Если у вас потолки в квартире 2,4-2,5 м, значит, узкого хватит на 4 полосы.
Для лучшего понимание приведем пример, как узнать сколько нужно обоев на комнату, где:
- общая длина стен составит – 5 и 6 м;
- потолки – высотой 2,5 м.

Клеим «метровые» (1,06 м) полотна
Расчет:
- Ширина 53 см:
5*2+6*2=22 м (общий периметр комнаты);
22:0,53≈42 (полосы);
42:4≈11 (рул.).
- Ширина 106 см:
22:1,06≈21 (полоса);
Так как в рулоне длиной 25 м будет 10 полос, значит, в нашем случае понадобится 2 рул. Последнюю полосу придется состыковать внизу, чтобы не докупать новый.
На самом деле, данный подсчет будет несколько приблизительным. Итак, зная основные параметры, сколько нужно обоев на комнату 12 метров по периметру определить уже несложно, а именно: 12:0,53:4≈6 штук.

Расчет материала при высоте стен 3 м
Общая формула расчета
Из сказанного выше можно с легкостью составить общую формулу для данных действий: P:L:3 (с подгонкой рисунка) или 4 (без подгонки изображения), где P – периметр комнаты, L – ширина рулона обоев.
Совет: полученный результат следует всегда округлять в большую сторону.
Теперь настал черед поговорить о пространстве под окном и над дверным проемом, так как на данных участках приходиться использовать не целую полоску обоев. Один из вариантов – воспользоваться остатками от подгонки рисунка. Тем самым вы сможете сильно сэкономить на ремонтных работах.
Совет: для определения, сколько нужно обоев на комнату 20 метров по площади с длиной стен 5 и 4 м, нужно: (5*2+4*2):1,06:10≈1 (рул).

Расчет площади стен
Если вы любитель точных цифр, сделайте следующее:
- определите по формуле количество рулонов, не учитывая пространство над дверью и под окном;
- добавьте к ним необходимое количество для этих участков.
В этом случае результат окажется максимально полным.
Давайте определим, сколько нужно обоев на комнату 16 метров и 17 метров с подгонкой рисунка:
- 16:0,53:3=10 рул.;
- 17:0,53:3=11 рул.
Рекомендации профессионалов
Ниже будет предложена инструкция подсчета количества обоев для экономных домашних мастеров:
- Если на настенных покрытиях подразумевается повторяющийся узор, уточните у продавца размер его шага и разделите параметр высоты на эту цифру.
- Округлите полученное число и умножьте его на тот же размер шага изображения. Найденная в результате цифра будет являться длиной полосы, которую нужно отрезать от полотна.
- Вычислите разницу, которая уйдет в отход, отняв от длины обойной полосы высоту стены.
- Разделите общую длину рулона на длину полосы, которую вы нашли во 2-ом пункте, у вас получится коэффициент. На него умножьте разницу, найденную в пункте 3. Получите общую величину отходов и вычтите ее из общей длины.
Теперь разделите значение оклеиваемой площади на чистое от отходов число из пункта 4. Данный результат количества рулонов будет окончательным.
Сколько надо обоев на комнату 16 кв м при ширине обоев 1 метр. Параметры выбранных обоев
Современные обои поражают свои разнообразием. Они различаются по материалу изготовления основы и лицевого слоя – бывают бумажными, флизелиновыми, виниловыми, на базе стеклохолста, изготовленными из натуральных природных материалов (бамбука, пробки), или их текстиля. В широчайшем ассортименте представлено и внешнее их оформление. Но в контексте настоящей статьи нас в большей части интересуют лишь размерные параметры и тип нанесенного рисунка. Начнем с размеров.
Стандартные размеры рулонов обоев
Для начала необходимо правильно проставить линейные размеры приглянувшихся обоев. Они должны соответствовать существующим стандартам (с минимальной погрешностью) – эти параметры обычно указываются на товарных ярлыках на каждом рулоне.

Рулоны обоев могут различаться длиной и шириной – это требует внимания при выборе материала
- Сразу заметно, что в калькуляторе по умолчанию установлены обои, рулон которых имеет размеры 53 × 1005 см или 0,53 × 10,05 м (обратите внимание: длина не 10 с половиной метров, а именно 10 метров + 5 сантиметров – это очень часто допускаемая ошибка при проведении расчетов).
Действительно, этот стандарт является наиболее распространенным. Считается, что именно с такими узкими полотнами удобнее всего работать начинающим отделочникам. В этом размерном ряду можно отыскать любой тип отделки.
виниловые обои
- Следующим по разнообразию представленных вариантов можно назвать стандарт 106 × 1005 см. По сути, это те же обои, но увеличенные вдвое по своей ширине. Понятно, что оклеивание стены в таком случае осуществляется быстрее, но для работы с широкими полотнами уже потребуется больше практических навыков. Впрочем, многие мастера утверждают, что им легче выполнять отделку именно с таким, широким стандартом.
- Достаточно часто встречаются импортные обои шириной 74 см. Длина рулона в этом случае составляет обычно 10 м.
- Обои с шириной 60 см, 120 см, 150 см встречаются очень нечасто, но все же такие стандарты существуют, поэтому в калькуляторе им тоже уделено внимание.
- Кроме того, обои могут различаться толщиной полотна – от супер-толстых с виниловым рельефным рисунком до тонких флизелиновых или стеклотканевых – под покраску. Соответственно, не исключается варьирование и по длине рулона, с сохранением стандартной его ширины. Так, в продаже можно встретить, помимо упомянутых 10,05 м, рулоны длиной 5, 8, 12, 15, 18, 20 и 25 метров. Это разнообразие также предусмотрено в калькуляторе.
Сколько надо обоев калькулятор. Калькулятор обоев

Поклейка обоев — задача для опытного мастера нетрудная. И из личного опыта могу утверждать, что основной проблемой, с которой приходилось чаще всего сталкиваться — нехватка полосы или целого рулона. Заказчик не правильно посчитал, и приходиться докупать и тратить время. Чтобы минимизировать все риски и упростить процесс расчета, рекомендуется воспользоваться представленным ниже калькулятором обоев. Его использование не должно вызвать затруднений. А если что-то будет непонятно — изучите подробную инструкцию и ознакомьтесь с примером расчета.
Онлайн калькулятор обоев
Как пользоваться калькулятором обоев
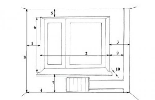
Чтобы произвести корректный расчет количества обоев для конкретного помещения, необходимо ввести верные исходные данные. Рассмотрим каждый пункт:
- Ширина помещения.
- Длина помещения.
- Периметр помещения. Данный параметр рассчитывается автоматически на основе длины и ширины. Он нужен для определения общей площади всех стен с учетом их высоты.
- Высота потолков — расстояние от пола до потолка.
- Количество дверей в комнате. Если дверей нет — пункты 5, 6, 7 не задаются.
- Высота двери. Если дверей несколько и они имеют различные размеры — укажите наименьшую высоту.
- Ширина двери. Если дверей несколько и они имеют различные размеры — укажите наименьшую ширину.
- Количество окон в комнате. Если окон нет — пункты 8, 9, 10 не задаются.
- Высота окна. Если окон несколько и они имеют различные размеры — укажите наименьшую высоту.
- Ширина окна. Если окон несколько и они имеют различные размеры — укажите наименьшую ширину.
- Длина рулона. Стандартный размер — 10,05 м. Бывают и 25 метровые виниловые обои на флизелиновой основе. Внимательно изучите упаковку — данный параметр там указан.
- Ширина обоев. Стандартные размеры — 53 см и 106 см. Они также указываются на упаковке рулона.
- Раппорт рисунка — высота рисунка ( →I← ). То есть, если раппорт 46 (см), то отрезав из рулона полосу размером 2,5 метра (250 см), в ней будет находится 5 участков по 46 см и один неполный — 20 см. Поэтому, чтобы в следующей полосе рисунок совпал с предыдущей, необходимо отрезать лишний участок в 26 см (46 — 20).
- Сдвинутый рисунок — ступенчатая стыковка (диагональная стыковка) рисунка. Данная маркировка обоев указывается на упаковке. Например, обозначение 46 ⁄ 23 означает, что 43 — это раппорт, а 23 — расстояние в сантиметрах, на которое должен смещаться каждый следующий лист. Отметив при расчете данный пункт, будет задано максимально возможное смещение в пол раппорта.
- Запас на выравнивание — расстояние, необходимое для подгонки и удобной подрезки.