Сколько нужно рулонов обоев на комнату 10 кв м. Сколько обоев нужно на комнату
- Сколько нужно рулонов обоев на комнату 10 кв м. Сколько обоев нужно на комнату
- Связанные вопросы и ответы
- Простой расчет обоев. Калькулятор расчета обоев
- Сколько метров в рулоне обоев. Метровые обои: сколько метров в рулоне
- Точный калькулятор обоев. Калькулятор обоев онлайн
- Сколько рулонов обоев нужно на 17 кв. Рассчитаем рулоны обоев
Сколько нужно рулонов обоев на комнату 10 кв м. Сколько обоев нужно на комнату
Нередко, приходя в магазин обоев, покупатели уже довольно подкованы в вопросах качества обоев и цены за рулон. Они знают какие обои и каких производителей лучше покупать и клеить на стены. Долго продумывают дизайн и структуру, которая им необходима для завершенного образа комнаты или квартиры в целом. Знают даже где купить обои. Но одно «но» может прервать намеченные планы покупки обоев для стен. Это обстоятельство возникает при выяснении вопроса о количестве рулонов, которые нужны для поклейки стен обоями. В данной статье мы попробуем максимально наглядно показать сколько рулонов обоев надо, чтобы поклеить комнату.
Чтобы ответить на вопрос темы, мы сначала определим параметры самой комнаты. А именно, давайте научимся рассчитывать площадь любой комнаты. Для этого нам необходима рулетка или, на крайний случай, сантиметровая лента, которой часто пользуются люди понимающие толк в швейном мастерстве. Приступаем.
Необходимо снять две мерки – длину и ширину комнаты. После этого остаётся только перемножить длину на ширину, воспользовавшись калькулятором.
На рисунке ниже приведена схема расчёта площади комнаты.
Итак, после того как площадь комнаты посчитана, нам необходимо измерить высоту потолков. Пользуемся аналогичными инструментами, я имею в виду рулетку или сантиметровую ленту и получаем значение.
Вот теперь самое главное. Определяем количество рулонов, необходимое нам для поклейки комнаты. Как рассчитать обои нам помогут нехитрые таблицы, которые отличаются только шириной обойного рулона 53, 70 и 106 сантиметров.
Обратите внимание, что расчет сделан на среднестатистическую комнату, в которой имеются одни двери и одно окно.
Также отметим, что сколько рулонов обоев надо будет зависеть от того, нужен ли подбор рисунка. Если обои нуждаются в подгонке рисунка, то на каждые 6 рулонов обоев нужно закладываться еще на один рулон.
Пример расчета:
Допустим мы имеем высоту потолка нашей комнаты 2,35 метра (2 метра 35 сантиметров), а площадь комнаты 16,4 квадратных метра. Округляя площадь до величины, которая есть в нашей таблице мы получаем расчет для площади 18. Далее определяем ширину рулона, которую мы хотим покупать.
Для ширины рулона 53 сантиметра – надо 9 рулонов (т.е. смотрим для высоты потолка 2,5 метра по первой таблице для площади 18).
Соответственно для ширины рулона 70 сантиметров получаем 6 рулонов обоев, а для метровых обоев имеем значение 5. Вот и вся математика.
Связанные вопросы и ответы:
1. Сколько обоев нужно приобрести, чтобы покрыть комнату площадью 10 кв м
- При расчете количества требуемых рулонов обоев для комнаты 10 кв м следует учитывать площадь, которую покрывает один рулон выбранного обоев и высоту потолков. Обычно упаковка обоев содержит информацию о количестве квадратных метров в упаковке. При соблюдении рекомендаций производителя относительно запаса обоев, можно определить количество рулонов, необходимых для покрытия комнаты.
2. Как определить, сколько обоев содержится в одном рулоне
- Чтобы узнать количество обоев в одном рулоне, следует изучить маркировку упаковки, которая обычно содержит информацию о длине и ширине рулона, а также площади, которую он покрывает. Также можно обратиться к информации на веб-сайте производителя или обратиться в магазин, чтобы получить точные данные о количестве обоев в одной упаковке.
3. Какова средняя площадь покрытия одного рулона обоев
- Средняя площадь покрытия одного рулона обоев может варьироваться в зависимости от производителя и типа обоев. Обычно упаковка содержит информацию о количестве квадратных метров покрытия, которое предоставляет один рулон. Например, если один рулон покрывает 5 кв м, то для комнаты площадью 10 кв м потребуется 2 рулона.
4. Нужно ли учитывать запас обоев при покупке
- Да, при покупке обоев для комнаты 10 кв м рекомендуется учитывать запас. Запас обоев позволяет учесть возможность ошибок при расчетах, а также гарантирует наличие одинаковой партии обоев на случай необходимости дополнительного покрытия или ремонта в будущем. Обычно рекомендуется приобрести на 10-15% больше обоев, чем требуется для покрытия площади комнаты.
5. Как определить количество рулонов обоев с учетом высоты потолков
- Для определения количества рулонов обоев с учетом высоты потолков следует узнать высоту потолков в комнате. Затем необходимо проконсультироваться с производителем или обратиться в магазин, чтобы узнать, какой максимальной высоты покрытия может быть достигнуто одним рулоном. После этого рекомендуется просто поделить общую площадь комнаты на площадь покрытия одного рулона, учитывая, что покрытие будет происходить на всю высоту потолков.
6. Что делать, если площадь комнаты не соответствует целому числу рулонов
- Если площадь комнаты не соответствует целому числу рулонов, необходимо округлить количество рулонов в большую сторону до целого числа. При этом стоит приобрести дополнительный запас обоев для обеспечения полного покрытия комнаты. В случае, если обои имеют узоры или рисунки, следует также учесть необходимость дополнительных рулонов для согласования рисунка и создания качественного внешнего вида отделки.
7. Какие другие факторы следует учесть при выборе количества рулонов обоев
- Помимо расчета площади комнаты и учета высоты потолков, также следует учесть другие факторы при выборе количества рулонов обоев. Это может включать в себя компенсацию убытков в процессе укладки, наличие окон, дверей или других препятствий, требующих дополнительного покрытия обоями. Также стоит учесть свойства выбранных обоев, высоту и сложность укладки, а также индивидуальные предпочтения и стиль декора комнаты.
Простой расчет обоев. Калькулятор расчета обоев
Калькулятор расчета обоев позволит оперативно и максимально точно определить количество обоев, которое потребуется для оклейки комнаты или квартиры в целом.
Данный калькулятор может быть востребован и в случае, когда вы планируете оклеить стены в своей квартире самостоятельно и тогда, когда вы хотите обратиться к профессионалам, поскольку данный расчет поможет определиться и со стоимостью материалов.
Основные показатели, которые потребуются для того, чтобы осуществить расчет обоев : длина, ширина и высота помещения. Также важно знать длину и ширину рулона обоев. Параметры окон и дверей помогут сделать расчет более точным и не учитывать площадь, которая не подлежит оклейке.
Не последнюю роль играет и расцветка обоев. Например, обои, рисунок которых не требует стыковки и «подгонки» можно покупать исходя из расчета, сделанного калькулятором без каких – либо дополнительных вычислений.
А вот если вы предпочитаете обои с крупным рисунком, требующим стыковки, то стандартный способ расчета не уместен. Как правило, прибавляется еще два рулона на комнату, размером не более 22 квадратных метров. Существует закономерность: чем больше величина раппорта, тем больше отходов получится при оклейке. Размер раппорта обычно указывается на этикетке.
И еще один нюанс, при выборе обоев нужно обязательно обращать внимание на серию, поскольку оттенок цвета и насыщенность его может быть разной.
Рассчитать количество обоев поможет форма, расположенная ниже.
Сколько метров в рулоне обоев. Метровые обои: сколько метров в рулоне
Есть вопросы? Проконсультируйтесь у юриста (бесплатно, круглосуточно, без выходных):
8 (800) 350-13-94 - Федеральный номер
8 (499) 938-42-45 - Москва и Московская обл.
8 (812) 425-64-57 - Санкт-Петербург и Лен. обл.
Обои – это востребованный материал для стильного оформления любого помещения. Его используют для оклейки стен спален, гостиных, кухонь, прихожей и других комнат. Востребованность связана с практичностью и легкостью работы с материалом. Он идет в рулонах, поэтому перед тем как покупать стоит выяснить, сколько квадратных метров в рулоне обоев. Это позволит выполнить правильные расчеты и купить необходимый объем.
Особенности стандартных размеров
На данный момент существуют стандартные параметры, которые используют многие производители. Однако определенные значения в разных странах имеют большие различия. По этой причине необходимо изучать всю информацию, которая указывается на этикетке.
Стоит выделить разновидности:
- Стандартная ширина составляет 50 см, а точнее 53. Сразу может возникнуть вопрос, сколько метров в рулоне обоев шириной 50 м. Часто идет 800 или 1000 см. В продаже можно встречать модели с длиной 12 м. Варианты с виниловой структурой имеют параметры 50 на 1500 см.
- Бывает, что полотно имеет ширину 60 см. У таких видов показатели длины бывают двух видов – 8 или 10 м.
- У моделей с габаритами 74-75 см параметры длины могут достигать 10 м. Они являются стандартом для итальянских и американских компаний. Иногда встречаются у изделий немецких производителей.
- Метровые с шириной 106 см. Данные габариты часто имеют рулоны из флизелиновой основой. Показатель длины у них 1000 см. Бывают материалы с такими параметрами, как 106 см на 12 и 25 м. Редко можно встретить толстое полотно имеющее размер 5 м.
Параметры в зависимости от вида
В продаже встречаются разные виды, которые отличаются по структуре, плотности, толщине. Каждый из них может иметь разные габариты. И чтобы в дальнейший период правильно высчитать требуемый объем важно знать, сколько метров в метровых обоях в зависимости от структуры полотна.
Один рулон в зависимости от типа полотна может иметь следующие размеры:
- Модели из бумажной основы. У них могут быть показатели ширины 53 см. Стандартная длина 10 м. Но бывает 8 и 12 м.
- Основа из виниловой структуры обладает размерами 50 см на 15 м.
- Флизелиновые варианты выпускаются 106 на 1000 (1200) см
- Полотна из текстиля часто имеют габариты от 0,5 до 0,8 м на 1000 см.
Но показатели могут сильно отличаться, в случаях, когда материал изготавливается на оптовую поставку. Под данную категорию попадают компании, занимающиеся большими ремонтными и отделочными работами. Для них производятся полотна с нестандартными габаритами – 80, 100 и 150 см. А в одном рулоне может быть от 10 до 25 м.
Стоит отметить! Иногда в продаже встречаются нестандартные варианты. Они считаются браком, поэтому их часто реализуют по себестоимости. При необходимости некоторые виды могут производиться на заказ.
Как узнать, сколько квадратных метров
Независимо от того какие варианты вы используете стандартные или метровые обои, нужно знать сколько метров в рулоне. Для этого требуется выполнить некоторые расчеты, они помогут определить требуемый объем для стен комнаты.
Поскольку лист имеет прямоугольную форму, то площадь покрываемой поверхности высчитывается путем перемножения показателей длины и ширины:
- Е сли размеры составляют 10,05 м на 0,53 м, то выходит формула – 10,05*0,53 = 5,3 м2 – это показатель площади.
- П ри габаритах 15 м и 0,53 м получается – 15*0,53 = 7,95 м2 (площадь).
- 25 м и 1 м дает показатель 25 м2 общей площади.
Чтобы определить требуемое количество для одной комнаты, рекомендуется выполнить измерение ее стен при помощи рулетки. После этого вычисляется общая площадь стен. Желательно брать с запасом, лучше пусть останется лишнее, чем потом ходить по магазинам в поисках недостающего материала с требуемым рисунком и цветом.
Обои с большой шириной
Обои с шириной 1 метр в последнее время стали пользоваться популярностью. Их также часто называют метровками. Востребованность связана с легкой поклейкой, после нее появляется мало стыков, которые практически не заметны.
Работа требует гораздо меньше времени, чем поклейка стандартных вариантов. Но поскольку метровый материал тяжелый, с ним достаточно трудно работать одному, приклеивание нужно выполнять вместе с напарником.
Важно! В продаже встречаются рулоны с размерами 10 и 15 м. А вот варианты с впечатляющими габаритами 25 и 50 м часто используются под покраску стен.
Размеры имеют важное значение при выполнении расчетов. Они позволят установить требуемый объем полотна для комнаты. Это в дальнейшем избавит от многих сложностей и проблем при проведении отделочных работ. Но все же стоит учитывать, что у разных производителей размеры могут отличаться. По этой причине при покупке обзательно стоит изучать всю информацию, указанную на этикетке.
Точный калькулятор обоев. Калькулятор обоев онлайн
Привет, друзья! Не знаете, как посчитать, сколько обоев нужно купить на каждую комнату, а чертить лень? ОК, тогда мы вам предлагаем вам простейший онлайн калькулятор обоев, причем с учетом окон и дверей, с помощью которого легко можно все это посчитать. Более того, мы наглядно проверим его точность на примере одной конкретной комнаты.
Итак, вот сам калькулятор.
Если ваша комната имеет форму простого прямоугольника, введите ее длину и ширину в соответствующие поля, периметр будет посчитан автоматически. А если комната имеет сложную форму, например, имеет внешние или непрямые углы, сразу вводите периметр, а поля «Длина» и «Ширина» оставьте пустыми. В поле «Высота» впишите высоту потолка. ВНИМАНИЕ: дробные числа пишите через точку, а не через запятую.
Далее вписываем количество дверей в комнате и их размеры. Если дверей несколько, и они разные, впишите усредненный размер. То же самое и с окнами.
Затем указываем параметры самих обоев. Как правило, длина рулона обычных обоев равна 10 метрам, а обоев под покраску – 25 метров. Ширина бывает 53, 70 или 106 сантиметров. Раппорт рисунка – это его периодичность. Смещение рисунка означает, что на соседних полосах рисунок будет смещен на величину раппорта. Все это указывается на этикетке обоев. Запас на выравнивание – это суммарная величина припуска у потолка и пола, который мы потом будем отрезать, другими словами это тупо запас на отходы. Достаточно 5-ти сантиметров.
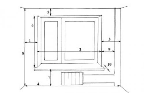
А теперь давайте проверим, что у нас получается. Имеем вот такую комнату сложной формы:

Длину и ширину пропускаем, вычисляем периметр, он у нас равен 19 метрам. Высота помещения 262 см. У нас есть дверной проем 210×90 см и длинное окно 376×162 см. Для простоты возьмем обои без рисунка шириной 106 см (длина рулона 10 метров). Вводим в калькулятор все данные и получаем результат – 5 рулонов.

Теперь посмотрим наглядно, как мы будем клеить.
С каждого рулона мы получим 3 целых полосы и довольно большие обрезки. На картинке разными цветами показаны использованные рулоны. Как видно, под окном и над дверью мы использовали остатки с них. Таким образом мы виртуально поклеили 14 целых полос и обрезки, что как раз означает, что купить нам все равно пришлось бы 5 рулонов. Калькулятор не ошибся.

А теперь представим, что у нас обои с рисунком, раппорт 64 см. В таком случае нам не повезло, потому что с таким раппортом нам придется резать полосы длиной 320 см (5×64 см) и от них отрезать лишнее. При этом остаток с каждого рулона составит всего 40 см, и нам будет нечего клеить под окно, придется покупать дополнительный 6-й рулон. Калькулятор с нами согласен.

Разумеется, калькулятор – это здорово. Но всегда нужно помнить, что он не обеспечит стопроцентную точность, поэтому, если вы выбрали в магазине дорогие обои с рисунком, не поленитесь и просчитайте все вручную, так оно всегда надежнее.
Сколько рулонов обоев нужно на 17 кв. Рассчитаем рулоны обоев
Нам придется воспользоваться школьными знаниями математики, которые помогут не запутаться в цифрах, однако предварительно определите основные параметры:
- Периметр выбранной для отделки комнаты . Для этого требуется сложить длины всех стен и разделить полученную цифру на 0,53 м или на 1,06 м. Также следует поступать и при использовании нестандартной ширины отделочного материала. Это нам позволит узнать количество полос.

Работа со стандартным узким рулоном (0,53 м)
- Ширина и длина рулона . Стандартной считается ширина 53 см и 106 см, остальные нестандартные. При этом длина в первом случае может быть 10,05, 12 или 15 м, во втором – до 25 м. Если у вас потолки в квартире 2,4-2,5 м, значит, узкого хватит на 4 полосы.
Для лучшего понимание приведем пример, как узнать сколько нужно обоев на комнату, где:
- общая длина стен составит – 5 и 6 м;
- потолки – высотой 2,5 м.

Клеим «метровые» (1,06 м) полотна
Расчет:
- Ширина 53 см:
5*2+6*2=22 м (общий периметр комнаты);
22:0,53≈42 (полосы);
42:4≈11 (рул.).
- Ширина 106 см:
22:1,06≈21 (полоса);
Так как в рулоне длиной 25 м будет 10 полос, значит, в нашем случае понадобится 2 рул. Последнюю полосу придется состыковать внизу, чтобы не докупать новый.
На самом деле, данный подсчет будет несколько приблизительным. Итак, зная основные параметры, сколько нужно обоев на комнату 12 метров по периметру определить уже несложно, а именно: 12:0,53:4≈6 штук.

Расчет материала при высоте стен 3 м
Общая формула расчета
Из сказанного выше можно с легкостью составить общую формулу для данных действий: P:L:3 (с подгонкой рисунка) или 4 (без подгонки изображения), где P – периметр комнаты, L – ширина рулона обоев.
Совет: полученный результат следует всегда округлять в большую сторону.
Теперь настал черед поговорить о пространстве под окном и над дверным проемом, так как на данных участках приходиться использовать не целую полоску обоев. Один из вариантов – воспользоваться остатками от подгонки рисунка. Тем самым вы сможете сильно сэкономить на ремонтных работах.
Совет: для определения, сколько нужно обоев на комнату 20 метров по площади с длиной стен 5 и 4 м, нужно: (5*2+4*2):1,06:10≈1 (рул).

Расчет площади стен
Если вы любитель точных цифр, сделайте следующее:
- определите по формуле количество рулонов, не учитывая пространство над дверью и под окном;
- добавьте к ним необходимое количество для этих участков.
В этом случае результат окажется максимально полным.
Давайте определим, сколько нужно обоев на комнату 16 метров и 17 метров с подгонкой рисунка:
- 16:0,53:3=10 рул.;
- 17:0,53:3=11 рул.
Рекомендации профессионалов
Ниже будет предложена инструкция подсчета количества обоев для экономных домашних мастеров:
- Если на настенных покрытиях подразумевается повторяющийся узор, уточните у продавца размер его шага и разделите параметр высоты на эту цифру.
- Округлите полученное число и умножьте его на тот же размер шага изображения. Найденная в результате цифра будет являться длиной полосы, которую нужно отрезать от полотна.
- Вычислите разницу, которая уйдет в отход, отняв от длины обойной полосы высоту стены.
- Разделите общую длину рулона на длину полосы, которую вы нашли во 2-ом пункте, у вас получится коэффициент. На него умножьте разницу, найденную в пункте 3. Получите общую величину отходов и вычтите ее из общей длины.
Теперь разделите значение оклеиваемой площади на чистое от отходов число из пункта 4. Данный результат количества рулонов будет окончательным.